Central Coast Council
Business Paper
Ordinary Council Meeting
24 May 2022

The Ordinary Council Meeting
of Central Coast Council
will be held in the Council Chamber,
2 Hely Street, Wyong
on Tuesday 24 May 2022 at 6.30pm,
for the transaction of the business listed below:
The Public Forum
will commence at 5.45pm, subject to any registered speaker/s to items listed on
this agenda.
Further
information and details on registration process: www.centralcoast.nsw.gov.au/council/meetings-and-minutes/council-meetings
1 Procedural Items
1.1 Disclosure of Interest................................................................................................................................ 4
1.2 Confirmation of Minutes of Previous Meeting................................................................................. 6
1.3 Notice of Intention to Deal with Matters in Confidential Session.............................................. 7
2 Reports
2.1 Monthly Finance Report April 2022..................................................................................................... 9
2.2 Investment Report for April 2022....................................................................................................... 10
2.3 2021-2022 Quarter 3 Review............................................................................................................... 15
2.4 Exhibition of the Draft Revised Community Strategic Plan, Draft Delivery Program 2022-2025 and Draft Resourcing Strategy..................................................................................................................... 21
2.5 ARIC Annual Report 2021..................................................................................................................... 22
2.6 Governance Lighthouse Report as at 31 December 2021.......................................................... 24
2.7 Outcomes of Public Exhibition and Finalisation of Planning Proposal and Planning Agreement, Doyalson-Wyee RSL Club, Pacific Highway, Doyalson................................................................ 26
2.8 Adoption of Clause 5.22 Special Flood Considerations under Central Coast Local Environmental Plan 2022.................................................................................................................................................... 43
2.9 Variations to Development Standards - January to March 2022............................................. 49
2.10 Central Coast Local Planning Panel - Membership...................................................................... 51
2.11 Council nominated Members Central Coast Regional Planning Panel.................................. 57
2.12 Community Support Grants Program - March 2022.................................................................... 60
2.13 Enterprise Licence Agreement- Geographic Information System Software – Environmental Systems Research Institute (ESRI) Inc and ESRI Australia Pty Ltd............................................ 64
3 Confidential Items
3.1 Road Upgrade - Del Monte Place, Copacabana (Stage 2B) CPA/3692
David Farmer
Chief Executive Officer
|
Item No: 1.1 |
|
|
Title: Disclosure of Interest |
|
|
Department: Corporate Affairs |
|
|
24 May 2022 Ordinary Council Meeting |
|
Reference: F2022/00021 - D15138555
That Council and staff now disclose any conflicts of interest in matters under consideration by Council at this meeting.
Chapter 14 of the Local Government Act 1993 (“LG Act”) regulates the way in which the councillors and relevant staff of Council conduct themselves to ensure that there is no conflict between their private interests and their public functions.
Section 451 of the LG Act states:
“(1) A councillor or a member of a council committee who has a pecuniary interest in any matter with which the council is concerned and who is present at a meeting of the council or committee at which the matter is being considered must disclose the nature of the interest to the meeting as soon as practicable.
(2) The councillor or member must not be present at, or in sight of, the meeting of the council or committee:
(a) at any time during which the matter is being considered or discussed by the council or committee, or
(b) at any time during which the council or committee is voting on any question in relation to the matter.
(3) For the removal of doubt, a councillor or a member of a council committee is not prevented by this section from being present at and taking part in a meeting at which a matter is being considered, or from voting on the matter, merely because the councillor or member has an interest in the matter of a kind referred to in section 448.
(4) Subsections (1) and (2) do not apply to a councillor who has a pecuniary interest in a matter that is being considered at a meeting, if:
(a) the matter is a proposal relating to:
(i) the making of a principal environmental planning instrument applying to the whole or a significant part of the council’s area, or
(ii) the amendment, alteration or repeal of an environmental planning instrument where the amendment, alteration or repeal applies to the whole or a significant part of the council’s area, and
(a1) the pecuniary interest arises only because of an interest of the councillor in the councillor’s principal place of residence or an interest of another person (whose interests are relevant under section 443) in that person’s principal place of residence, and
(b) the councillor made a special disclosure under this section in relation to the interest before the commencement of the meeting.
(5) The special disclosure of the pecuniary interest must, as soon as practicable after the disclosure is made, be laid on the table at a meeting of the council and must:
(a) be in the form prescribed by the regulations, and
(b) contain the information required by the regulations.”
Further, the Code of Conduct adopted by Council applies to all councillors and staff. The Code relevantly provides that if a councillor or staff have a non-pecuniary conflict of interest, the nature of the conflict must be disclosed as well as providing for a number of ways in which a non-pecuniary conflicts of interests might be managed.
|
Item No: 1.2 |
|
|
Title: Confirmation of Minutes of Previous Meeting |
|
|
Department: Corporate Affairs |
|
|
24 May 2022 Ordinary Council Meeting |
|
Reference: F2022/00021 - D15138559
That Council confirm the minutes of the Ordinary Meeting of Council held on 26 April 2022.
Summary
Confirmation of minutes of the Ordinary Meeting of Council held on 26 April 2022.
|
1⇨ |
MINUTES - Council Meeting - 26 April 2022 |
Provided Under Separate Cover |
D15135394 |
|
Item No: 1.3 |
|
|
Title: Notice of Intention to Deal with Matters in Confidential Session |
|
|
Department: Corporate Affairs |
|
|
24 May 2022 Ordinary Council Meeting |
|
Reference: F2022/00021 - D15138563
|
That Council resolve that the following matters be dealt with in closed session, pursuant to s. 10A(2) of the Local Government Act 1993 for the following reasons:
Item 3.1 – Road Upgrade - Del Monte Place, Copacabana (Stage 2B) CPA/3692
Reason for considering in closed session:
2(d) commercial information of a confidential nature that would, if disclosed:
(iii) reveal a trade secret,
That Council resolve, pursuant to section 11(3) of the Local Government Act 1993, that this report remain confidential in accordance with section 10A(2)(d)(iii) of the Local Government Act as is contains commercial information of a confidential nature that would, if disclosed prejudice the commercial position of the person who supplied it and because consideration of the matter in open Council would on balance be contrary to the public interest. Consideration of the matter in open Council would, on balance, be contrary to the public interest as publication of all tendered amounts would discourage potential tenderers from submitting commercial information in future and would affect Council’s ability to obtain value for money services for the Central Coast community. |
Summary
It is necessary for the Council to adopt a resolution to formalise its intention to deal with certain matters in a closed and confidential Session. The report is incorporated in the "Confidential" business paper which has been circulated.
The Local Government Act 1993 requires the Chief Executive Officer to identify those matters
listed on the business paper which may be categorised as confidential in terms of section 10A
of the Local Government Act 1993. It is then a matter for Council to determine whether those
matters will indeed be categorised as confidential.
Context
Section 10A of the Local Government Act 1993 (the Act) states that a Council may close to the public so much of its meeting as comprises:
2(a) personnel matters concerning particular individuals (other than Councillors),
2(b) the personal hardship of any resident or ratepayer,
2(c) information that would, if disclosed, confer a commercial advantage on a person with whom the Council is conducting (or proposes to conduct) business,
2(d) commercial information of a confidential nature that would, if disclosed:
(i) prejudice the commercial position of the person who supplied it, or
(ii) confer a commercial advantage on a competitor of the Council, or
(iii) reveal a trade secret,
2(e) information that would, if disclosed, prejudice the maintenance of law,
2(f) matters affecting the security of the Council, Councillors, Council staff or Council property,
2(g) advice concerning litigation, or advice that would otherwise be privileged from production in legal proceedings on the ground of legal professional privilege,
2(h) information concerning the nature and location of a place or an item of Aboriginal significance on community land.
2(i) alleged contraventions of any code of conduct requirements applicable under section 440
It is noted that with regard to those matters relating to all but 2(a), 2(b) and 2(d)(iii) it is necessary to also give consideration to whether closing the meeting to the public is, on balance, in the public interest.
Further, the Act provides that Council may also close to the public so much of its meeting as comprises a motion to close another part of the meeting to the public (section 10A(3)).
As provided in the Office of Local Government Meetings Practice Note August 2009, it is a matter for the Council to decide whether a matter is to be discussed during the closed part of a meeting. The Council would be guided by whether the item is in a confidential business paper, however the Council can disagree with this assessment and discuss the matter in an open part of the meeting.
Attachments
|
Item No: 2.1 |
|
|
Title: Monthly Finance Report April 2022 |
|
|
Department: Corporate Affairs |
|
|
24 May 2022 Ordinary Council Meeting |
|
Reference: F2020/03205 - D15149857
Author: Michelle Best, Financial Controller
Mellissa McKee, Financial Controller
Peter Correy, Group Financial Controller, Finance
Executive: Natalia Cowley, Director Corporate Affairs and Chief Financial Officer
Due notice is given of this matter in accordance with Council’s Code of Meeting Practice.
The report and any relevant attachments will be provided prior to the Ordinary Meeting of 24 May 2022.
|
Item No: 2.2 |
|
|
Title: Investment Report for April 2022 |
|
|
Department: Corporate Affairs |
|
|
24 May 2022 Ordinary Council Meeting |
|
Reference: F2004/06604 - D15154028
Author: Devini Susindran, Team Leader
Manager: Mellissa McKee, Financial Controller
Executive: Natalia Cowley, Director Corporate Affairs and Chief Financial Officer
1 That Council note the Investment Report for April 2022.
2 That Council note that internally restricted funds are unrestricted funds that have been internally allocated to a certain purpose.
3 That Council allocate the required unrestricted funds available in the General Fund to meet its April 2022 unrestricted funds deficit of $39.81M in Water and Drainage funds as set out in this report.
|
Report purpose
To present monthly Investment Reports in accordance with cl. 212 of the Local Government (General) Regulation 2005 which states as follows:
1 The Responsible Accounting Officer of a Council
a must provide the council with a written report (setting out details of all money that the council has invested under section 625 of the Act) to be presented— i. if only one ordinary meeting of the council is held in a month, at that meeting, or ii. if more than one such meeting is held in a month, at whichever of those meetings the council by resolution determines, and b must include in the report a certificate as to whether the investment has been made in accordance with the Act, the regulations and the council's investment policies.
2 The report must be made up to the last day of the month immediately preceding the meeting.
Executive Summary
This report details Council’s investments as at 30 April 2022.
|
Background
Council’s investments are made in accordance with the Local Government Act 1993, Local Government (General) Regulation 2005, the amended Investment Policy adopted at the Ordinary Council Meeting on 3 February 2021, Ministerial Investment Order issued February 2011 and Division of Local Government (as it was then known) Investment Policy Guidelines published in May 2010.
Current Status
Council’s current cash and investment portfolio totals $639.12M as at 30 April 2022.
Council’s Cash and Investment Portfolio by Source of Funds
|
Source of Funds |
Value ($’000) |
|
Investment Portfolio |
599,207 |
|
Transactional accounts per bank statement and cash in hand |
39,909 |
|
Total |
639,116 |
Council’s Portfolio is held in separate funds by purpose and summarised as follows:
|
Fund |
General Fund
($’000) |
Water Fund
($’000) |
Sewer Fund
($’000) |
Drainage Fund
($’000) |
Domestic Waste Fund ($’000) |
|
External Restricted Funds |
188,648 |
9,931 |
22,502 |
37,194 |
94,398 |
|
Internal Restricted Funds |
90,312 |
989 |
855 |
15 |
58 |
|
Total Restricted Funds |
278,960
|
10,920 |
23,357 |
37,209 |
94,456 |
|
Unrestricted Funds |
112,472 |
(4,610) |
113,327 |
(35,203) |
8,229 |
|
Total funds by Fund |
391,432 |
6,310 |
136,684 |
2,006 |
102,685 |
During April, Council’s total cash and investments increased by $3.78M from $635.34M to $639.12M. The increase during April was due to Financial Assistance Grant of $21.28M received in April, offset by expected trading cash outflows. Cash inflows will increase in May 2022 as it is rate instalment month.
Detailed restrictions have been provided in Attachment 2. Council is managing the previously reported negative unrestricted funds balance, as part of Council’s Business Recovery Plan.
The negative unrestricted balance is currently $39.81M, made up of unrestricted fund deficits in the Water and Drainage Funds, as per the table above.
The unrestricted funds balances above, across the five Funds will increase and decrease during the 2022 financial year as rates revenue and property sale settlements occur. In the interim, the unrestricted funds deficit of $39.81M is proposed to be funded through the General Fund’s available unrestricted cash balance of $112.47M as at 30 April 2022.
Portfolio management
Council’s Investment Portfolio is managed through term deposits and floating rate note maturities and placements.
Total net return on the portfolio for Council in April, comprising entirely of interest earned, was $517k. The total value of the Council’s investment portfolio at 30 April 2022 is outlined in Table 1 below.
Table 1 – Portfolio movement Investment only

The market value of Council’s investment portfolio at 30 April is $599.21M.
Council’s investments are evaluated and monitored against a benchmark appropriate to the risk (APRA Standards BBB long term or above) and time horizon of the investment concerned.
A summary of the term deposit and floating rate notes maturities are listed in Table 2 below.
Table 2 - Investment Maturities

The investment portfolio is concentrated in AA above (22.13%), A (24.39%), and BBB (53.48%).
Council monitors and manages the portfolio taking into consideration credit ratings of financial institutions, interest rates offered for the maturity dates required and counterparty exposure. All of Council’s investments were within policy guidelines at 30 April 2022.
The current spread of investments and counterparty exposure for April 2022 are shown in Graphs 1 and 2 respectively in Attachment 3.
Environmental, Social and Green (ESG) Investments
Council continues to look for ‘ESG’ investment opportunities subject to prevailing investment guidelines. A list of current ESG investments held is contained on the investment listing, highlight in green.
Council currently holds 5.29% or $31.67M in ESG investments as at 30 April 2022.
Portfolio Return
Interest rates on investments in the month, ranged from 0.10% to 3.18%, all of which exceeded the monthly Bank Bill Swap Rate (BBSW) benchmark of 0.08%.
The weighted running yield for April of 1.05% for Central Coast Council is favourable compared to the rolling three-year benchmark bank bill swap (BBSW) Index of 0.33% as shown in Graph 3 - Portfolio Returns in Attachment 3.
Market values reflected in the Portfolio valuation report in Attachment 5 have been used to record the unrecognised gains in tradeable fixed rate bonds and floating rate notes. Interest accrued has been recorded separately and is not reflected in portfolio valuations.
Financial Considerations
At its meeting held 19 October 2020, Council resolved the following:
1108/20 That any motions put before Council for the remainder of this term of Council that have financial implications require the Chief Executive Officer to provide a report on how those additional costs will be met.
The following statement is provided in response to this resolution of Council.
Council’s investment portfolio includes rolling maturity dates to ensure that Council has sufficient liquidity to meet its ongoing obligations.
Link to Community Strategic Plan
Theme 4: Responsible
|
Goal G: Good governance and great partnerships |
|
R-G4: Serve the community by providing great customer experience, value for money and quality services. |
|
1⇨ |
Summary of Investments as at 30 April 2022 |
Provided Under Separate Cover |
D15161639 |
|
2⇨ |
Summary of Restrictions as at 30 April 2022 |
Provided Under Separate Cover |
D15161641 |
|
3⇨ |
Investment Report for 30 April 2022 - Graphs 1, 2 and 3 |
Provided Under Separate Cover |
D15161662 |
|
4⇨ |
Trading Limits Report as at 30 April 2022 |
Provided Under Separate Cover |
D15161649 |
|
5⇨ |
Portfolio Valuation Investment Report Pack as at 30 April 2022 |
Provided Under Separate Cover |
D15161653 |
|
Item No: 2.3 |
|
|
Title: 2021-2022 Quarter 3 Review |
|
|
Department: Corporate Affairs and Environment and Planning |
|
|
24 May 2022 Ordinary Council Meeting |
|
Reference: F2021/00508 - D15047001
Author: Mellissa McKee, Financial Controller
Michelle Best, Financial Controller
Manager: Sharon McLaren, Section Manager Corporate Planning and Reporting
Executive: Natalia Cowley, Director Corporate Affairs and Chief Financial Officer
That Council adopt Central Coast Council’s Q3 Business Report for 2021-2022 including the proposed budget amendments.
|
Report purpose
To report on Central Coast Council’s performance progress as measured against the organisation’s Operational Plan for 2021-2022 to 31 March 2022 (Q3). The Q3 Business Report covers the progress on the operational plan activities and financial performance for the period 1 January 2022 to 31 March 2022.
Executive Summary
Clause 203 of the Local Government (General) Regulation 2005 requires a Council’s Responsible Accounting Officer to prepare and submit a Quarterly Budget Review Statement to the governing body of Council. The Quarterly Budget Review Statement must show, by reference to the estimated income and expenditure that is set out in the Operational Plan adopted by Council for the relevant year, a revised estimate of income and expenditure for that year. It also requires the budget review statement to include a report by the Responsible Accounting Officer as to whether or not they consider the statement indicates Council to be in a satisfactory financial position and if not, to include recommendations for remedial action. Council’s Operational Plan sets out the achievements, goals and revenue policy, including estimates of income and expenditure. The Quarterly Budget Review Statement plays an important role in monitoring Council’s progress against the Operational Plan.
Operational Plan Action and Target Progress
At the end of Quarter 3 the overall performance against the Operational Plan actions and targets shows 8 out of 67 actions are Completed and 37 are On Track for delivery by the end of the financial year, 1 is On Hold and 2 are Closed. The remaining 19 are Delayed, with the majority of these KPIs impacted by the NSW Public Health Orders for COVID-19, weather and a subsequent increase in customer requests.
Financial Performance
· The year to date (YTD) operating result (excluding capital grants and contributions) is showing a favourable variance of $50.8M, consisting of an actual surplus of $138.6M compared to a budget surplus of $87.8M. Of the favourable variance, $24.8M relates to the Gain on Disposal of land parcels as part of Council’s financial recovery plan.
· The YTD operating result (including capital grants and contributions) is showing a favourable variance of $53.2M, consisting of an actual surplus of $176.1M compared to a budget surplus of $122.9M. Of the favourable variance, $24.8M relates to the Gain on Disposal of land parcels as part of Council’s financial recovery plan.
· The proposed Q3 adjustments will move the 2021-2022 budgeted operating surplus (excluding capital grants and contributions) from $6.0M to an operating surplus (excluding capital grants and contributions) of $40.4M.
· The proposed Q3 adjustments will move the 2021-2022 approved operating surplus (including capital grants and contributions) from $68.5M to an operating surplus (including capital grants and contributions) of $96.7M.
· The YTD capital expenditure is $65.8M compared to a YTD budget of $89.5M.
· The proposed Q3 capital expenditure budget adjustment is a decrease of $22.2M that is expected to result in a revised 2021-2022 full year capital works program of $136.7M, down from $158.9M.
For more information and details of progress and financial performance please refer to the Q3 Business Report (Attachment 1). |
Background
The 2021-2022 Q3 Business Report for Central Coast Council is provided in Attachment 1. It incorporates reporting on the progress of actions and targets against the objectives of the Operational Plan and a Quarterly Budget Review Statement.
Clause 203 of the Local Government (General) Regulation 2005 requires that no later than two months after the end of each quarter (except the June quarter), the Responsible Accounting Officer of Council must prepare and submit to Council a Quarterly Budget Review Statement that shows a revised estimate of the income and expenditure for that year.
Sub-section 404(5) of the Local Government Act 1993 requires that Council report on its progress with respect to its actions and targets against the objectives of the Operational Plan, at least every six months. This report contains progress information for Quarter 3 and is prepared to coincide with the Quarterly Budget Review Statement.
This quarterly report is presented in the necessary format and is considered to satisfy the legislative requirements.
Current Status
The 2021-2022 Q3 Business Report is included as Attachment 1 and reports on progress for the year to 31 March 2022 (Q3 YTD), against the Operational Plan 2021-2022, including budget.
Operational Plan Actions and Targets
The table below is a summary of the overall progress on the actions, measures and projects for Q3. The information contained in the Q3 Business Report includes specific details of progress.
|
Theme: |
Belonging |
Smart |
Green |
Responsible |
Liveable |
Total |
|
Completed |
1 |
2 |
0 |
3 |
2 |
8 |
|
On Track |
2 |
1 |
7 |
18 |
9 |
37 |
|
Delayed |
2 |
0 |
0 |
8 |
9 |
19 |
|
Not Commenced |
0 |
0 |
0 |
0 |
0 |
0 |
|
On Hold |
0 |
0 |
1 |
0 |
0 |
1 |
|
Closed |
1 |
1 |
0 |
0 |
0 |
2 |
|
Total |
6 |
4 |
8 |
29 |
20 |
67 |
Financial Performance
The YTD operating result (excluding capital grants and contributions) is showing a favourable variance of $50.8M, consisting of an actual surplus of $138.6M compared to a budget surplus of $87.8M. Of the favourable variance, $24.8M relates to the Gain on Disposal of land parcels as part of Council’s financial recovery plan. For more information, please refer to sections 1.1 and 2.2 of Attachment 1.
The YTD operating result (including capital grants and contributions) is showing a favourable variance of $53.2M, consisting of an actual surplus of $176.1M compared to a budget surplus of $122.9M. Of the favourable variance, $24.8M relates to the Gain on Disposal of land parcels as part of Council’s financial recovery plan. For more information, please refer to sections 1.1 and 2.2 of Attachment 1.
These results are reported in accordance with the Local Government Code of Accounting Practice and Financial Reporting (Guidelines), which requires Council to recognise rates income at the beginning of the financial year when levied. The impact of this on Council’s operating results is a large surplus at the beginning of the financial year, which reduces as the year progresses as Council incurs expenditure from delivering services to the community.
Quarter 3 YTD capital expenditure is $65.8M compared to a year-to-date budget of $89.5M.
Consultation
All Units of Council were consulted during the development of this report and contributed to the information contained in the report.
Financial Considerations
At its meeting held 19 October 2020, Council resolved the following:
1108/20 That any motions put before Council for the remainder of this term of Council that have financial implications require the Chief Executive Officer to provide a report on how those additional costs will be met.
The following statement is provided in response to this resolution of Council.
Budget adjustments are proposed in this report and are detailed in the Attachment 1.
The proposed Quarter 3 adjustments will improve the 2021-2022 budgeted operating surplus (excluding capital grants and contributions) from $6.0M to an operating surplus (excluding capital grants and contributions) of $40.4M.
The proposed Quarter 3 adjustments will improve the 2021-2022 budgeted operating surplus (including capital grants and contributions) from $68.5M to an operating surplus (including capital grants and contributions) of $96.7M.
Adjustments proposed to be adopted as part of the Quarter 3 budget review include:
Increase of $31.7M in operating income
· $24.8M gain on disposal of assets, including the sale of land at Warnervale Town Centre, Kiar Ridge and Lucca Road Wyong as part of Council's financial recovery plan.
· $8.2M favourable increase in prepaid Financial Assistance Grant (FAG) income, announced in the Federal budget.
· $1.4M favourable increase in tipping income as waste was received from Sydney councils during recent storm events.
· $0.6M additional income from restoration works and works to be undertaken on State roads, partially offset by additional expenses.
· $0.4M favourable increase in pool and leisure centre income in line with current usage, post COVID restrictions.
· $0.2M favourable increase in fine income.
· $0.2M favourable increase in Child Care operating grant income.
· ($0.5M) unfavourable reduction in Child Care fees due to reduced utilisation rates. Offset by a reduction in expense budgets.
· $0.2M additional sewer annual charges income in line with full year forecast.
· ($0.4M) unfavourable reduction in Shop Inspection income as result of COVID restrictions.
· ($0.5M) unfavourable reduction in Roads and Drainage Infrastructure project income as works have been delayed until 2022-2023, offset by a reduction in Materials and Services expense budgets.
· ($0.7M) unfavourable reduction in water usage income as water demand has continued to be low during Q3 due to high rainfall levels.
· ($0.8M) unfavourable reduction in development assessment income due to delay in securing temporary resources, offset by a reduction in Materials and Services expense budgets.
· ($1.8M) unfavourable reduction in Environmental Management grant income, offset by a reduction in Materials and Services expense budgets.
Decrease of $6.1M in capital income
· $2.1M increase for contributed asset; EDSACC Grandstand.
· ($0.5M) reduction in s7.11 developer contribution forecast income.
· ($0.7M) reduction in s64 developer contribution forecast income.
· ($7.1M) reduction in capital grant income to be received in this financial year as a result of reduced capital program and delays (weather and supplier) incurred during Quarter 3.
Reduction of $2.8M in operational expenditure
· $1.8M favourable reduction in Environmental Management expense, which offsets the reduction in operating income above.
· $1.4M favourable reduction in general materials services budgets across Council.
· $1.0M favourable reduction in budget required for contributions to NSW Fire Brigade, Rural Fire Service and State Emergency Service this financial year.
· $0.8M favourable reduction in development contract expense, which offsets the reduction in operating income above.
· $0.5M favourable reduction in project expenditure as some works have been delayed until 2022-2023, which offsets the reduction in operating income above.
· $0.4M favourable decrease in Child Care Employee Cost budgets due to lower utilisation rates at Council’s centres.
· $0.2M favourable reduction in software license costs.
· ($0.2M) unfavourable increase in amortisation of tip discount in line with Accounting Standard treatment.
· ($0.2M) unfavourable increase in Leisure Recreation and Community Facilities materials and contracts, that partially offsets additional user charges and fee income.
· ($0.2M) unfavourable increase in EPA waste levy costs due to increased waste tonnages being received at Council's waste management facilities.
· ($0.3M) minor losses on disposal of plant and equipment, buildings and open space assets.
· ($0.3M) unfavourable increase Hunter Water Bulk Water transfer adjustment.
· ($0.6M) increase in contract costs in Emergency Management section related to March 2022 storm event.
· ($0.6M) additional expense due to work on State roads, which offsets the additional operating income above.
· ($0.9M) unfavourable increase in waste contract costs - garbage, green waste processing and recycling due to waste volumes received at Council's waste management facilities.
Council’s focus continues to be on reducing expenditure, raising additional income, monitoring incoming cash flow, performing cashflow forecasts and ensuring a more sustainable cash preservation. Council’s Business Recovery Plan is a multi-faceted approach aimed at ensuring the longer-term financial sustainability of Council operations. For more information on the proposed budget adjustments please refer to section 3.1 and 3.2 of Attachment 1.
Capital Works Program
The proposed Quarter 3 budget adjustment is a decrease of $22.2M, resulting in a revised 2021-2022 full year capital works program of $136.7M. For a full list of proposed changes to the capital works program please refer to section 3.3 of Attachment 1.
Link to Community Strategic Plan
Theme 4: Responsible
|
Goal G: Good governance and great partnerships |
|
R-G4: Serve the community by providing great customer experience, value for money and quality services. |
Options
Quarterly reporting of Council’s financial performance is mandatory under the Local Government (General) Regulation 2005.
Critical Dates or Timeframes
Sub-clause 203(1) of the Local Government (General) Regulation 2005 requires a Council’s Responsible Accounting Officer to prepare and submit a quarterly budget review statement to the Council within two months of the end of each quarter (excluding June).
|
1⇨ |
2021-2022 Quarter 3 Review |
Provided Under Separate Cover |
D15159021 |
|
Item No: 2.4 |
|
|
Title: Exhibition of the Draft Revised Community Strategic Plan, Draft Delivery Program 2022-2025 and Draft Resourcing Strategy |
|
|
Department: Environment and Planning and Corporate Affairs |
|
|
24 May 2022 Ordinary Council Meeting |
|
Reference: F2021/01492 - D15138937
Author: Sharon McLaren, Section Manager Corporate Planning and Reporting
Vivienne Louie, Senior Financial Project Coordinator
Sue Ledingham, Unit Manager Communications Marketing and Customer Engagement
Melissa McCulloch, Section Manager Rates and Revenue
Mellissa McKee, Financial Controller
Michelle Best, Financial Controller
Manager: David Milliken, Unit Manager Strategic Planning
Executive: Alice Howe, Director Environment and Planning
Natalia Cowley, Director Corporate Affairs and Chief Financial Officer
Due notice is given of this matter in accordance with Council’s Code of Meeting Practice.
The report and any relevant attachments will be provided prior to the Ordinary Meeting of 24 May 2022.
|
Item No: 2.5 |
|
|
Title: ARIC Annual Report 2021 |
|
|
Department: Corporate Affairs |
|
|
24 May 2022 Ordinary Council Meeting |
|
Reference: F2021/00030 - D15138211
Author: Edward Hock, Unit Manager Governance, Risk and Legal
Executive: Natalia Cowley, Director Corporate Affairs and Chief Financial Officer
That Council note the Audit, Risk and Improvement Committee Annual Report for 2021.
|
Report purpose
To note the ARIC Annual Report for 2021.
Executive Summary
The ARIC Annual Report for 2021 is reported to Council and will be placed on the Central Coast Council website. The previous Annual reports are available here on Council’s website.
It is recommended that Council note the Annual Report. |
Background
Each year the ARIC provides an Annual Report to summarise key achievements in accordance with the adopted ARIC Charter.
Current Status
The Annual Report for 2021 is an attachment to this report, and will be made available on Council’s website.
2021 Annual report
The Annual Report for 2021 documents the operation and activities of the Audit, Risk and Improvement Committee for Central Coast Council during the 2021 calendar year in which ARIC meet a total of five times:
· Wednesday 10 March 2021 (Ordinary Meeting)
· Tuesday 13 April 2021 (Extraordinary Finance Meeting)
· Thursday 24 June 2021 (Ordinary Meeting)
· Tuesday 14 September 2021 (Ordinary Meeting)
· Tuesday 7 December 2021 (Ordinary Meeting)
The
Committee’s oversight and support role in 2021 continued to support the management
team and the Council as it recovered from financial issues that arose during
the 2020 year.
In response to the events of 2020, the ARIC reviewed its meeting agendas to
ensure there was an increased focus on financial management, risk management
and the effectiveness of the internal audit (IA) function.
During 2020/21 the following final IA reports were issued and reviewed by the Committee, relating to audits of:
· 01/19-20: Councillor Facilities, Allowances & Expenses
· 02/19-20: Contract Management
· 04/19-20: ELT/SLT Facilities, Allowances & Expenses
· 05/19-20: IT Governance
· 06/19-20: Procurement Cards, Trade Cards & Other Similar Types of Credit
· 07/19-20: Contractors, Temporary and Contingent Labour Hire
The various topics addressed by the ARIC during 2021 meetings are detailed in the Report.
Financial Considerations
At its meeting held 19 October 2020, Council resolved the following:
1108/20 That any motions put before Council for the remainder of this term of Council that have financial implications require the Chief Executive Officer to provide a report on how those additional costs will be met.
The following statement is provided in response to this resolution of Council.
There are no financial implications associated with the recommendations in this
report.
Link to Community Strategic Plan
Theme 4: Responsible
|
Goal G: Good governance and great partnerships |
|
R-G3: Engage with the community in meaningful dialogue and demonstrate how community participation is being used to inform decisions. |
|
1⇨ |
Audit Risk and Improvement Committee Annual Report 2021 |
Provided Under Separate Cover |
D15103587 |
|
Item No: 2.6 |
|
|
Title: Governance Lighthouse Report as at 31 December 2021 |
|
|
Department: Corporate Affairs |
|
|
24 May 2022 Ordinary Council Meeting |
|
Reference: F2020/02182 - D15129677
Author: Edward Hock, Unit Manager Governance Risk and Legal
Executive: Natalia Cowley, Director Corporate Affairs and Chief Financial Officer
That Council note the Governance Lighthouse report as at 31 December 2021 as provided as Attachment 1 to this report.
|
Report purpose
To provide a Governance Lighthouse report as at 31 December 2021 for the information of Council.
Executive Summary
As resolved by Council, a quarterly Governance Lighthouse report is provided to Council for information.
The key points noted in the report are:
· Ongoing development of the organisation’s strategic risk profile is encouraging, as is ownership by Council’s ERM of the fraud and corruption prevention framework. · A significant increase in customer complaints is likely reflective of a return in community mobility, following the previous reduction in Q1. This reasoning is supported by the complaint types relating to pot holes, mowing and public trees. · There was an increase in overdue actions for Q2 largely relate to actions from the Council meeting held 14 December 2021 that weren't completed before Council shutdown commenced on 24 December 2021. · Council has received approval from the OLG to defer lodgement of the 30 June 2021 Financial Statements to 28 February 2022. This is because the audit of the 2019-202 financial reports did not conclude until 10 May 2021 and significant planning and interim work was delayed until June 2021. This has impacted timeframes for completion of the audit of 2020-2021 Financial Reports by the legislated deadline of 31 October 2021. |
The
report will continue to be provided quarterly, until such time as Council is
able to provide governance reporting in a dashboard format.
Background
The report is updated at the end of each quarter in accordance with the Council resolution of 27 July 2020 and provided to the Audit, Risk and Improvement Committee and then to Council.
The report is based upon the NSW Audit Office Governance Lighthouse themes and areas. Data is provided where appropriate with commentary.
Consultation
The Audit, Risk and Improvement Committee reviewed and provided comment on the Governance Lighthouse Report at the 9 March 2022 meeting, with the Committee resolving, in part, as follows:
29/2022(ARIC) The Committee requested that the Complaints and Compliments Report be included in the Governance Lighthouse Report for future meetings.
Financial Considerations
At its meeting held 19 October 2020, Council resolved the following:
1108/20 That any motions put before Council for the remainder of this term of Council that have financial implications require the Chief Executive Officer to provide a report on how those additional costs will be met.
The following statement is provided in response to this resolution of Council.
There is no financial impact as a result of this report.
Link to Community Strategic Plan
Theme 4: Responsible
|
Goal G: Good governance and great partnerships |
|
R-G2: Communicate openly and honestly with the community to build a relationship based on transparency, understanding, trust and respect. |
|
|
|
|
|
Item No: 2.7 |
|
|
Title: Outcomes of Public Exhibition and Finalisation of Planning Proposal and Planning Agreement, Doyalson-Wyee RSL Club, Pacific Highway, Doyalson |
|
|
Department: Environment and Planning |
|
|
24 May 2022 Ordinary Council Meeting |
|
Reference: RZ/4/2018 - D15016627
Author: Charlotte Ryan, Strategic Planner
Scott Duncan, Section Manager Land Use and Policy
Manager: David Milliken, Unit Manager Strategic Planning
Executive: Alice Howe, Director Environment and Planning
1 That Council amend Planning Proposal (RZ/4/2018) as exhibited in response to issues raised by submissions as follows:
a Rezone Biodiversity Corridor A to C3 Environmental Management and Corridors B and F to C2 Environmental Conservation.
b Amend the size and width of Corridor B, C and F as shown in Figure 6.
c Reconfigure the R2 – Low Density Residential and RE2 – Private Recreation zone boundaries along the western boundary of the site as shown in Figure 7.
d Amend the Planning Agreement to respond to submissions from Biodiversity Conservation Division and Transport for NSW, as discussed in further detail in this report.
2 That Council support the Planning Proposal (RZ/4/2018) subject to the changes outlined above.
3 That Council request the Chief Executive Officer to undertake all necessary actions to finalise the Planning Agreement associated with this Planning Proposal.
4 That Council request the Department of Planning and Environment to finalise and make the amendment to Wyong Local Environmental Plan 2013 or Central Coast Local Environmental Plan 2022, whichever is in effect at the time.
5 That all those who made submissions during the public exhibition be advised of Council’s decision.
|
Report Purpose
The purpose of this report is to consider the Planning Proposal on land at 49-65 Wentworth Avenue and 80-120 Pacific Highway, Doyalson, following public exhibition and seek endorsement for the Planning Proposal through an amendment to the Wyong Local Environmental Plan 2013 (WLEP 2013) or the Central Coast Local Environmental Plan 2022 (CCLEP 2022), whichever is in effect at the time.
A Council resolution is required to submit the Planning Proposal to the Department of Planning and Environment (DPE) for finalisation. As per the Gateway Determination, staff do not have delegation for this decision and therefore the Planning Proposal cannot proceed without a Council resolution.
Executive Summary
The Planning Proposal seeks to amend the planning controls to allow for the relocation and expansion of Doyalson-Wyee RSL Club and gym and redevelop the site to incorporate low density residential dwellings, seniors housing, medical facilities, childcare centre, service station, food outlets, hotel accommodation and expand the recreation facilities to include an indoor sport facility, go cart track, paintball and expansion of the Raw Challenge course.
In accordance with the Gateway determination issued on 25 August 2021, the Planning Proposal was exhibited from 19 November 2021 to 17 December 2021. A total of seven submissions were received from the community and six were received from NSW Government agencies.
This report provides a summary of the submissions and outlines changes to the Planning Proposal that are proposed in response to feedback received through the exhibition process. |
Background
At the Ordinary Council meeting held on 27 April 2020, Central Coast Council resolved to prepare a Planning Proposal and request a Gateway Determination from DPE.
In July 2021, Council requested a Gateway Determination pursuant to Section 3.34 of the Environmental Planning Assessment Act 1979 (EP&A Act), with respect to the subject Planning Proposal. A Gateway Determination was issued on 25 August 2021, with an 18-month timeframe for finalisation of the proposed amendment to the relevant local environmental plan (LEP) (i.e. 25 February 2023).
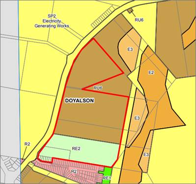
Current Status
The Planning Proposal was exhibited for a period of 28 days from 19 November 2021 to 17 December 2021. Council has considered all submissions and prepared this report to address community and NSW Government agency responses. Figure 1 identifies the stage the Planning Proposal is at in the LEP amendment process.

Figure 1 – Local Environmental Plan amendment/rezoning process
Several amendments have been made to the Planning Proposal in response to submissions. A summary of these changes is provided in the following section. If Council endorses the recommendations of this report, the Planning Proposal will be sent to DPE for finalisation.
Report
The Site
The subject site (Figure 2) is located at 49-65 Wentworth Avenue and 80-120 Pacific Highway, Doyalson. The site is approximately 45 hectares and includes the Doyalson-Wyee RSL Club, gymnasium, sporting fields, Raw Challenge course, a dwelling house, greenhouses, offices and ancillary facilities to support a former agricultural business (Pacific Hydroponics).
Access to the site is from Wentworth Avenue (Doyalson-Wyee RSL Club access) and Pacific Highway (120 Pacific Highway). Vegetation is largely concentrated along the eastern boundary of the site, 100 Pacific Highway and 120 Pacific Highway. A biodiversity strategy has been developed to preserve and protect vegetation on site.
Surrounding land uses include:
· rural residential development to the north,
· the former Munmorah Power Station to the east,
· residential development to the south, and
· the Pacific Highway to the west.
![]()
![]()
![]()
![]()
![]()
![]()
![]()






Figure 2 – Aerial view of the site and surrounds
The Proposal
The Planning Proposal seeks to amend WLEP 2013 or the future CCLEP 2022 (whichever is in effect) as follows (Figures 3 and 4):
· rezone 49-65 Wentworth Avenue and 80 – 90 Pacific Highway from RE2 Private Recreation to R2 Low Density Residential;
· rezone a portion of 100-110 Pacific Highway from RU6 Transition to R2 Low Density Residential and the remaining portion of 100-120 to RE2 Private Recreation (see Figures 3 and 4);
· amend the minimum lot size map to apply a minimum lot size of 450m² to the R2 Low Density Residential land to retain consistency with residential development in Wentworth Avenue;
· amend Schedule 1 (additional permitted uses), Clause 1 (and associated mapping) to remove the current provisions applying to the Doyalson-Wyee RSL Club site; and
· insert a new clause within Schedule 1 to allow:
- on land zoned R2 Low Density Residential the uses of health service facility, registered club and recreation facility (indoor); and
- on land zoned RE2 Private Recreation (excluding 120 Pacific Highway, Doyalson) the uses of centre based childcare facility, health service facility, hotel and motel accommodation, seniors housing, service station and serviced apartments.


Figure 3 – Current zoning


Figure 4 – Proposed zoning
The intended outcome of the Planning Proposal is to allow for the relocation and expansion of Doyalson-Wyee RSL Club and gym and redevelopment of the site to incorporate low density residential dwellings, seniors housing, medical facilities, childcare centre, service station, food outlets, hotel accommodation and expand the recreation facilities to include an indoor sport facility, go cart track, paintball and expansion of the Raw Challenge course. The site is proposed to be redeveloped in stages over the next 20 years.
Subsequent amendments have been made to the proposed zoning layout in response to submissions received during exhibition. Amendments include zoning parts of 120 Pacific Highway to comprise the biodiversity corridors from RU6 Transition to C3 Environmental Management and C2 Environmental Conservation, and parts of 90-100 Pacific Highway from RE2 Private Recreation or RU6 Transition to C2 Environmental Conservation. This is discussed in further detail below.
The Proponent has offered to enter into a Planning Agreement with Council to implement the biodiversity strategy and vegetation management plan and to ensure that development is not able to commence on 90 Pacific Highway, Doyalson until suitable alternative grounds and facilities have been found for all the sporting groups currently using the site.
The Planning Agreement was exhibited for a period of 28 days concurrently with the Planning Proposal from 19 November 2021 to 17 December 2021. Prior to finalising the Planning Proposal, the Chief Executive Officer will exercise their delegation to execute the draft Planning Agreement associated with this Planning Proposal. This will occur prior to the finalisation of the Planning Proposal (see Recommendation 3 of this report).
In accordance with the Planning Agreement, the Proponent must fulfill the following obligations:
· facilitate the relocation of the sporting clubs to one or more alternative locations, prior to the issue of the first Construction Certificate for any part of the development to be carried out in the area of the existing sporting fields;
· if the Proponent is unable to relocate the sporting cubs, the Proponent must elect to either reduce the size of the existing sporting fields to accommodate for the sporting groups that are still utilising the existing sporting fields at the time or negotiate with Council in relation to payment of a mutually agreed fixed sum for the purpose of Council providing public amenity or public services for the sporting clubs;
· a landscape plan must be prepared for the relevant landscape corridor at the time of lodgement for any Development Application;
· a vegetation management plan must be prepared for the relevant biodiversity corridor and submitted at the lodgement of any development application;
· establish biodiversity corridors generally in accordance with documents referenced in the Planning Agreement;
· register a restrictive covenant over each landscape corridor; and
· construct, at its own cost, traffic control signals and an intersection upgrade at 100 Pacific Highway. The works must be completed prior to the first occupation certificate for traffic generating development on the site.
Consultation
The Planning Proposal and draft Planning Agreement were publicly exhibited from 19 November 2021 to 17 December 2021. Exhibition of the Planning Proposal was undertaken in accordance with DPE’s A Guide to Preparing Local Environmental Plans and the Gateway Determination.
Community consultation
Seven submissions were received from the community during the exhibition period, six of which objected to the proposal. The matters raised in the submissions are summarised and responded to in Attachment 1.
The main concerns raised are discussed below.
Issue: Noise impacts from the proposed day-care centre, go-kart track and increased residential population
Staff response: The Planning Proposal is supported by an Acoustic Impact Assessment that considers the acoustic impacts associated with the proposed rezoning and land uses. The noise emissions are likely to be manageable due to the physical separation from the residential zone located in the southern portion of the site and private recreation zone to the north. Notwithstanding this, further acoustic assessments will be required to support proposed developments at the development application stage.
Issue: There is an impact on endangered ecological communities and existing vegetation. There are no guarantees of future encroachment on vegetation areas or that hollow trees will not be removed over time.
Staff response: The Planning Proposal provides for several landscape and biodiversity corridors on site that retain and manage native vegetation, including endangered ecological communities and the planting of new vegetation. Overall, the total area of both biodiversity and landscape corridors comprises 9.64 hectares. To ensure these corridors are secured and managed in perpetuity, it is proposed to:
1) rezone two biodiversity corridors C3 Environmental Management and C2 Environmental Conservation; and
2) register a restrictive covenant on title over the landscape corridors to ensure these are protected in perpetuity.
The Planning Agreement outlines a number of commitments by the Proponent to Council, including the establishment, protection and maintenance of biodiversity and landscape corridors, and the identification of retained hollow bearing trees.
Issue: The loss of the playing fields will have a big impact on the available open space to the residents of Doyalson. With the introduction of the residential lots as well as the Seniors Living, where are the proposed recreation and open space opportunities for this community?
Staff response: As stipulated in the Planning Agreement, the Proponent must facilitate the relocation of the sporting clubs to one or more alternative locations. Whilst this will result in some reduction in the provision of open space for formalised active recreation, there are opportunities to provide passive, informal recreation and play spaces more suited to the needs of the wider community.
The concept masterplan also proposes a number of recreational and passive open space uses including a health and wellness precinct, indoor sport centre and central park with potential community hub.
Issue: The existing Club has a poor history of vegetation management on the site. Who will be responsible for the management of vegetation within the site and will weed management be undertaken in the meantime?
Staff response: The Proponent has offered to enter into a Planning Agreement with Council to implement a vegetation management plan for each of the biodiversity corridors, which will include management and maintenance activities to be carried out. The vegetation management plan will be implemented for a period of no less than 10 years.
Issue: The existing residential area of Doyalson is not connected to the adjacent suburbs. How will the proposed development improve connectivity?
Staff response: The first stage of the master plan will deliver key traffic and road infrastructure to service the area and improve access for the wider network. A signalised intersection and new internal vehicle and pedestrian access routes will be constructed as part of the development. Due to low pedestrian activity, there are limited pedestrian facilities around the site. No formal pedestrian crossings are located near the existing RSL Club however there are existing on-road cycling routes along the Pacific Highway.
Issue: The proposed layout does not indicate the location of proposed on-site detention or water quality facilities. How will stormwater from the site be controlled in quantity and quality?
Staff response: A stormwater management report accompanies the Planning Proposal and assesses the potential impacts on water quality, quantity, effects to downstream wetlands and flooding for local overland flows and accessibility during flood events. The modelling indicates that stormwater detention basins will be required to attenuate storm flows to pre-development conditions. The study concludes that with appropriate controls, stormwater can be adequately managed for the site and does not prevent the rezoning of the site. Detailed stormwater design and modelling will be required to accompany a future development application for the proposal.
Issue: How is the impact of additional traffic on the Wentworth Avenue proposed to be managed by the developer?
Staff response: The redevelopment of the site requires the construction of a signalised intersection on the Pacific Highway (approximately at the boundary of 100 and 110 Pacific Highway, Doyalson). The residential traffic that is proposed as part of the development is anticipated to largely access the site via the new signalised intersection, to avoid delays at the Wentworth Avenue and Pacific Highway intersection.
Future development applications will trigger the requirement for more detailed traffic impact assessment and traffic modelling to enable assessment of the impact of the progressive developments on the Pacific Highway and to inform the requirement for future intersection upgrades by the developer.
Issue: The location of this proposal lies between two well-known large ash dams with documented histories of hazardous ash being blown away from the ash dams at Vales Point and from the ash dam from the former Lake Munmorah Power Station. Who is going to take responsibility when all these new residents start complaining of excess dust blowing through their property?
Staff response: The NSW Environment Protection Authority (EPA) was consulted on this matter. The EPA provided the following advice:
‘The NSW Government is taking meaningful steps to manage the health and environmental risks relating to NSW’s coal ash repositories. Thirteen of the sixteen recommendations in the coal ash dam inquiry were supported and the Government has proposed alternative means of achieving the intent of the remaining three.
The EPA has committed to understanding the impacts of coal ash through our research agenda; and has commenced a study of surface and groundwater around the State’s coal fired power stations and ash repositories.
Furthermore, some measures recommended by the inquiry, such as the re-use of coal ash, are already underway through the Government’s comprehensive Waste and Sustainable Materials Strategy 2041. This is backed by $356 million in funding, as well as a commitment to create stronger markets for recycled materials.
The EPA has investigated reports of dust emanating from the ash dam of Vales Point Power Station during dry and windy conditions. The EPA is aware that the operator is using several methods to reduce the incidence of wind-blown dust. The EPA will continue to ensure that all practical action is taken to reduce the risk of off-site dust impacts.’
Council will continue to monitor the NSW Government’s progress with the recommendations of the NSW Legislative Council’s coal ash inquiry and respond accordingly. The inquiry did not recommend restriction of residential development in the vicinity of the subject land.
A detailed response to each of these matters is provided in Attachment 1.
NSW Government agency and Land Council consultation
Agencies and Darkinjung Local Aboriginal Land Council (DLALC) were consulted prior to public exhibition and again during the exhibition period. The Gateway Determination stipulated that consultation was to occur with the following organisations:
· Biodiversity and Conservation Division (BCD) of the Department of Planning and Environment;
· DALC;
· Division of Resources and Geoscience;
· NSW Rural Fire Service (RFS);
· Subsidence Advisory NSW (SANSW);
· Transport for NSW (TfNSW); and
· Department of Primary Industries (Water).
Council also invited the following agencies to provide comment:
· NSW Environment Protection Authority (EPA);
· NSW Health; and
· Natural Resources Access Regulator (NRAR).
At the time of preparing this report, submissions were received from the following agencies:
· BCD;
· TfNSW;
· RFS;
· SANSW;
· NRAR; and
· EPA.
The feedback provided by these agencies is summarised and responded to in Attachment 2.
The Proponent engaged with Jemena, an energy infrastructure company, due to a high-pressure gas pipeline located underground adjacent to the eastern (rear) boundary of the site. The pipeline is owned and operated by Jemena. Prior to community consultation, Jemena confirmed it had no objections to the Planning Proposal, including the seniors housing dwellings and other sensitive land uses in proximity to the high-pressure pipeline. This is discussed in further detail within this report.
As a result of agency consultation during the exhibition period, the following amendments have been made to the Planning Proposal.
Ongoing security and management of landscape and biodiversity corridors
A key matter raised by BCD was the lack of certainty regarding the security and management of the biodiversity corridors transecting the site, in particular Corridor A, which is a regionally significant biodiversity corridor identified in the North Wyong Shire Structure Plan (Figure 5).


Figure 5 – Extract of North Wyong Shire Structure Plan Staging Plan identifying location of indicative biodiversity corridor
To ensure these corridors are secured and managed in perpetuity, the following amendments have been made (Figure 6):
· retain Corridor A as a biodiversity corridor and rezone to C3 Environmental Management;
· retain Corridor B and F as a biodiversity corridor and rezone to C2 Environmental Conservation;
· retain Corridors C, D and E as landscape corridors, zoned RE2 – Private Recreation and R2 – Low Density Residential; and
· register a restrictive covenant on title (under s88E of the Conveyancing Act 1919) over Corridors C, D and E to ensure the corridors are protected in perpetuity.
In addition to the above amendments, the Proponent has initiated the following changes to the biodiversity and landscape corridors:
· minor reduction in width of Corridor B;
· widening of Corridor F in the mid-section;
· reclassification of a portion of Corridor F as Landscape Corridor G;
· reclassification of Corridor C as a landscape corridor;
· increased size of Corridor C to include additional areas to the north-west and north-east to protect additional endangered ecological communities;
· reclassification of north-western corner of Corridor F as Landscape Corridor;
· reclassification of Central Park as part of Corridor E; and
· increase in total area of biodiversity and landscape corridors from 9.53ha to 9.64ha.
|
|
|
|
Previously proposed biodiversity and landscape corridor mapping |
Currently proposed biodiversity and landscape corridor mapping |
|
Figure 6 – Comparison of previous biodiversity and landscape strategy (as exhibited) versus proposed biodiversity and landscape strategy |
|
Bushfire protection
In addition to the rezoning of the biodiversity and landscape corridors, a minor amendment is proposed to the boundaries of the R2 and RE2 zones. It is proposed to zone a small portion of land along the western boundary of the site, previously proposed as RE2 – Private Recreation to R2 – Low Density Residential.
The zoning change is due to bushfire constraints. Seniors Living was previously proposed on the RE2 portion of the site; however, due to the requirement for special fire protection buffers and asset protection zones, Seniors Living is not permitted in this area. It is therefore proposed to rezone this portion to R2 – Low Density Residential.
The zoning change is supported for the reasons outlined below:
· the proposal, as amended, does not propose a zone that was not otherwise proposed as part of the exhibited Planning Proposal;
· the proposal, as amended, does not intensify residential development on the site but rather results in a reduction of residential lots from 361 to 355;
· the proposal, as amended, increases the amount of land zoned for environmental conservation and management purposes from 0m2 to 53,925m2 (12.2% of the site area); and
· the proposed R2 zone is capable of accommodating future residential dwellings and complying with all asset protection zone and special fire protection requirements.
|
|
|
|
Figure 7 – Exhibited zoning map |
Figure 8 – Amended zoning map |
Mine subsidence
The site is located within the Swansea North Entrance Mine Subsidence District and Consolidated Coal Lease held by Centennial Mannering Pty Ltd (Centennial). Consultation has been undertaken with SANSW and Centennial Coal, who advised that future mining under the location is unlikely. Part of the land is also located directly over historical underground mine workings in the Great Northern Seam. The risk of unplanned subsidence caused by instability from historical mine workings is considered to be low.
Given the mine subsidence risks outlined above, SANSW did not object to the proposal.
Future development and subdivision applications will be assessed in accordance with current policies.
As mentioned earlier in this report, a high-pressure gas pipeline also runs through the site (east to west) at the common boundary of 100-110 Pacific Highway, Doyalson. To ensure the safety of the future users of the land in proximity of the pipeline, DPE required the following additional information to be submitted prior to public consultation:
· a risk assessment prepared in consultation with Jemena to demonstrate compliance with the risk criteria in DPE’s Hazardous Industry Planning Advisory Paper No. 10, ‘Land Use Safety Planning’ guideline (HIPAP 10); and
· evidence that the existing high-pressure pipeline can continue to comply with Australian Standard 2885 (the standard for gas and liquid petroleum pipelines) throughout the life of developments associated with the planning proposal.
Jemena confirmed it had no objections to the Planning Proposal, including the Seniors Living dwellings and other sensitive land uses in proximity to the high-pressure pipeline.
Following consultation with Council, the landowner and Jemena, DPE’s Hazards Specialist team confirmed that the revised hazard analysis:
· demonstrated compliance with the quantitative risk criteria;
· had been prepared generally in accordance with the qualitative risk criteria; and
· adequately addressed previous comments provided by the Hazard Specialist team.
Given the above, the Planning Proposal has demonstrated the suitability of the proposed land uses in proximity to the high-pressure pipeline.
Planning Agreement
The draft Planning Agreement was publicly exhibited with the Planning Proposal and supporting studies. Comments were received from both BCD and TfNSW. The Planning Agreement has been amended as follows.
BCD
The Planning Agreement included a five-year vegetation management plan. BCD requested this be increased to provide for the long-term protection of the biodiversity corridors.
The Planning Agreement has been amended to require the preparation of a vegetation management plan (VMP) for each biodiversity corridor. The terms of the VMP must provide for an implementation period of no less than 10 years.
A landscape plan (with management measures) is also required for each landscape corridor. The landscape plan for Corridor E must identify a minimum of 31 hollow bearing trees (including their tree protection zones) and the requisite measures for retaining the hollow bearing trees.
The Planning Agreement also stipulates that a restrictive covenant is to be registered over each landscape corridor. The Covenant is to be registered on the relevant titles pertaining to each landscape corridor prior to the issue of the final occupation certificate for the relevant phase of development.
TfNSW
TfNSW raised no objection to the Planning Proposal; however, required the Pacific Highway intersection to be upgraded to include traffic signals. Consideration is to be given to the staging of necessary infrastructure and land release sequencing, to ensure the delivery of the intersection works. TfNSW also required that an appropriate mechanism is in place to ensure that if any lots are on-sold to different developers in the future, any intersection upgrade costs are apportioned accordingly.
The Planning Agreement has been amended to include a requirement for the signalised intersection to be constructed as part of the first development application for traffic generating development (which excludes a development application to authorise englobo subdivision and services for englobo lots, site consolidation, site preparation works and/or subdivision). Signal installation and intersection upgrade works are to be completed prior to the issue of the first occupation certificate for traffic generating development on the site.
Outcomes of consultation
Based on the community and agency feedback, the Planning Proposal has satisfied relevant statutory requirements relating to consultation.
Financial Considerations
At its meeting held 19 October 2020, Council resolved the following:
1108/20 That any motions put before Council for the remainder of this term of Council that have financial implications require the Chief Executive Officer to provide a report on how those additional costs will be met.
The following statement is provided in response to this resolution of Council.
The direct cost to Council is the finalisation of the Planning Proposal, which will be charged as per Council’s Fees and Charges on a cost recovery basis. This will have no impact on Council’s budget bottom line.
Development contributions will also be levied in accordance with the following contribution plans, all of which apply to the site:
· San Remo District Contribution Plan;
· Shirewide Infrastructure, Services and Facilities Development Contribution Plan; and
· Central Coast Regional Section 7.12 Development Contribution Plan
Council levies development contribution where additional infrastructure is required for the growing population. This may include local roads, stormwater and drainage, shared pathways, parks and community facilities. A Section 7.12 contribution, based on the value of the proposed development, may also be levied and contribute towards other works and regional facilities.
Link to Community Strategic Plan
Theme 5: Liveable
|
Goal L: Healthy lifestyle for a growing community |
|
L-L1: Promote healthy living and ensure sport, leisure, recreation and aquatic facilities and open spaces are well maintained and activated. |
Theme 3: Green
|
Goal I: Balanced and sustainable development |
|
R-I3: Ensure land use planning and development is sustainable and environmentally sound and considers the importance of local habitat, green corridors, energy efficiency and stormwater management. |
Risk Management
The assessment of LEP amendments, including rezoning, is part of the regular business of Council and does not introduce any new organisational risk. The risks to the natural and built environment associated with this Planning Proposal have been assessed and are considered manageable through appropriate zoning. The risks associated with development of the site will be considered as part of the development assessment process.
Options
1 Endorse the Planning Proposal, as amended, for finalisation. The Planning Proposal has strategic merit and any matters raised during public exhibition have been addressed. This is the recommended option.
2 Refuse the finalisation of the Planning Proposal. The Planning Proposal has been assessed on its merit and is deemed to be a suitable proposal. This option is not recommended.
Critical Dates or Timeframes
In accordance with the Gateway Determination, there is a requirement to finalise the Planning Proposal by February 2023. Subject to Council’s endorsement of this report, the amended Planning Proposal will be forwarded to DPE for amendments to the relevant LEP to be made.
|
1⇨ |
Community Submission Summary and Council Response |
Provided Under Separate Cover |
D15132333 |
|
2⇨ |
Government Agency Submission Summary and Council Response |
Provided Under Separate Cover |
D15132335 |
|
Item No: 2.8 |
|
|
Title: Adoption of Clause 5.22 Special Flood Considerations under Central Coast Local Environmental Plan 2022 |
|
|
Department: Environment and Planning |
|
|
24 May 2022 Ordinary Council Meeting |
|
Reference: F2020/00039 - D15139549
Author: Rodney Mergan, Senior Strategic Planner
Manager: Scott Duncan, Section Manager Land Use and Policy
David Milliken, Unit Manager Strategic Planning
Executive: Alice Howe, Director Environment and Planning
1 That Council request the Department of Planning and Environment to include Standard Instrument Clause 5.22 into the Central Coast Local Environmental Plan 2022.
2 That Council request that all land uses identified for potential consideration by the Department of Planning and Environment under Standard Instrument Clause 5.22 be included under Clause 5.22 of Central Coast Local Environmental Plan 2022.
3 That Council note that the Department of Planning and Environment has indicated the Central Coast Local Environmental Plan will be made by the end of June 2022 with a one-month deferred commencement period and will include Clause 7.23 Transitional Provisions for Floodplain Risk Management, retaining the current controls under Clause 7.3 of Gosford Local Environmental Plan 2014 and Clause 7.3 of Wyong Local Environmental Plan 2013 until such time as Standard Instrument Clause 5.22 comes into effect.
|
Report purpose
To seek Council endorsement for the replacement of Clause 7.3 Floodplain Risk Management with the standard instrument Clause 5.22 Special Flood Considerations under Central Coast Local Environmental Plan (CCLEP) 2022.
Executive Summary
As part of the finalisation of CCLEP, the Department of Planning and Environment (DPE) recently informed Council that Clause 7.3 Floodplain Risk Management, a provision contained in Council’s current and exhibited draft Local Environmental Plans (LEPs), cannot continue to operate in the new CCLEP. This is due to existing Clause 7.3 being similarly worded to the recently drafted model clause in the standard instrument, Clause. 5.22 Special Flood Considerations. DPE has advised Council that if it wishes to continue with this type of provision, then Council must use the recently drafted model clause and that a resolution of Council is required to support this action.
This report provides the justification for requesting Clause 5.22 be introduced into CCLEP, discusses the implications of not completing this action and outlines the steps that have been taken to ensure this issue does not delay the introduction of CCLEP nor alter the considerations of flood impacts under Council’s LEP.
DPE has recently advised Council that the CCLEP will be notified by the end of June 2022 with a one-month deferred commencement period before becoming effective. |
Background
Flood Planning Level and Probable Maximum Flood Level
All Standard Instrument LEPs across NSW contain a mandatory clause that requires the consideration of flooding impacts where development is proposed below the designated flood planning level. The flood planning level is the 1% annual exceedance probability flood plus 0.5 metres of freeboard.
Additional model provisions allow for local government areas where flooding is a substantial concern to have an additional clause that requires further consideration of flood impacts for certain sensitive and critical land uses, such as hospitals and aged care facilities. This clause relates to a more conservative flood level and is known as Probable Maximum Flood (PMF). Given the nature of the Central Coast and its waterways Wyong LEP (WLEP), 2013, Gosford LEP (GLEP) 2014 and the draft CCLEP 2022 contain provisions related to PMF flooding.
The Flood-Prone Land Reform Package
The DPE publicly exhibited a Flood-Prone Land Reform Package from 30 April 2020 until 25 June 2020. This package included:
· a revised Planning Circular;
· a new guideline: Considering Flooding in Land Use Planning (2020).
Following the consideration of public submissions, DPE issued a further revised package of information, which came into effect on 14 July 2021.
With regard to the flood planning level, the revised package introduced a change to the State-wide Standard Instrument LEP with mandatory Clause5.21 Flood Planning replacing Clause 7.2 Flood Planning in all councils’ LEPs. As this change impacted all Standard Instrument LEPs across NSW, Clause 5.21 has replaced Clause 7.2 in WLEP 2013, GLEP 2014 and the draft CCLEP 2022. This change did not have a significant impact on flooding considerations under LEPs across the Central Coast.
With regard to the consideration of flood planning to the PMF, the revised package also included model (but non – compulsory) Clause 5.22 Special Flood Considerations.
Current Status
WLEP 2013, GLEP 2014 and the exhibited draft CCLEP contain:
· Clause 5.21 Flood Planning - generally applying to land below the flood planning level; and
· Clause 7.3 Floodplain Risk Management - applying to nominated sensitive and critical land uses on land between the flood planning level and the PMF. This clause achieves the same intent as model Clause 5.22.
Though Clause 7.3 exists in WLEP 2013, GLEP 2014 and the draft publicly exhibited CCLEP, Council has recently been informed by DPE that it cannot continue with the current Clause 7.3 due to its similarity to model Clause 5.22 Special Flood Considerations.
As CCLEP is currently proposed to be notified by the end of June 2022 and will come into force shortly after, DPE and the NSW Parliamentary Counsel’s Office has indicated that Clause 5.22 cannot be included at this late stage without delaying the introduction of CCLEP.
It is not appropriate that the introduction of CCLEP be further delayed for the introduction of a standard clause which achieves the intent of an existing clause already in the draft CCLEP. Nor is it appropriate that the LEP come into force without existing controls that relate to development on the floodplains of the Central Coast. As such, Council has proposed and DPE has agreed to a temporary measure being an interim or sunset clause within CCLEP that will allow the provisions of Clause7.3 to continue to operate until such time as Clause 5.22 comes into force. This temporary measure will only be required for a short period (estimated to be for the remainder of this calendar year) and will allow for the assessment of development applications to continue as they currently do.
DPE requires any Council seeking to introduce Clause 5.22 into their LEPs to:
· inform DPE they wish to “opt in” for this LEP clause;
· provide a rationale as to why the Council should be permitted to add this clause to its LEP;
· obtain a Council Resolution in support of opting to include the Clause; and
· review the land uses to be considered under Clause 5.22.
This process is required for all councils whether they already have a very similar LEP clause or not.
Report
It is proposed that Council request DPE to introduce Clause. 5.22 in lieu of the current Clause 7.3 of draft CCLEP 2022. Whether dealt with under current Clause 7.3 or the new Clause 5.22, the extent of flooding and the planning controls to address it are addressed in adopted documents such as Flood Risk Management Plans and Development Control Plans. The land subject to flooding is available to the public though Council’s online mapping and is not affected by the wording of the LEP flood clauses. These flood planning controls have been consistently applied for many years across the Central Coast.
As part of the process of adopting Clause 5.22, DPE requires that consideration be given to which sensitive and critical land uses are to consider the PMF rather than the standard flood planning level. A list of land uses is provided by DPE. Council can potentially remove land uses from this list but cannot add them. As per Attachment 1, it is proposed that all land uses listed by DPE should be assessed using the PMF as this is generally consistent with the land uses publicly exhibited under Clause 7.3 of draft CCLEP 2022.
Inclusion of the new Clause 5.22 in lieu of the equivalent Clause 7.3 will enable CCLEP 2022 to be made and for the existing flood planning approach to be retained until such time as the model Clause 5.22 comes into effect across NSW, which is expected later this calendar year.
Consultation
The draft CCLEP 2022 was publicly exhibited with Clause 7.3 included. No submissions were received regarding the retention or application of this clause.
DPE undertook extensive industry and public consultation regarding the introduction of the new controls as part of its Flood-Prone Land Reform Package in 2020 and 2021.
It is an administrative process to adopt Clause 5.22 based on the advice of DPE that the current Clause 7.3 is too similar to model Clause 5.22 for it to be retained once Clause 5.22 comes into effect. DPE have agreed to retain flood planning controls in the meantime through a temporary transitional clause that retains the current Clause 7.3 until such time as Clause 5.22 comes into effect.
The land uses to be considered under the current Clause 7.3 were identified in consultation with Council’s Strategic Planning Unit, Development Assessment Unit and Environmental Management Unit and Environmental Compliance Services Unit. The land uses included in Clause 5.22 are substantially the same as those included in Clause 7.3 (Attachment 1).
Financial Considerations
At its meeting held 19 October 2020, Council resolved the following:
1108/20 That any motions put before Council for the remainder of this term of Council that have financial implications require the Chief Executive Officer to provide a report on how those additional costs will be met.
The following statement is provided in response to this resolution of Council.
The recommendations in this report will not entail additional costs to Council. Opting into the new flood planning clause will only involve a minor change in wording to the existing flood planning clause.
Delaying introduction of a consolidated LEP for the Central Coast has material impacts on Council’s capacity to process development applications and planning proposals, as staff are required to manage two separate LEPs.
Link to Community Strategic Plan
Theme 4: Responsible
|
Goal I: Balanced and sustainable development |
|
R-I3: Ensure land use planning and development is sustainable and environmentally sound and considers the importance of local habitat, green corridors, energy efficiency and stormwater management. |
|
Goal G: Good governance and great partnerships |
|
B-A3: Work together to solve a range of social and health issues that may impact community wellbeing and vulnerable people. |
Risk Management
Should Council resolve not to adopt the recommended flood clause, Council will be exposed to risks that either the consolidated LEP will not be made until the model Clause 5.22 comes into effect or that the LEP is made without a planning controls for sensitive development, which would mean that development may not adequately consider flood impacts.
Options
1 Endorse the adoption of Clause 5.22– This is the recommended option.
2 Not endorse the adoption of Clause. 5.22 – As DPE has indicated that Clause 7.3 cannot be retained the removal of this control would be a significant change to CCLEP as exhibited and would been sensitive and critical land uses were not required to consider appropriate flooding impacts.
3 Endorse the adoption of Clause 5.22 applying to a limited set of land. The land uses that are particularly vulnerable to flood impacts has been identified through significant research undertaken by the NSW Government, and generally align with the land uses identified in Council’s current Clause 7.3.
|
1⇨ |
Clause 7.3 and Clause 5.22 - Clause and Land Use Consideration Comparison |
Provided Under Separate Cover |
D15151469 |
|
Item No: 2.9 |
|
|
Title: Variations to Development Standards - January to March 2022 |
|
|
Department: Environment and Planning |
|
|
24 May 2022 Ordinary Council Meeting |
|
Reference: F2020/00039 - D15006294
Author: Luke Sulkowski, Unit Manager Environmental Compliance Services
Executive: Alice Howe, Director Environment and Planning
That Council notes the report on Variations to Development Standards – January – March 2022.
|
Report purpose
To inform Council of development applications determined (in the period from 1 January to 31 March 2022) where there has been a variation in development standards under an Environmental Planning Instrument. This is a requirement under Planning Circular PS 2-002 – ‘Variation to Development Standards’.
Executive Summary
This report provides information regarding development applications determined where there has been a variation in standards in an Environmental Planning Instrument (as is required by Planning Circular PS 2-002 – ‘Variation to Development Standards’).
For the January - March 2022 period, 641 development applications were lodged, and a total of 516 development applications were determined. A total of 18 development applications that have been determined where there has been a variation in development standards. |
Variations to Development Standards
Each quarter councils are required to report to the Department of Planning and Environment development applications that have been granted consent involving a variation to relevant development standards. The following consents were granted in the January to March 2022 period, which included a variation to a development standard within Wyong Local Environmental Plan, Gosford Local Environmental Plan or Interim Development Order No. 122 - Gosford:
· 17 development applications determined by Central Coast staff
· 1 development application determined by Local Planning Panel
· 0 development applications determined by Regional Planning Panel
A copy of the variation to development standard register for the January to March 2022 period is included in Attachment 1.
Financial Considerations
At its meeting held 19 October 2020, Council resolved the following:
1108/20 That any motions put before Council for the remainder of this term of Council that have financial implications require the Chief Executive Officer to provide a report on how those additional costs will be met.
The following statement is provided in response to this resolution of Council.
There are no material financial implications for Council associated with this report. The determination of development applications is part of the routine business of Council and is conducted using staff resources, as adopted in the 2021-2022 Budget.
Link to Community Strategic Plan
Theme 4: Responsible
|
Goal I: Balanced and sustainable development |
|
R-I3: Ensure land use planning and development is sustainable and environmentally sound and considers the importance of local habitat, green corridors, energy efficiency and stormwater management. |
Risk Management
There are no material risk implications for Council associated with this report. Determination of development applications is a core Council function. Variations to development standards are considered on a merit basis and reported to Council, the community and the Department of Planning and Environment on a quarterly basis.
|
1⇨ |
Variations to Development Standards Register – January to March 2022 Period |
Provided Under Separate Cover |
D15149160 |
|
Item No: 2.10 |
|
|
Title: Central Coast Local Planning Panel - Membership |
|
|
Department: Environment and Planning |
|
|
24 May 2022 Ordinary Council Meeting |
|
Reference: F2020/02502 - D15158832
Author: Andrew Roach, Unit Manager, Development Assessment
Executive: Alice Howe, Director Environment and Planning
1 That Council resolve, in accordance with Schedule 2 Clause 11 (3) of the Environmental Planning & Assessment Act 1979, to continue the existing Central Coast Local Planning Panel Chair, Expert and Community Panel membership (as noted in Attachment 1) for a period expiring on 29 February 2024; and
2 That Council, noting the resignation of one existing Local Planning Panel member, resolve in accordance with Schedule 2 Clause 11 (1) of the Environmental Planning & Assessment Act 1979 to appoint two additional members to the ‘expert’ panel list (as noted in Attachment 1) for a period expiring on 29 February 2024.
|
Report purpose
To extend the appointment period of current Central Coast Local Planning Panel members until 29 February 2024, and to appoint additional members to the Central Coast Local Planning Panel.
Executive Summary
The Central Coast Local Planning Panel was constituted via resolution at the Ordinary Meeting of Council on 11 May 2020. The current appointees to the Panel have been appointed for a period expiring on 11 May 2023.
The Department of Planning and Environment (DPE) has advised its intention to bring into alignment the appointment periods of all Local Planning Panels throughout NSW and, on this basis, the Minister for Planning has required that all councils appoint their Local Planning Panel to a term expiring on 29 February 2024. This report seeks to extend the appointment term of the current Panel members to that date.
In addition, this report sets out an intention to appoint two additional members to the Panel in order to replace a Panel member who has resigned from the Panel, and to expand the Panel. This is recommended to cater for workloads and to ensure appropriate obligations can be met, including ensuring Panel quorum, probity and to allow rotation of Panel members as required by operational guidelines. |
Background
As Directed by the Minister for Planning, at the Ordinary Meeting of Central Coast Council on 11 May 2020, Council resolved to constitute the Central Coast Local Planning Panel and to appoint the inaugural panel members for an initial period expiring 11 July 2021. At the Ordinary Meeting of Council on 27 April 21 it was resolved to extend the appointment period of Panel members until 11 May 2023.
Relevant resolutions from the Ordinary Meeting of 11 May 2020:
· Council resolve to Constitute the Central Coast Local Planning Panel (minute 371/20);
· Appoint expert and community members for a period of 14 months (minute 372/20 and 373/20)
Relevant resolution from the Ordinary Meeting of 27 April 2021:
· That Council resolve, in accordance with Schedule 2 Clause 11 (1) of the Environmental Planning & Assessment Act 1979, to continue the existing CCLPP Chair, Expert and Community Panel membership (as noted in Attachment 1), to the maximum allowable period of three years, expiring on 11 May 2023 (minute 140/21)
Operation of Local Planning Panel and Appointment of Membership
A Local Planning Panel determines a range of Development Applications on behalf of Council and provides advice on strategic planning matters such as Planning Proposals. At each meeting, the Panel is comprised of four members:
· the Chair (the Chair and alternate Chairs for each Local Planning Panel are nominated by the NSW Minister for Planning);
· two expert members with expertise in urban design, urban planning or other related field (expert panel members are appointed by Council from an approved list of candidates endorsed by the NSW Minister for Planning); and
· one community representative (selected from a pool of members appointed by Council, following a defined appointment process).
The selection of Panel membership is undertaken in accordance with Local Planning Panels Panel Member Selection Guide published by DPE.
Ministerial Directions set out the development types considered by Local Planning Panels, which can be summarised as applications involving:
· potential conflict of interest for councils
· potentially contentious development
· development that significantly departs from development standards; or
· sensitive development
Extension of Term of Appointment of Local Planning Panel
Since the matter of Local Planning Panel appointments was last considered by Council, DPE has advised its intent to ‘align appointment terms across all LPPs’ with an appointment term to ‘run through to 29 February 2024’. That is, to bring into alignment the appointment terms of all Local Planning Panel across NSW. This requirement has been clarified in written correspondence to Council from the Minister for Planning.
The period of extension set out in the recommendation of this report aims to align with the requirements of the Minister and DPE.
Term of Appointment of Local Planning Panel Members
A Local Planning Panel Member may sit on a Local Planning Panel for an appointment period of three years, which may be extended to a maximum period of six years in accordance with Schedule 2 Clause 11 (6) of the Environmental Planning and Assessment Act 1979.
The initial constitution of the Central Coast Local Planning Panel and appointment of the members was made on 11 May 2020. As such, all current Panel members are entitled to have their terms extended to 29 February 2024.
Appointment of Additional Expert Local Planning Panel Members
Since the inception of the Local Planning Panel, one of the appointed expert Panel members has advised that they are no longer able to fulfil their Panel commitments as a result of other work responsibilities.
In addition, there have been circumstances since the constitution of the Panel where the functioning of the Panel has been hindered by a shortage of Panel members. This has included Panel members being unavailable due to other commitments, being required to excuse themselves from consideration due to probity matters (Panel members must excuse themselves from deliberating on matters where they have a conflict of interest), or where the formation of a quorum has been difficult to achieve.
It is the responsibility of Council to ensure that enough members are appointed to ensure the smooth functioning of the Panel. Additional membership will also allow ongoing rotation of Panel members, as is required by the ‘Ministerial Direction -Local Planning Panels Operational Procedures Direction’ dated 30 June 2020.
For these reasons, it is recommended that the appointment of two additional expert Panel members be made. In short, this is to ensure that the Panel is capable of functioning as intended, and in order to meet the legislative requirements for Panel operations.
Selection Process for Additional Expert Panel Members
The selection of expert members to the Panel must be made from the approved list of approximately 220 professionals who have registered interest in being part of the Local Planning Panel process across NSW. DPE has undertaken appropriate background and probity checks for proposed expert Panel members, including criminal, financial and academic checks.
The Local Planning Panels Panel Member Selection Guide published by DPE does not provide specific guidance for councils on selection criteria for expert Panel members from the approved list.
In making a recommendation to Council about those recommended to be added to the Panel, Council officers have considered their breadth of skills, nature of qualifications and experience, knowledge of the local government area, experience in local government, experience in statutory planning and the like. Panel members with broad experience were preferred over candidates with narrow/single areas of expertise (noting the wide range of matters that may come before a Panel at any given meeting).
In addition, Panel members were evaluated in terms of their location, with those being located within close proximity to the Central Coast preferred (noting that the approved list of professionals includes interested parties from across NSW), and for their skills to compliment those of the expert Panel members.
The recommended additional expert Panel members are set out in Attachment 1.
Consultation
Consultation with the existing Chair of the Central Coast Local Planning Panel has been undertaken, and the Chair agreed with the approach in selecting an additional two Panel members for the Local Planning Panel, noting that such appointments would assist the Panel in achieving its legislated obligations. The DPE guidance on Panels precludes the Chair of a panel being actively involved in selecting the Panel members.
Financial Considerations
At its meeting held 19 October 2020, Council resolved the following:
1108/20 That any motions put before Council for the remainder of this term of Council that have financial implications require the Chief Executive Officer to provide a report on how those additional costs will be met.
The following statement is provided in response to this resolution of Council.
The provisions of the Environmental Planning and Assessment Act 1979 are clear that Council must make all the necessary arrangements for the operation of the Local Planning Panel. This includes: ‘ … provide staff and facilities for the purpose of enabling a local planning panel to exercise its functions’ including general secretariat services, provision of meeting facilities; reporting, technical advice and assistance to the Panel, and the payment of sitting fees for Panel members (noting that minimum sitting fees for the Local Planning are set out in the ‘Remuneration Determination’ for Local Planning Panels.
Based on the operation of the Panel since its inception, the cost of operating the Panel is in the order of $500,000 per annum.
Provision will be made in Council’s 2022-23 Budget and Long Term Financial Plan for costs associated with operation of the Local Planning Panel. The decisions recommended in this report will have no material additional cost implications, as there will not be additional sitting fees associated with the extra Panel members.
Link to Community Strategic Plan
Theme 4: Responsible
|
Goal I: Balanced and sustainable development |
|
R-I3: Ensure land use planning and development is sustainable and environmentally sound and considers the importance of local habitat, green corridors, energy efficiency and stormwater management. |
Risk Management
Central Coast Council must, by virtue of Section 2.17 of the Environmental Planning and Assessment Act, 1979 have a functioning Local Planning Panel to determine a range of development applications and provide advice on Planning Proposals. Failure to provide Panel membership, by either extending the tenure of the current panel membership or selecting alternate membership may result in the Council failing to meet its legislative obligations and slowing the assessment of Development Applications referred to the Panel.
Options
1 That Council resolve to continue the Panel membership as set out in Attachment 1. This is the recommended option to support continuity for Panel operations.
2 Resolve not to extend the appointment of current Panel membership, and instead pursue the appointment of new Panel members. Note, that the process would require a formal selection process as set out in the Ministerial Direction titled ‘Local Planning Panels Direction – Operational Procedures’ and dated 30 June 2020 and other NSW Government Guidance. This action is not recommended as it does not provide continuity for operation of the Panel, will involve lengthy selection process, and does not provide certainty and consistency in Panel operations for the near future.
3 Do nothing. This action is not recommended as it does not provide continuity for the operation of the Panel and may result in Council failing to meet its statutory obligations to ensure a functioning Panel membership (noting that Section 2.17 of the Environmental Planning and Assessment Act 1979 requires Central Coast Council to have a functioning Local Planning Panel).
Critical Dates or Timeframes
Appropriate decision-making will need to be made to ensure Panel members are in place beyond the current cessation of Panel membership on 11 May 2023.
|
1⇨ |
Proposed additional Local Planning Panel professional members |
Provided Under Separate Cover |
D15161787 |
|
Item No: 2.11 |
|
|
Title: Council nominated Members Central Coast Regional Planning Panel |
|
|
Department: Environment and Planning |
|
|
24 May 2022 Ordinary Council Meeting |
|
Reference: F2017/00693 - D15160741
Author: Andrew Roach, Unit Manager, Development Assessment
Executive: Alice Howe, Director Environment and Planning
1 That Council re-affirm the appointment of the following representatives as Central Coast Council nominees to the Hunter Central Coast Regional Planning Panel:
· Greg Flynn (Panel Expert Nominee)
· Anthony Tuxworth (Panel Community Nominee)
· Stephen Leathley (Alternate Expert Nominee)
· Lynette Hunt (Alternate Community Nominee)
2 That this representation on the Hunter Central Coast Regional Planning Panel be continued for the period until conclusion of elections for the civic offices of Central Coast Council.
|
Report purpose
To confirm membership arrangements for the Hunter Central Coast Regional Planning Panel (HCCRPP) now that civic offices of Central Coast Council have been declared vacant pursuant to Sections 255 and 256 of the Local Government Act 1993.
Executive Summary
The HCCRPP deals with Development Applications of regional significance. Prior to December 2020, the Council nominees to the HCCRPP included four Central Coast Councillors. At the time of suspension of the Council, it was resolved that Council would nominate alternative representation to the HCCRPP for the period of Councillors’ suspension.
Now that the civic offices of the Council have been declared vacant, it is recommended that the arrangements in place during the suspension period continue (that is, selected members of the Central Coast Local Planning Panel also fulfil the role of Council representatives to the HCCRPP). |
Background
The HCCRPP deals with development applications referred to it in accordance with State Environmental Planning Policy (State and Regional Development) 2011.
Prior to December 2020, the Council nominees to the HCCRPP included four Central Coast Councillors (two nominated panel members and two alternate members). At the time of suspension of the Council, by order pursuant to Section 438I of the Local Government Act 1993, the Office of Local Government advised that the nominated Councillors could no longer sit on the HCCRPP.
At the Ordinary Meeting of the Council on 14 December 2020, it was resolved that Council appoint members of the existing Local Planning Panel to be Council representatives to the HCCRPP for the period of Council suspension.
The Minutes of the Ordinary Meeting of Council of 14 December 2020, note the following resolutions:
1 That Council appoint the following representatives as Central Coast Council nominees to the Hunter Central Coast Regional Planning Panel:
Greg Flynn (Panel Nominee - from ‘expert’ Local Planning Panel list)
Anthony Tuxworth (Panel Nominee from ‘community’ Local Planning Panel list)
Stephen Leathley (Alternate Nominee from ‘expert’ Local Planning Panel list)
Lynette Hunt (Alternate Nominee from ‘community’ Local Planning Panel list )
(minute 1306/20)
2 That this representation on the Hunter Central Coast Regional Planning Panel be for the period of Council suspension under the provision of the Local Government Act 1993.
(minute 1307/20)
Report
The Sydney District and Regional Planning Panels Operating Procedures (the Operating Procedures) provide that the Council/or the Minister can alter their Panel representatives and alternate members at any time.
Now that the civic offices of the Council have been declared vacant, pursuant to Sections 255 and 256 of the Local Government Act 1993, it is recommended that representation to the HCCRPP remains the selected members of the Central Coast Local Planning Panel, as resolved by Council in December 2020.
Financial Considerations
At its meeting held 19 October 2020, Council resolved the following:
1108/20 That any motions put before Council for the remainder of this term of Council that have financial implications require the Chief Executive Officer to provide a report on how those additional costs will be met.
The following statement is provided in response to this resolution of Council:
There are no material financial impacts of the proposal, as Council already pays the sitting fees for Council nominees to the HCCRPP.
Link to Community Strategic Plan
Theme 4: Responsible
|
Goal I: Balanced and sustainable development |
|
R-I2: Ensure all new developments are well planned with good access to public transport, green space and community facilities and support active transport. |
Risk Management
Whilst the Department of Planning and Environment has confirmed that, even without Council representation, the HCCRPP can form a quorum and continue operating, the impact of not having appropriate Council representation in the decision-making process represents key governance and reputational risks, may undermine the integrity of the development assessment process and may affect community confidence in decision making.
Options
The broad options are:
1 Do nothing – this approach is not recommended as it does not provide clarity as to Council’s representation on the HCCRPP.
2 Cease the current membership to the HCCRPP and not appoint alternate nominees (not recommended).
3 Continue the current arrangement and confirm the Council nominated members of the HCCRPP until the period of conclusion of the election process for Councillors, in order to provide clarity and consistency to Panel operations and Council representation. This is the recommended option.
Nil.
|
Item No: 2.12 |
|
|
Title: Community Support Grants Program - March 2022 |
|
|
Department: Community and Recreation Services |
|
|
24 May 2022 Ordinary Council Meeting |
|
Reference: F2017/02117 - D15136605
Author: Belinda McRobie, Section Manager Community Development
Manager: Glenn Cannard, Unit Manager Community and Culture
Executive: Melanie Smith, Director Community and Recreation Services
1 That Council allocate $4,000 (inclusive of GST where applicable) from the 2021/22 grants budget to the Community Support Grant program, as outlined in the following report and Attachment 1.
2 That Council decline applications for the reasons indicated in Attachment 1, and the applicants be advised and where relevant, directed to alternate funding sources.
|
Report purpose
To seek endorsement of the recommendations for the Community Support Grant Program.
Executive Summary
This report considers the applications and recommendations for the Community Support Grant Program.
The Community Support Grant Program remains open throughout the year to provide assistance for community activities that require In-kind support through the provision of subsidised access to Council services and financial assistance for community activities that require a smaller amount of support.
This program enables applicants to apply for funding support in a quicker response time. |
Background
Council’s grant programs are provided to support the community to deliver quality programs, projects or events that build connections, celebrate our local community, that align with the One-Central Coast Community Strategic Plan and build capacity across the entire Central Coast community.
The Community Support Grant Program is provided to support the community to deliver activities which require a small amount of funding and/or in-kind support. The Community Support Grant Program remains open throughout the year to provide assistance for community activities that require:
1 In-kind support through the provision of subsidised access to Council services.
2 Financial assistance for community activities that require a smaller amount of support. The Community Support Grant Program provides a combined budget of $300,000 annually as detailed in table one below.
Table 1: Community Support Grant Program
|
Program |
Budget |
Opening Period |
2021/2022 allocation to date (inclusive of GST where applicable) |
Recommendation allocation within this report (inclusive of GST where applicable) |
Allocation to date + Recommendation within report (inclusive of GST where applicable) |
|
Community Support Grant Program |
$300,000 |
Ongoing |
$149,502.62 |
$4,000.00 |
$153,502.62 |
|
TOTAL |
$149,502.62 |
$4,000.00 |
$153,502.62 |
||
Current Status
The Community Support Grant Program remains open for applications throughout the year and the closing date for each assessment period is the last day of each month.
The Community Support Grant Program provides up to $5,000 per project per financial year in combined funding and in-kind Council services to applicants who are a legally constituted not-for profit organisations, or auspiced by one.
Assessment
Four applications were received and assessed by 12 April 2022 with one recommended for funding in this Council report.
The Community Support Grant applications were assessed by Council’s Unit Manager Community and Culture and the Community Grants Team, against the Community Support Grant Program guidelines.
Consultation
Information on Council’s Community Grants program is provided on Council’s website and promoted through Council’s social media platforms.
Regular emails with relevant information were provided to the community grants database.
Council staff conducted two grant writing workshops with 51 attendees and four grant information sessions with 94 attendees
Additionally, Council staff also undertook two drop-in support sessions with 10 attendees to assist applicants with their submissions where required.
Financial Considerations
At its meeting held 19 October 2020, Council resolved the following:
1108/20 That any motions put before Council for the remainder of this term of Council that have financial implications require the Chief Executive Officer to provide a report on how those additional costs will be met.
The following statement is provided in response to this resolution of Council.
Council’s 2021/2022 Council Operational Expenditure budget allocates $300,000 to the Community Support Grant Program.
Expenditure is approved until the end of the 2021-2022 financial year. Unspent funds will lapse on 30 June 2022.
No additional budget is required nor sought through this report. All actions within have been funded through existing and approved operational plan budgets.
Link to Community Strategic Plan
Theme 1: Belonging
|
Goal A: Our community spirit is our strength |
|
B-A1: Work within our communities to connect people, build capacity and create local solutions and initiatives. |
Risk Management
All successful applications will receive a letter of offer outlining Council’s requirements of funding, service delivery and accountability for both Council and the funded organisation.
Applications recommended for funding are conditional on all relevant event/activity approvals (including COVID-19 related) being provided prior to the release of funds, and successful applicants are required to return any unspent funds for projects not able to be delivered as planned through COVID-19 related impacts.
All successful applicants are required to submit a final project acquittal report no later than twelve weeks after the agreed completion date of the activity/project with copies of any photos, promotional materials and evidence of payment/purchase for each funded item.
Options
1 Approval of all recommended applications as submitted will provide a community benefit to residents of the Central Coast Local Government Area.
This is
the recommended option
2 Non approval of some or all applications, as recommended, may result in projects not being undertaken if the respective proponents are unable to secure alternate funding. Not recommended.
Critical Dates or Timeframes
Many of these grant applications are dependent upon support via Council’s grant program. Should decisions be delayed or not supported projects may not be undertaken.
|
1⇨ |
Community Support Grant Program - March 2022 - Recommended and Not Recommended |
Provided Under Separate Cover |
D15149959 |
|
Item No: 2.13 |
|
|
Title: Enterprise Licence Agreement- Geographic Information System Software – Environmental Systems Research Institute (ESRI) Inc and ESRI Australia Pty Ltd |
|
|
Department: Corporate Affairs |
|
|
24 May 2022 Ordinary Council Meeting |
|
Reference: CPA/1755 - D15162088
Author: Roslyn Young, Section Manager Information Services
Manager: Jamie Beal, Unit Manager Information and Technology
Executive: Natalia Cowley, Director Corporate Affairs and Chief Financial Officer
Recommendation
1 That Council resolve, for the purposes of Section 55(3)(i) of the Local Government Act 1993, that a satisfactory result will not be achieved by inviting tenders for the provision of the software and services for the Central Coast Council’s Geographic Information System for the following reasons:
i. The ESRI Enterprise software platform is a proven and reliable platform that is essential for the day-to-day operation of the Council;
ii. The ESRI enterprise software platform has been utilised by Central Coast Council since amalgamation and was also inherited from the former Gosford and Wyong Councils, for which each of the former Councils and this Council have invested significant resources and accumulated significant experience in the use by staff of the Council;
iii. ESRI Australia Pty Ltd are the sole provider of the ESRI Enterprise Software Platform; and
iv. The anticipated expenditure is competitive.
2 That Council resolve, pursuant to section 11(3) of the Local Government Act 1993, that Attachments 1 and 2 remain confidential in accordance with section 10A(2)(c) and 10A(2)(d)(iii) of the Local Government Act as it contains commercial information of a confidential nature that would, if disclosed prejudice the commercial position of the person who supplied it and because consideration of the matter in open Council would on balance be contrary to the public interest as it would affect Council’s ability to obtain value for money services for the Central Coast community.
|
To support the continued engagement of Environmental Systems Research Institute Inc and ESRI Australia Pty Ltd for the provision of the Central Coast Council’s Geographic Information System software, by seeking an exemption from tendering in accordance with Section 55 (3) (i) of the Local Government Act 1993, which requires councils to invite tenders before entering into contracts with an estimated value equal to or greater than $250,000.
Executive Summary
This report pertains to the Council’s existing and proposed new licence agreement for the use of the enterprise software that supports the Council’s Geographic Information System (“GIS”) currently provided by Environmental Systems Research Inc (“ESRI”) and ESRI Australia Pty Ltd (“ESRI-Au”).
The licence agreement is due to expire 30/06/2022 and we are seeking to enter into a new 3-year term agreement with the current provider. The current platform is essential for the day-to-day operations of Council and provides the enterprise software which enables the storage, management and provision of our geospatial data and associated solutions (i.e. mapping). ESRI is a recognised global leader in GIS software and considered industry best.
The current platform is fit for purpose and significant expenditure and resources have been invested into consolidating and building the enterprise GIS system for Central Coast Council. There is currently no intention of changing providers.
The system is solely provided by ESRI and ESRI-Au is the sole Australian distributor. There is no opportunity to seek a more competitive outcome by subjecting the contract to an open tender process. |
Background
Council’s Geographic Information System (“GIS”) is a compilation of hardware and software which forms Council’s enterprise solution for the provision of all geospatial/mapping services to council’s internal and external customers. It is an essential component of information technology that supports a broad range of Council’s functions and business processes.
The ESRI software platform forms the underlying engine for the GIS, inclusive of server, desktop, web and mobile software solutions, as well as forming the basis for other presentation GIS applications.
The GIS holds data related to Council assets and infrastructure, properties within the Central Coast local government area, and planning controls (State and local) that apply to land within the Central Coast local government area. It integrates with Council’s other corporate systems such as Pathway and Infor Public Suite (IPS) to form a complete view of Council’s information assets and critical regulatory and compliance datasets. It is also the repository for all geographic information held by Council which has a fixed coordinate position on the earth, inclusive of the ability to link directly to other organisations’ geospatial systems with like information.
The former Gosford and Wyong Councils each had licence agreements with ESRI and ESRI-Au for the supply of software and maintenance services which support the GIS.
In November 2016 the Council adopted by resolution (568/16) to consolidate these prior agreements into a new 3-year term Enterprise Licence Agreement (“ELA”) with ESRI and ESRI-Au. Known as a Single Country ELA, this agreement was further extended for another three year term in September 2019 via an approved contract variation.
Current Status
Council’s current Single Country ELA with ESRI and ESRI-Au is now due to expire 30 June 2022.
Council has received advice from ESRI that the Single Country ELA is no longer being supported and Local Government clients globally are being moved over to enterprise agreements offered via the Local Government Enterprise Agreement (“LGEA”) program.
The proposed LGEA contract is for a fixed 3-year term, commencing July 2022 with a total contract value consistent with previous agreements and anticipated expenditure aligning to expected CPI increase. In line with previous agreements, the LGEA grants unlimited licences for the software listed in the Agreement, providing access to additional software not previously available to Council.
Report
Section 55 of the Local Government Act 1993 (“LG Act”) requires that Council invite tenders before entering into the agreement, unless one of the exceptions provided by Section 55(3) of the LG Act apply. Sub-sections 55(3)(i) and 55(n) of the LG Act relevantly state:
(3) This section does not apply to the following contracts:
(i) a contract where, because of extenuating circumstances, remoteness of locality or the unavailability of competitive or reliable tenderers, a council decides by resolution (which states the reasons for the decision) that a satisfactory result would not be achieved by inviting tenders…
(n) a contract involving an estimated expenditure or receipt of an amount of
(i) less than $250,000 or another amount as may be prescribed by the regulations, or
(ii) less than $150,000 or another amount as may be prescribed by the regulations for a contract involving the provision of services where those services are, at the time of entering the contract, being provided by employees of the council,
The exception provided by Section 55(3)(i) of the LG Act may apply where the Council resolves that a satisfactory result would not be achieved by the inviting of tenders, for the following reasons:
· The GIS platform is essential for the day to day operation of the Council, providing GIS data for all land within the Central Coast local government area that is geographically referenced to a range of datasets including ecological, environmental, property ownership, asset management and planning instruments. The GIS platform is widely used by Council staff and the community and is also established as a critical component of Council’s emergency preparedness and response framework.
· ESRI is a recognised global leader in GIS software and the ESRI software platform is considered industry best and used particularly by many Local Councils, State and Federal Departments and Emergency Services. NSW Government entities Department of Customer Service and Department of Planning, Industry and Environment, each host the ESRI platform providing aligned data and process interoperability with Council and an aligned future digital transformation path.
· Since amalgamation Council has invested significant expenditure and resources into consolidating the former Gosford and Wyong Councils’ GIS platforms into a single CCC enterprise GIS platform based on the ESRI software. This has been foundational for supporting and building Council’s current and future state service delivery operational models.
· The existing consolidated ESRI GIS enterprise platform is a complex high availability environment with integrations and linkages into other corporate systems supporting council service delivery. The organisation has also purchased other software, hardware and data modelling products because of their compatibility with the ESRI software platform.
· Council has invested significant expenditure in the training of respective GIS professional and non-professional staff throughout the organisation in the use and application of the ESRI software platform. An alternate solution would require significant retraining and further expenditure.
· The proposed agreement provides a contract price that is competitive when compared to the existing Single Country ELA contract between ESRI and ESRI-Aus and Central Coast Council.
· Previous experience with the ESRI software platform, has for Central Coast Council as well as the former Gosford and Wyong Councils’, proven to be reliable and fit for purpose.
Consultation
The proposed ELA has been negotiated with ESRI-Aus and has been reviewed by Council’s Governance, Legal and Risk Unit.
Consultation has also been undertaken with Council’s Procurement and Project Management Unit.
A copy of the proposed agreement between Council, ESRI and ESRI-Au is provided as Attachment 1 to this report.
Financial Considerations
At its meeting held 19 October 2020, Council resolved the following:
1108/20 That any motions put before Council for the remainder of this term of Council that have financial implications require the Chief Executive Officer to provide a report on how those additional costs will be met.
The following statement is provided in response to this resolution of Council.
The
recommendation does not impact on Council’s financial position.
Link to Community Strategic Plan
Theme 4: Responsible
|
Goal G: Good governance and great partnerships |
|
B-A1: Work within our communities to connect people, build capacity and create local solutions and initiatives. |
Options
1 Authorise the exemption provided by Section 55 (3) (i) of the Local Government Act 1993 on the basis that a satisfactory result will not be achieved by inviting tenders. This is the recommended option.
2 Option 2 – Do nothing, Council will be required to tender for enterprise GIS software based on existing software costs. This will incur further costs in the short term as Council’s current licensing would need to be extended for the duration of the tender to maintain corporate service delivery (not recommended).
Critical Dates or Timeframes
Council’s existing Single Country Enterprise Licence Agreement with ESRI and ESRI-Au. expires 30 June 2022.
|
Confidential - Esri - Small Enterprise Agreement Local Government - E214i - Central Coast Council - |
D15162086 |
|
|
Confidential - Esri - Master Agreement Products and Services - |
D15162087 |