Central Coast
Local Planning Panel Meeting
Business Paper
25 November 2021
The Local Planning Panel Meeting
of Central Coast
will be held remotely - online,
Thursday 25 November 2021 at 2.00 pm,
for the transaction of the business listed below:
1 Procedural Items
1.1 Disclosures of Interest......................................................................................................................... 3
2 Confirmation of Minutes of Previous Meetings
2.1 Confirmation of Minutes of Previous Meeting........................................................................ 4
3 Planning Reports
3.1 DA/60468/2020 - Caravan Park (31 long term sites and 37 short term sites) - 255, 255A, 255B Avoca Drive & 19 Picketts Valley Road, Kincumber............................................... 20
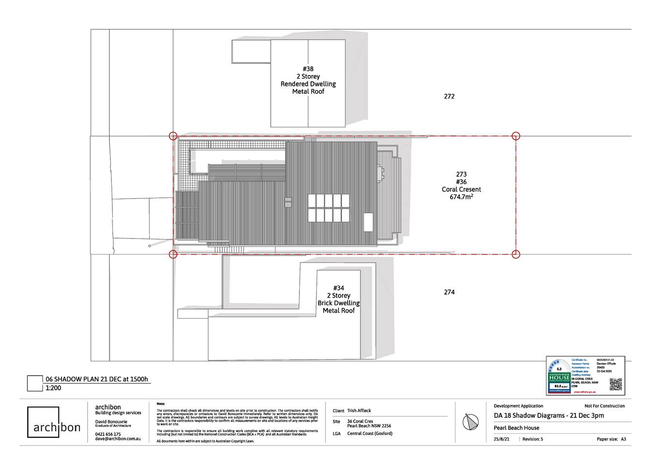
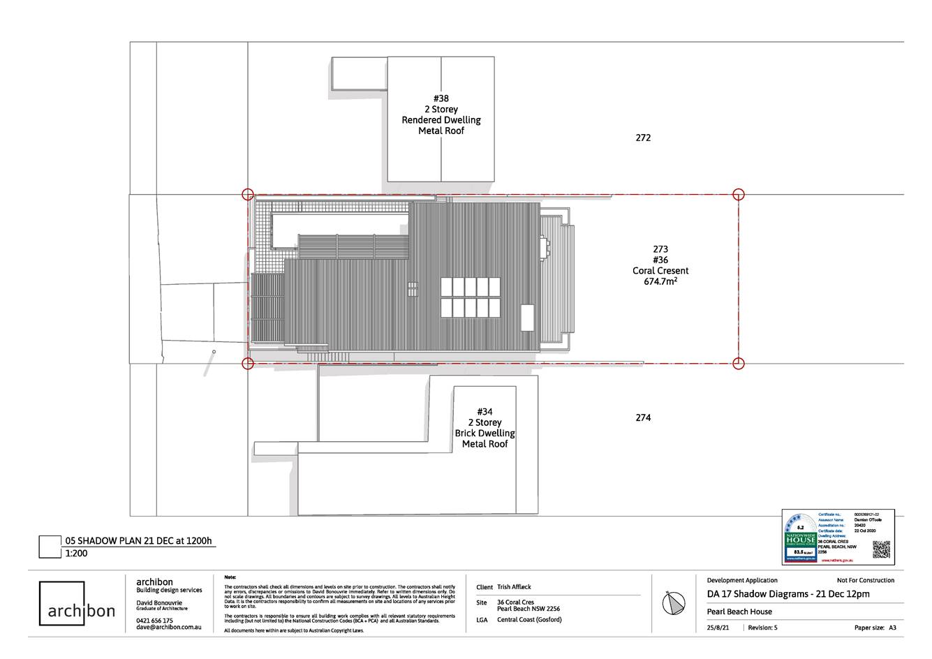
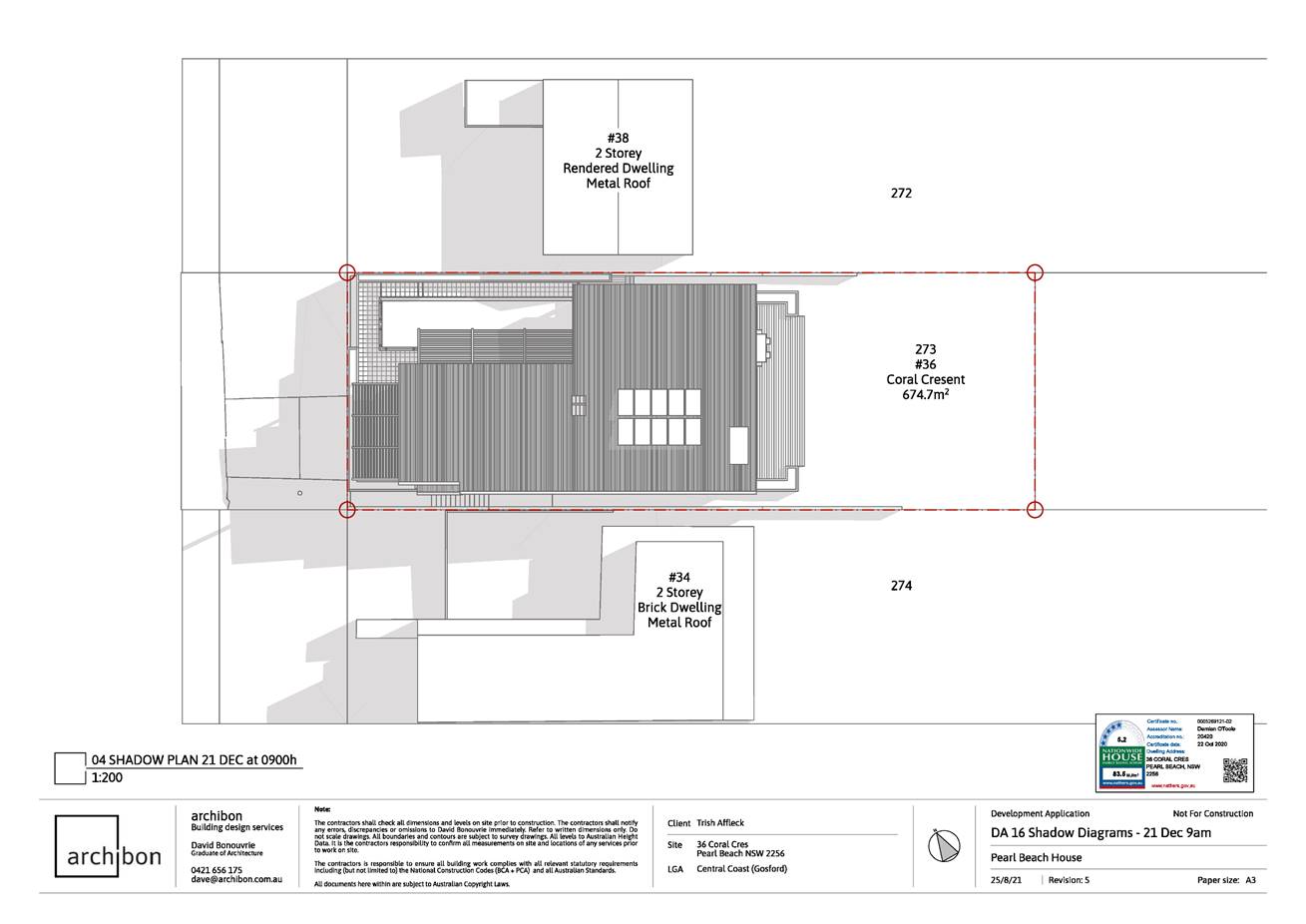
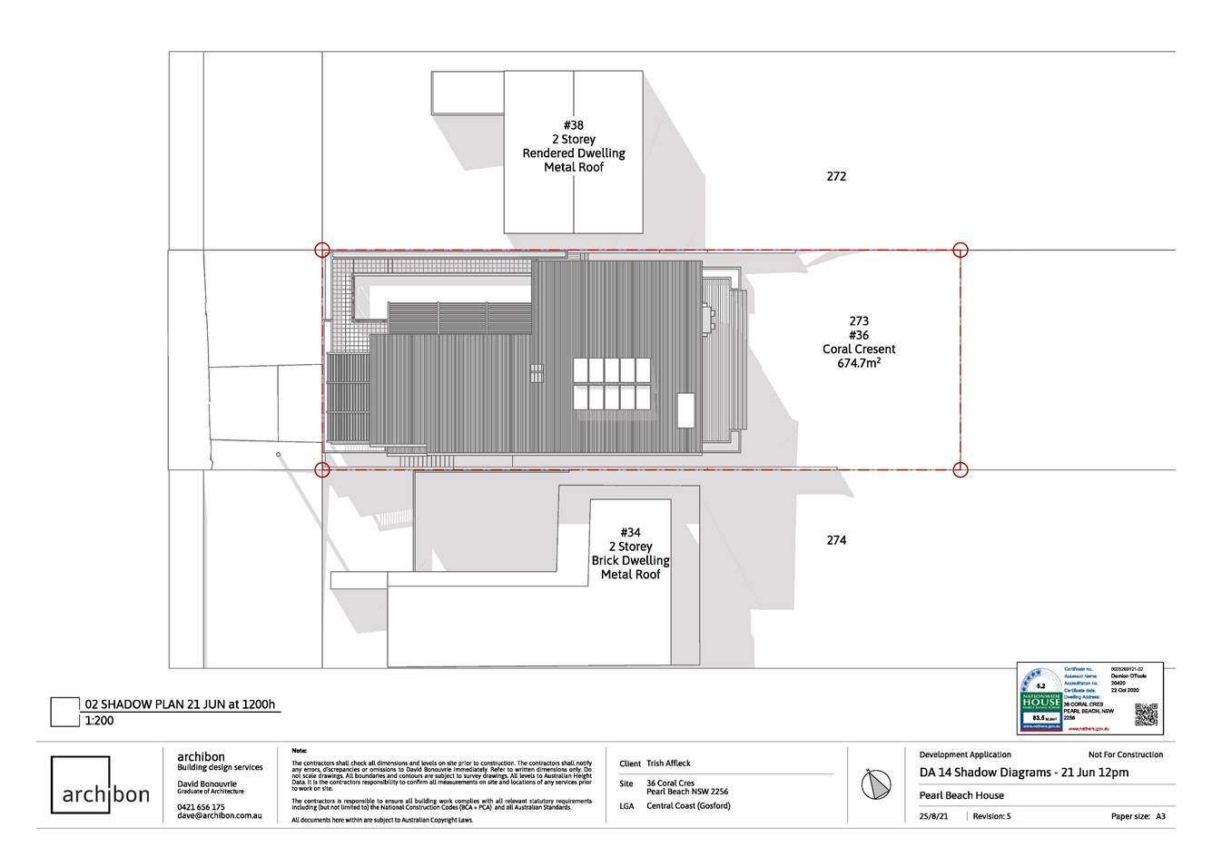
3.2 DA/60416/2020 - 36 Coral Crescent Pearl Beach - Dwelling House (New), Pool and Demolition of Existing Dwelling................................................................................................... 86
4 Planning Reports - Outside of Public Meeting
4.1 DA/60725/2021 - 8 Ghersi Avenue, Wamberal - 1 into 2 Lot Subdivision.......... 175
Kara Krason
Chairperson
|
Item No: 1.1 |
|
|
Title: Disclosures of Interest |
|
|
Department: Governance |
|
|
25 November 2021 Local Planning Panel Meeting |
|
Reference: F2020/02502 - D14205789
|
The NSW Local Planning Panel Code of Conduct states that all panel members must sign a declaration of interest in relation to each matter on the agenda before or at the beginning of each meeting.
|
That Panel Members now confirm that they have signed a declaration of interest in relation to each matter on the agenda for this meeting and will take any management measures identified.
|
Item No: 2.1 |
|
|
Title: Confirmation of Minutes of Previous Meeting |
|
|
Department: Corporate Affairs |
|
|
25 November 2021 Local Planning Panel Meeting |
|
Reference: F2020/02502 - D14938039
Author: Rachel Callachor, Meeting Support Officer
|
Summary
The
Minutes of the following Meetings of the Local Planning Panel, which have
been endorsed by the Chair of that meeting, are submitted for noting: · Local Planning Panel Meeting held on 28 October 2021 · Supplementary Local Planning Panel Meeting regarding DA57736/2019 held on 15 November 2021
|
That the minutes of the previous Local Planning Panel Meeting held on 28 October 2021 and the Supplementary Local Planning Panel Meeting regarding DA57736/2019 held on 15 November 2021 which were endorsed by the Chair of that meeting, are submitted for noting.
|
1⇩ |
MINUTES - Local Planning Panel - 28 October 2021 |
|
D14908222 |
|
2⇩ |
MINUTES - Supplementary Local Planning Panel Meeting regarding DA57736/2019 held on 15 November 2021 |
|
D14935080 |
|
2.1 |
Confirmation of Minutes of Previous Meeting |
|
Attachment 1 |
MINUTES - Local Planning Panel - 28 October 2021 |
|
Confirmation of Minutes of Previous Meeting |
|
|
Attachment 2 |
MINUTES - Supplementary Local Planning Panel Meeting regarding DA57736/2019 held on 15 November 202 |
|
Item No: 3.1 |
|
|
Title: DA/60468/2020 - Caravan Park (31 long term sites and 37 short term sites) - 255, 255A, 255B Avoca Drive & 19 Picketts Valley Road, Kincumber |
|
|
Department: Environment and Planning |
|
|
25 November 2021 Local Planning Panel Meeting |
|
Reference: 011.2020.00060468.001 - D14832322
Author: Robert Eyre, Principal Development Planner South
Manager: Ailsa Prendergast, Section Manager, Development Assessment South
Approver: Andrew Roach, Unit Manager, Development Assessment
|
Summary
An application has been received for a caravan park containing 31 long term sites and 37 short term sites on Lot A DP449600, Lots 2, 3 and 9 DP976799, 255, 255A, 255B Avoca Drive, 19 Picketts Valley Road, Kincumber. The application has been examined having regard to the matters for consideration detailed in section 4.15 of the Environmental Planning and Assessment Act and other statutory requirements with the issues requiring attention and consideration being addressed in the report.
The application is referred to the Local Planning Panel due to the number of public submissions received being in excess of 15 submissions. 161 submissions have been received. The application is recommended for refusal for the following reasons:
1 The proposed development is not consistent with the objectives of the E4 Environmental Living zone 2 The proposed development would result in additional stormwater run-off and potential impacts on riparian zones. 3 The proposed development would result in significant cut and fill, earthworks and removal of vegetation on the site which would impact the ecological values, visual and scenic quality of the area. 4 The site is not suitable for the proposed development due to its landscape, scenic and ecological qualities which should be preserved. 5 Insufficient information has been provided on road works within the site, ecology impacts, waste impacts, soil and water management, and tree retention. 6 The proposal is an overdevelopment of the site, inconsistent with the current and future desired character of the locality and approval is not in the public interest. 7 Pursuant to Draft Central Coast LEP (2018) the proposed development is prohibited within E4 Environmental Living zone. 8 The proposed development does not have adequate regard to achieving compliance with the Local Government (Manufactured Home Estates, Caravan Parks, Camping Grounds and Moveable Dwellings) Regulation 2005
Applicant ADW Johnson Owner Avoca Land Pty Ltd Application No DA/60468/2020 Description of Land Lot A DP449600, Lots 2, 3 and 9 DP976799, 255, 255A, 255B Avoca Drive, 19 Picketts Valley Road, Kincumber Proposed Development Caravan Park Site Area 24.12ha Zoning E4 Environmental Living Existing Use Dwelling houses, stables and ancillary buildings Employment Generation No Estimated Value $9,273,541.00 |
1 That the Local Planning Panel refuse the application DA 60268/2020 for a caravan park on Lot A DP449600, Lots 2, 3 and 9 DP976799, 255, 255A, 255B Avoca Drive, and 19 Picketts Valley Drive, Kincumber, subject to the reasons for refusal detailed in the schedule attached to the report and having regard to the matters for consideration detailed in Section 4.15 of the Environmental Planning and Assessment Act 1979.
2 That Council advise those who made written submissions of the Panel’s decision.
3 That Council advise relevant external authorities of the Panel’s decision.
Key Issues
· Permissibility and characterisation of use as a caravan park.
· Inconsistency with the objectives of the E4 Environmental Living zone.
· Inconsistency with the draft Central Coast Local Environmental Plan 2018.
· Environmental/ecological Impacts.
· Inadequate/insufficient information on ecological impacts, waste impacts, soil and water management, and tree retention.
· Integrated Development.
· Overdevelopment and inconsistency with current and future character of the locality.
· Social impacts and public submissions (and matters raised therein).
Precis:
|
Proposed Development |
Caravan Park
|
|
Permissibility and Zoning |
E4 Environmental Living under Gosford Local Environmental Plan 2014. Permissible with consent |
|
Relevant Legislation |
· Environmental Planning & Assessment Act 1979 – · Section 4.15 · Local Government Act 1993 – Section 68 and 89 · Fisheries Management Act 1994 · Heritage Act 1977 · Protection of the Environment Operations Act 1997 · Roads Act 1997 · Rural Fires Act 1997 · Water Management Act 2000 · State Environmental Planning Policy (Coastal Management) 2018 · Gosford Local Environmental Plan 2014 · Gosford Development Control Plan 2013 · State Environmental Planning Policy (Infrastructure) 2007 · State Environmental Planning Policy (State and Regional Development) 2011 · State Environmental Planning Policy No 21-Caravan Parks · State Environmental Planning Policy No 36- Manufactured Home Estates. · State Environmental Planning Policy No55- Remediation of Land · State Environmental Planning policy (Koala Habitat) 2020 · Draft Central Coast Local Environmental Plan 2018 (CCLEP) · Local Government (Manufactured Home Estates, Caravan Parks, Camping Grounds and Moveable Dwellings) Regulation 2005.
|
|
Current Use |
Dwelling houses, stables, agriculture and ancillary buildings.
|
|
Integrated Development |
· Natural Resources Access Regulator (NRAR) · NSW Primary Industries (NSW Fisheries) · NSW Rural Fire Service (NSW RFS)
|
|
Submissions |
One hundred and sixty-one (161)
|
The Site and Surrounds
The site is an irregular shape and consists of four (4) existing allotments, 255, 255A & 255B Avoca Drive Kincumber, and 19 Picketts Valley Road Picketts Valley, legally identified as:
· Lot A DP449600
· Lots 2, 3 and 9 DP976799
The site is located on the northern side of Avoca Drive between Picketts Valley Road and
Melville Street, Kincumber, having a 154m frontage to Avoca Drive, and an 82m
frontage to Picketts Valley Road.
The land is undulating with varying slopes to 20% and is dissected by two watercourses
which traverse the property in a generally east-west direction. There is also existing
dam/water storage on site. The levels vary from about RL 40m at the southern side boundary
with
Avoca Drive, falling away to the north to about RL 6m at the first watercourse.
The elevation rises again to about RL 40m near the centre of the site then
falls away (to about RL 6m) at the second watercourse, rising again to (about
RL 30m) at the northern side/ rear of the site.
Past use of the land has been generally agricultural with dwelling houses. The site contains 3
existing dwelling houses, sheds, stables, and an access driveway from Avoca Drive. One dwelling house and the dam are located at the southern end of the site, with the remaining dwelling houses, sheds, and stables located approximately in the centre of the site between the two watercourses.
The rear of the site and frontage to Picketts Valley Road is heavily vegetated, with the
remainder of the site having scattered stands of vegetation.
The site is identified as "bushfire prone land". A Bushfire Assessment Report prepared by
Peterson Bushfire (Reference 17033 dated 22 April 2020 was submitted with the
application recommending the proposal comply with varying BAL levels with the highest
being BAL-12.5 for buildings and long term sites.
The site is located about 2.5km east of the Kincumber shopping centre and about 3.8km west
of Avoca Beach.
Adjoining development to the north, east and west comprises small rural holdings, associated
dwelling houses and agricultural uses. Land to the south and south-west (opposite side of
Avoca Drive) includes residential areas of Kincumber incorporating senior living developments.

Figure 1- Locality Plan
The Proposed Development
It is proposed to construct a caravan park consisting of 68 caravan sites including 31 long term sites and 37 short term sites.
The proposal will involve:
· Earthworks and construction of internal roads, landscaping and driveway access off Avoca Drive.
· Demolition of 2 existing dwelling houses, stables and ancillary structures.
· Construction of stormwater infrastructure including 2 basins.
· Dewatering and reshaping dam on southern watercourse.
· Realignment of existing southern watercourse crossing and upgrade to culverts.
· Construction of a recreational area for mini golf, tennis and horse riding, community centre, amenities building and managers office.
· Provision of water, sewer, and electrical and other services.
· Installation of a sewer pump station and electrical kiosk.
· Removal of 210 or more trees.
· 70,000m3 of cut and 5,5003 of imported fill.
· Setback to western boundary of 30m and southern boundary with Avoca Drive of 400m.
· Retaining walls up to 4.4m.

Figure 2- Site Plan
The application states that the development is proposed to be used as a high- quality tourist park where short term stays will be limited to 180 days in any 12month period. A full- time manager will reside on site.
The application was amended by the deletion of the emergency access road across the northern creek to Picketts Valley Road. An amended bushfire report was submitted by Peterson Bushfire dated 22 April 2020. This report states that a BAL 12.5 is required for buildings and that the secondary access to Picketts Valley Road is highly unlikely to be used during bushfire as it passes through the bushfire hazard area. Bushfire access is to be via the access to Avoca Drive away from the bushfire source.
The conditions of approval by the RFS require an 8m wide perimeter road and 5.5m wide internal roads.
As can be seen by figures 2 and 3 (proposed and previous applications) the internal road layout has not essentially changed. The current application is a reduction in the number of sites while maintaining the internal layout.
Background
DA16548/1992
A 6 lot community title subdivision was approved on 9 November 1993; this consent has lapsed.
Two Pre-DA meetings 2018 & 2019
On 10 May 2018 a pre-DA meeting was held with Council for a senior living development on the site. The meeting identified that a retirement village/senior living development was a prohibited use under the Gosford Local Environmental Plan 2014 and State Environmental Planning Policy (Senior Living).
A further pre-DA meeting was held on 5 September 2019 for a caravan park on the site
consisting of about 210 sites in the form of manufactured homes with community facilities
and associated infrastructure. The applicant was advised at that time that:
‘The proposed caravan park is a prohibited use under the draft Central Coast Local
Environmental Plan 2018. It is likely that Council will not support the proposal due to the draft plan being imminent, the density proposed, impact on scenic values of the site, and inconsistency with the objectives of the E4 zone. A caravan park should not be a quasi-retirement village, particularly due to the site constraints of this site. The proposal will also have to comply with the definition of ’caravan park’.
Development Application Ref DA/57698/2019 – Residential Land Lease Community
Development application DA/57698/2019 was considered by the Local Planning Panel at its meeting of 6 August 2020. This application was for a Staged ‘Residential Land Lease Community’ (Caravan Park) comprising 202 long term sites, 2 short term ‘caravan’ sites, community facilities, roads and infrastructure, landscaping, and demolition of existing structures. DA/57698/2019 was refused development consent by the Local Planning Panel.
The reasons for refusal at that meeting are summarised below:
· The proposed development is not consistent with the objectives of the E4 Environmental Living zone
· The proposed development would result in additional stormwater run-off and increased downstream flooding.
· The proposed development would result in significant cut and fill, earthworks and removal of vegetation on the site which would impact the ecological values, visual and scenic quality of the area.
· The site is not suitable for the proposed development due to its landscape, scenic and ecological qualities which should be preserved.
· Insufficient information has been provided on potential contamination, road works within the site, ecology impacts, waste impacts, soil and water management, emergency and construction access, bush fire hazard, and tree retention.
· The proposal is an overdevelopment of the site, inconsistent with the current and future desired character of the locality and approval is not in the public interest.
· Pursuant to Draft Central Coast LEP (2018) the proposed development is prohibited within E4 Environmental Living zone.
Section 8.2 Review of Determination
A Section 8.2 application to review the LPP refusal was submitted in respect of Development Application Ref. DA/57698/2019.
The s8.2 application included amended engineering and landscape plans. The amended proposal maintains the overall design approach and general configuration of the originally considered development with the following amendments made as part of the review of determination:
· A reduction in sites from 202 sites to 165 sites
· Minor relocation of internal Road 1 in south west corner
· Minor alterations to internal Road 6
· Reduction of tree removal from 491 to 327 trees
· Retention of existing farmhouse and incorporation into future community facilities
· Removal of Welcome Centre at the southern end of the site near the entrance
· Demolition of existing structures on the site
· Retention of existing farmhouse
· De-watering and filling in of the existing farm dam
· De-watering and reshaping of dam on southern watercourse to revert to a watercourse
· Bulk earthworks. Preliminary plans submitted indicate cut up to 6.2m and fill up to 5.5m. The applicant has estimated the total cut volume of 92,970m3, fill of 98,692m3, and a shortfall of 5,722m3 to be imported into the site
· Construction of three water quality basins
· 2 short term ‘caravan’ sites (15m x 6m)
· Construction of community facilities including a club house (including caretakers’ residence), indoor swimming pool, tennis court, bowling green, putting green, village green, community garden and yoga deck
· Construction of intersection of access driveway with Avoca drive and internal driveways
· Realignment of southern existing watercourse crossing and upgrade of road and culvert
· Services, including the provision of sewer
· Landscaping
The 165 long-term dwelling sites are proposed to contain future manufactured homes. The application showed an indicative mix of 1 and 2 storey, 3-bedroom homes.
The applicant also advised the application for the operation of the caravan park and moveable dwellings will be lodged separately under Section 68 of the Local Government Act 1993.
The s8.2 application was considered by the Local Planning Panel at its meeting on 22 July 2021 and refused the application for the following reasons:
a) The proposed development is not properly characterised as a ‘caravan park’ as the two short-term dwelling sites must be proposed for a proper use to satisfy the requirements of the definition for a caravan park. The two short-term dwelling sites have been nominated for parking for visitors of residents.
b) The proposed development is not consistent with the objectives of the E4 Environmental Living zone under the provisions of the Gosford Local Environmental Plan 2014.
c) The proposed development would result in significant cut and fill, earthworks and removal of vegetation on the site which would impact the ecological values, visual and scenic quality of the area.
d) The site is not suitable for the proposed development due to its landscape, scenic and ecological qualities which should be preserved.
e) Insufficient information has been provided in relation to stormwater run-off and downstream flooding impacts, ecology, waste, soil and water management, emergency and construction access and tree retention.
f) The proposal is an overdevelopment of the site, inconsistent with the current and future desired character of the locality and approval is not in the public interest.
g) The proposed development does not have adequate regard to achieving compliance with the Local Government (Manufactured Home Estates, Caravan Parks, Camping Grounds and Moveable Dwellings) Regulation 2005

Figure 3- Original application layout (LHS) and Section 8.2 layout (RHS)
ASSESSMENT:
Having regard for the matters for consideration detailed in Section 4.15 of the Environmental Planning and Assessment Act 1979 and other statutory requirements, Council’s policies and Section 10.7 Certificate details, the assessment has identified the following key issues, which are elaborated upon for Council’s information.
Draft Environmental Planning Instruments.
The Draft Central Coast Local Environmental Plan (Draft CCLEP) is a matter for consideration under Section 4.15 of the Environmental Planning & Assessment Act 1979. The gazettal of the Draft CCLEP is considered to be certain and imminent, initially expected to be competed by December 2021, the Department of Planning Industry & Environment have advised that the gazettal is likely to be delayed slightly (to be completed in the first few months of 2022).
Under the provisions of the Draft CCLEP, the land is proposed to retain the E4 Environmental Living zoning, however ‘caravan parks’ are not permissible in the E4 zone under the provisions of the Draft CCLEP.
The Planning Proposal exhibited in support of the draft LEP included a section titled “CCLEP Part 2 – Permitted or Prohibited Development”, which compared the provisions of Wyong LEP 2013 and Gosford LEP 2014 and contained the following relevant information:
In some circumstances, Principle 5 – Permissibility Retention has not been able to be applied. This is because, in some instances, the application of zones between the two former LGAs has been different. For example, the E4 Environmental Living zone in the former Wyong LGA was generally applied for the purposes of larger lot residential development in environmentally sensitive locations. While in the former Gosford LGA, the E4 Environmental Living zone was applied to enable tourist development in environmentally sensitive locations. Therefore, some land uses have been found to not always align, and may be inappropriate for application over the entire Central Coast LGA
The Draft CCLEP includes a savings provisions that provide for an application lodged before the making of the draft Plan, that the application must be determined as if the draft Plan had not been made.
The Draft CCLEP is a matter for consideration under s4.15(1) of the Environmental Planning and Assessment Act 1979. How much weight should be given to a draft LEP depends on whether the draft Plan is imminent, and the public interest in approving a development which is proposed to be prohibited. In this regard the following points should be considered:
· The weight to be given to each head of consideration in s4.15(1) of the EPA Act is a matter for the consent authority.
· The case law is to the effect that the weight to be given to a draft instrument will be greater, the more ‘certain and imminent’ it’s making (Terrace Tower Holdings v Sutherland Shire Council [2003] NSWCA 289 (Terrace Towers)).
· A draft instrument is generally considered to be ‘imminent and certain’ where it has been approved by the planning authority and sent to the Minister to be made.
· By contrast, a draft instrument which has not been the subject of public consultation will generally be given less weight than one that has been the subject of public consultation.
The Draft CCLEP has been publicly exhibited and adopted by Council on 14 December 2020, however, has not yet been sent to the Minister to be made. The Draft CCLEP is considered both reasonably imminent and certain and should be afforded significant weight. Advice from the Department of Planning Industry & Environment is that the gazettal of the Draft CCLEP whilst initially anticipated by December 2021, is now likely to be in the first few months of 2022.
The following site-specific circumstances are considered in terms of the public interest being served in approving the development:
· The objectives of the E4 zone under the Draft CCLEP are:
o To provide for low-impact residential development in areas with special ecological, scientific or aesthetic values.
o To ensure that residential development does not have an adverse effect on those values.
o to allow additional land uses that will not have an adverse impact on those values.
· As discussed throughout this report the proposed development is not consistent with these objectives as the proposal cannot be considered to be ‘low impact’ and results in adverse impacts on the ecological and aesthetic values of the site.
· There is no historic or future expectation for this nature of development on the site. The site is located within the Kincumber Character Area 13: Scenic Buffer under the GDCP 2013. The desired character for this area includes “very-low density residential developments” and requires the retention of natural slopes, prevention of further fragmentation of tree canopy, low impact construction methods and avoidance of retaining walls. The proposed development is in direct conflict with desired character future for the area.
In Terrace Tower holdings Pty Limited v Sutherland Shire Council [2003] NSWCA 289, the Court
held that:
‘…The purpose of a draft instrument is entitled to be given significant weight in deciding whether to reject an application brought under a pre-existing planning instrument that would undermine the draft instrument’s purpose in a substantial way.’
The draft CCLEP will prohibit caravan parks on E4 zoned land. The applicant was aware of this during the exhibition of the draft plan and prior to the lodgement of the previous development application, Section 8.2 Review and current application. No public submissions were received objecting to the proposed E4 zoning of the land and or that caravan parks should be retained as a permissible use with consent in the zone during the exhibition of the Draft CCLEP.
It is not in the public interest to approve a development which is inconsistent with both the current and draft zone objectives. This would prejudice the making of the draft Plan and future planning objectives for the area. It is considered the draft plan must be given significant weight and remains a recommended reason for refusal insofar as it is inconsistent with the zone objectives is therefore does not result in the public interest being served.
As discussed above, the land is proposed to retain the E4 Environmental Living zoning, however ‘caravan parks’ are not permissible in the E4 zone under the provisions of the Draft CCLEP.
The objectives of the E4 zone under the Draft CCLEP are similar to the current objectives, being:
o To provide for low-impact residential development in areas with special ecological, scientific or aesthetic values.
o To ensure that residential development does not have an adverse effect on those values.
o to allow additional land uses that will not have an adverse impact on those values.
As discussed throughout this report the proposed development is not consistent with these objectives as the proposal cannot be considered to be ‘low impact’ and results in adverse impacts on the ecological and aesthetic values of the site. Even if caravan parks remained a permissible use, the proposal remains inconsistent with the draft zone objectives and could not be supported.
State Environmental Planning Policy (Infrastructure) 2007.
The application was referred to Transport for NSW (TfNSW formerly RMS) under clauses 101 and 104 as the site has access to and frontage to a regional road and is classified as traffic generating development. TfNSW have advised the site is subject to road widening and conditions of consent if approved. (Refer attachment 5)
State Environmental Planning Policy No 21-Caravan Parks
The proposal has been assessed having regard for the provisions of State Environmental Planning Policy 21 - Caravan Parks which state:
(1) The aim of this Policy is to encourage—
(a) the orderly and economic use and development of land used or intended to be used as a caravan park catering exclusively or predominantly for short-term residents (such as tourists) or for long-term residents, or catering for both, and
(b) the proper management and development of land so used, for the purpose of promoting the social and economic welfare of the community, and
(c) the provision of community facilities for land so used, and
(d) the protection of the environment of, and in the vicinity of, land so used.
(2) The strategies by which that aim is to be achieved are—
(a) Repealed
(b) by requiring that development consent be obtained from the local Council for development for the purposes of caravan parks, and
(c) by providing that development consent may be granted that will authorise the use of sites for short-term stays (whether or not by tourists) or for long-term residential purposes, or for both, and
(d) by requiring that development consent be obtained from the local Council for the subdivision of land for lease purposes under section 289K of the Local Government Act 1919.
The proposed development is not considered to result in the orderly and economic use of the land as the development is of a nature and scale that is not appropriate for the character of the area and will result in unacceptable environmental impacts.
Clause 8 requires consideration of the number of sites suitable for long and short-term sites and requires any development consent to include a condition specifying the maximum number of sites (if any) within that land that may be used for long-term residence.
The definition of long-term and short-term sites, from the Local Government (Manufactured Home Estates, Caravan Parks, Camping Grounds and Moveable Dwellings) Regulation 2005 are:
long-term site means a dwelling site that is specified in the approval for a caravan park as being a long-term site.
short-term site means a dwelling site on which a moveable dwelling that is ordinarily used for holiday purposes may be installed and that is specified in the approval for a caravan park as being a short-term site.
Development consent is being sought for 31 long -term sites and 37 short-term sites. The 31 long-term dwelling sites are not considered suitable for long-term residences as discussed elsewhere in this report.
Clause 10 of this SEPP includes the matters to be considered by the consent authority including:
(a) whether, because of its location or character, the land concerned is particularly suitable for use as a caravan park for tourists or for long-term residence,
(b) whether there is adequate provision for tourist accommodation in the locality of that land, and whether existing or potential tourist accommodation will be displaced by the use of sites for long-term residence,
(c) whether there is adequate low-cost housing, or land available for low-cost housing, in that locality,
(d) whether necessary community facilities and services are available within the caravan park to which the development application relates or in the locality (or both), and whether those facilities and services are reasonably accessible to the occupants of the caravan park,
(e) any relevant guidelines issued by the Director, and
(f) the provisions of the Local Government (Caravan Parks and Camping Grounds) Transitional Regulation 1993.
The topography of the site is steep with two watercourses traversing the site and covered in a large number of trees. The site is not considered suitable for the type of development that is proposed as evident by the significant site regrading required, extent of cut and fill required and resultant impacts on trees, ecology, soil and water and visual qualities.
The proposal will neither provide, nor displace any tourist or low-cost accommodation. The proposal is described in the Statement of Environmental Effects as a high- quality tourist park providing a different style of tourist accommodation where short term stay is permitted for up to half the year (180 days) while also stating that the caravan park will contribute to the loss of affordable housing. These appear to be conflicting statements.
The proposed development includes on-site facilities and is located approximately 3km from shopping and services at Kincumber.
An assessment against the Local Government (Manufactured Home Estates, Caravan Parks, Camping Grounds and Movable Dwellings) Regulation 2005 is included further below.
It is considered that the site is not suitable for the long-term and shot-term sites proposed. The proposal will have unacceptable environmental impacts and is not of a scale or nature that is consistent with the existing or desired future character of the surrounding locality. The application is considered to be inconsistent with the stated aims and objectives of State Environmental Planning Policy 21 - Caravan Parks.
State Environmental Planning Policy No 55-Remediation of Land
Clause 7 of SEPP 55 requires the consent authority to consider whether the land is contaminated when determining a development application. The proposed development involves significant disturbance through site regrading and the provision of infrastructure on the site.
The applicant has provided the following information in relation to contamination:
· Preliminary Stage 1 Contamination Assessment
· Detailed Stage 2 Contamination Assessment
· Contamination Assessment Report
· Stage 3 Remediation Action Plan
· Construction Contamination Management Plan
· Dam Dewatering Management Plan
The submission of the above information is considered to satisfy the provisions of clause 7(1)(c) as it is considered that the land will be suitable for the purposes of a caravan park upon remediation of the land prior to its use.
Gosford Local Environmental Plan 2014 (GLEP 2014) - Zoning and Permissibility
The subject site is zoned E4 Environmental Living under Gosford Local Environmental Plan 2014. A caravan park is permissible in the zone with development consent.

Figure 4 – Zoning Map extract
Caravan park means land (including a camping ground) on which caravans (or caravans and other moveable dwellings) are, or are to be, installed or placed.
A caravan park is a permissible use in the E4 zone. The proposed development involves the provision of 31 long-term and 37 short-term dwelling sites and an associated community building and facilities.
The definition of ‘caravan park’ requires that caravans are to be installed or placed on the land; ‘other moveable dwellings’ may be placed or installed on the land in conjunction with caravans but are not required in order for the development to meet the definition of a ‘caravan park’.
The definition of “moveable dwellings” includes manufactured homes under the GELP2014:
“moveable dwelling means:
(a) any tent, or any caravan or other van or other portable device (whether on wheels or not), used for human habitation, or
(b) a manufactured home, or …”
The parentheses “(or caravans and other moveable dwelling)” contained in the definition of “caravan park” states that manufactured homes in conjunction with caravan sites qualifies, and forms part of the definition for, a caravan park.
The definition of ‘caravan park’ does not specify a minimum number or proportion of caravan sites beyond requiring that there must be ‘caravans’ (i.e more than one). The application proposes 37 short-term sites for caravans.
Advice received by Council for a caravan park at 1 Bowtells Drive, Avoca Beach (DA 51538/2017) recently confirmed that there is no minimum number or proportion of caravan sites and that there is no authority from the Land and Environment Court which requires that a certain proportion or percentage of sites within a caravan park (as that term is defined by the standard template) are required to contain caravans.
However, the inclusion of 37 short-term dwelling sites for caravans, in conjunction with 31 long-term dwelling sites must be proposed for a proper purpose to satisfy the requirements of the definition for a caravan park, having particular regard for the decision made in TMT Devco Pty Limited v Cessnock City Council [2016] NSWLEC 1161 (‘TMT Devco’).
In TMT Devco Pty Limited v Cessnock City Council [2016] NSWLEC 1161 (‘TMT Devco’), the Court determined that development for manufactured homes with associated “caravan parking and RV storage” did not qualify as a “caravan park” as it was considered ancillary to the use of the site as a manufactured home estate.
In addition to this, the sites are not provided with servicing as required by the Local Government (Manufactured Home Estates, Caravan Parks, Camping Grounds and Moveable Dwellings) Regulation 2005, such as appropriately located shower, toilet and laundry facilities.
Caravan Park Use and Approval to Operate a Caravan Park
Despite the discussion regarding permissibility and definition of a caravan park above, it is important to note that this application is for the use of the site for a caravan park, as well as the required infrastructure works and construction of the community building and facilities. A separate approval from Council under s.68 of the Local Government Act 1993 (LG Act) is required to operate a caravan park and is subject to the provisions of Subdivisions 1-8 of Division 3 of the Local Government (Manufactured Homes Estates, Caravan Parks, Camping Grounds and Moveable Dwellings) Regulation 2005.
An applicant can make a development application, in which they apply for both development consent under the EP&A Act and approval under the LG Act to operate a caravan park, or they can make two separate applications. This application relates to the use and infrastructure works and building work only and does not included the Section 68 application for the operation of the caravan park.
The Regulation makes provision for a number of criteria that a caravan park must comply with, including the minimum size of sites, distance from amenities and number of amenities.
These include a minimum 65m2 for short term sites and 80m2 for long term sites. The proposal states that short term sites are a minimum 230m2 and long- term sites a minimum 137.5m2.
The distance from a short- term site to the amenities block is not to exceed 100m, and from a long -term site is not to exceed 75m.
Short- term sites 36-47 exceed the maximum distance, and a number of long-term sites also exceed the maximum 75m. The applicant states that the long-term sites will be for self- contained movable dwellings, however this is not part of the application and the proposal relies on either future development or approval and conditions of consent to ensure compliance with the Regulation.
Gosford Local Environmental Plan 2014 (GLEP 2014) - Objectives of the zone
The objectives of the E4 Environmental Living zone are:
· To provide for low-impact residential development in areas with special ecological, scientific or aesthetic values.
· To ensure that residential development does not have an adverse effect on those values.
· To promote ecologically, socially and economically sustainable development and the need for, and value of, biodiversity in Gosford.
· To provide land for low-impact tourist-related development that is of a scale that is compatible with the special ecological, scientific or aesthetic values of the area.
· To ensure that development is compatible with the desired future character of the zone.
The proposed development does not comply with the objectives of the zone for the
following reasons:
· The proposal is not a low-impact residential or tourist related development and is of an urban nature.
· The proposal is not low impact given it proposes:
o significant cut and fill with up to 70,000m3 of cut and 5,500m3 of imported fill;
o significant land disturbance of 80,200m2, which is about 33% of the site; and
o significant tree removal, with 210 trees proposed to be removed and a further 88 trees in close proximity or ‘threatened’ by proposed works.
· The proposal impacts the ecological and biodiversity values of the site and locality.
· The proposal is not compatible with the desired future character of the zone and area due to the urban nature of the development and impacts on the environment.
Gosford Local Environmental Plan 2014 (GLEP 2014) - Clause 4.3 Height of Buildings
The maximum height of buildings is 8.5m and the proposed height is 7.6m.
Gosford Local Environmental Plan 2014 (GLEP 2014) - Clause 5.10 Heritage Conservation.
The existing house which is identified as a proposed heritage item is proposed to be retained.
An aboriginal heritage due diligence assessment submitted with the application identified a potential archaeological deposit adjacent to the southern bank of the northern dam. This is located within the riparian setbacks where no work is proposed. Further investigation may be required or procedures put in place if approval were to be granted.

Figure 5-Location of Potential Aboriginal Sites
Gosford Local Environmental Plan 2014 (GLEP 2014) - Clause 7.1 - Acid Sulfate Soils
The site contains Class 5 acid sulfate soils and the site is not located within 500m of class 1-4
land. In this instance, the proposed works are not considered to impact on Acid Sulfate Soils.
Gosford Local Environmental Plan 2014 (GLEP 2014) - Clause 7.2 - Flood Planning
The land has been classified as being under a “flood planning level” and subject to the
imposition of a minimum floor level.
Two watercourses flow through the site and into Avoca Lagoon, being Saltwater Creek and an unnamed watercourse. The applicant has submitted a Flood Impact Assessment.
Council’s Flooding Engineer advises:
· The information provided indicates that there will be a net increase in flood storage of approximately 7000m3 within the Base Case 1% AEP event.
· The Flood Impact Assessment indicates that there will be no significant inundation to any individual lots during the 1% AEP event.
· The Flood Impact Assessment indicates that there will be no increase in flood levels upstream or downstream of the site during the 1% AEP event
· The Flood Impact Assessment indicates that there will be no overtopping of the proposed creek crossing during the 1% AEP event. However there will be some flow overtopping the crossing during the PMF event
· There is no net flood impact as well and no increase in flood storage as a result of the development. This forms the basis of the consultant’s opinion that multiple similar developments would not be expected to increase flood levels.
Conclusions:
1 The information and opinions provided by the consultant are deemed to be reliable and accurate.
2 The detailed drainage design is required to adhere to recommendation about lowering the area near to the proposed culverts in the minor tributary (Page 3). If this cannot be achieved, remodelling will be required.
3 Warning signs are recommended on the proposed creek crossing to manage the risk to motorists during extreme storm events.
Gosford Local Environmental Plan 2014 (GLEP 2014) – Clause 7.3 Floodplain risk management
The objectives of this clause are:
· In relation to development with particular evacuation or emergency response issues, to enable evacuation of land subject to flooding in events exceeding the flood planning level,
· To protect the operational capacity of emergency response facilities and critical infrastructure during extreme flood events.
Clause 7.3(3) states that development consent must not be granted for caravan parks unless the consent authority is satisfied that the development will not, in flood events exceeding the flood planning level, affect the safe occupation of, and evacuation from, the land.
Safe evacuation and occupation may not be possible during a PMF event and such risk may be avoided by a different development of the site.
Gosford Development Control Plan 2013 (GDCP 2013)
The site is identified as being located within Unit 13-Scenic Buffer of the Kincumber Precinct. The desired character for this area, as set out in the DCP is (with emphasis added):
‘These should remain rural-residential buffers where the scenically-distinctive semirural and natural qualities of prominent backdrops to Gosford City’s major roads and tourist routes are preserved by appropriate very-low density residential developments associated with low-impact rural activities, and by small-scale businesses or community and educational facilities that have a modest impact.
Retain natural slopes and prevent further fragmentation of the tree canopy in order to maintain habitat values and informal scenic characters of hillside or valley properties, plus meandering roads with unformed verges. Along creeks, ridges, slopes or road frontages, conserve all mature bushland remnants that provide scenically-prominent backdrops visible from any road or nearby property. Limit intrusion of structures upon their landscape setting by concentrating new buildings and pavements in existing clearings. Use low-impact construction such as suspended floors and decks rather than extensive cut-and-fill, particularly on elevated slopes or near bushland.
In areas that are defined as bushfire prone, hazard must not be increased by inappropriate new plantings or structures. Minimise the extent of cleared asset protection zones by fire-resistant siting, design and construction for all new structures plus effective management of gardens. The ideal compromise between desired scenic quality and hazard-reduction would limit clearing to the understorey plus thinning of the canopy to establish breaks between existing trees.
Maintain the informal character of existing semi-rural hillsides by avoiding tall retaining walls, extensive terraces or broad driveways that would be visible from any road or nearby property, and provide boundary fences that are see-through such as traditional post-and-rail designs. Surround all buildings with extensive garden setbacks, planted with new trees and shrubs that are predominantly indigenous to complement the established canopy. Noxious or environmental weeds must not be planted, and existing infestations should be controlled.
The proposed development remains inconsistent with the desired character for this area due to the extent of clearing, earthworks, and urban nature of development. The proposed development does not maintain a rural-residential buffer and is essentially an urban residential development situated within a semi-rural/urban buffer location.
Chapter 2.2- Scenic Quality
The site is located within Kincumber land unit of the East Brisbane Water Geographic Unit. The development objectives are:
1 Maintain broad patterns of land use within area to ensure protection of landscape diversity and in particular Environmental/Conservation and Scenic Protection zoned areas.
2 Retain current subdivision standards in Environmental/Conservation and Scenic Protection zoned areas to ensure continuing dominance of landscape features over built environment.
3 Opportunities for increases in densities and scale are available in urban areas, not subject to visibility constraints or other physical constraints. Visually constrained land includes land viewed from main roads, waterfront areas and land on higher slopes.
4 Uses of a retail and commercial nature and associated signage permitted in scenic protection zoned areas to be, where achievable, of a style and scale which reflects the rural nature of the area in which it is located.
5 Restrict zoning density of development to current levels on higher visible slopes in urban areas, particularly in steep land zoned areas.
6 Continue to attempt to secure lands identified for inclusion in the Coastal Open Space System as part of the visual landscape.
7 Proposals for residential and retail/commercial rezonings be preferred where the result will be the consolidation of existing residential and retail/commercial areas rather than the extension of these areas as ribbon development or as incremental extensions into adjoining areas.
8 Recognise importance of privately owned Environmental/Conservation zoned land in providing a complimentary land system to and a buffer area for COSS lands.
The proposed development is by nature and character an urban residential development, with about one-third of the site being disturbed by cut and fill and with 68 tightly packed dwelling/caravan sites proposed. This pattern of land use is commensurate with a more typical urban residential development and similar to the residential and seniors housing development located to the south, which is on residential zoned land. This pattern of land use is not appropriate on environmental conservation land and does not ensure protection of landscape diversity or ensure the continuing dominance of landscape features over built environment.
The built forms and works will be visible from adjoining properties and from public spaces (including Avoca Drive) and will impact the scenic quality of this area due to the extent of clearing, earthworks, and the nature of development.
Chapter 3.10-Environmental Controls for Development in Zone E4.
The objectives of this clause are:
· to provide further detail to guide assessment relating to tourist-related development to that provided in Council’s planning instrument.
· to encourage tourist-related development which is sympathetic with the ecological characteristics of the land on which it is located and in the catchment of the land.
· to encourage tourist-related development where the layout of the development ensures that the natural/rural characteristics are the dominant feature of the land.
· to encourage tourist-related development where the design of buildings blends with the natural/rural setting.
The specific requirements of this section of the GDCP 2013 are to:
· Restrict the amount of development on land on slopes greater than 20% - Where this is not possible, due to the extensive areas of the land having slopes over 20%, development can occur on the steeper land as long as building methods are adopted which rely on minimal disturbance to the land surface such as pole or similar type construction.
· Maximise retention of existing native vegetation - All development including all building works, access, bushfire asset protection zones should be confined to existing cleared areas
· Restrict the amount of cut and fill - The extent of cut and fill for buildings is to be limited to a maximum of 1m and in other cases is to be minimised.
· Ensure provision of utility services protects ecological and landscape values of land and catchment.
· Encourage a design of tourist development which is compatible with the natural/rural character of Environmental land in the City.
The site has some areas with slopes in excess of 20% which results in extensive cut and fill across the site for the provision of roads and benching of sites. Building methods, such as pole foundations, have not been proposed to minimise impacts.
While the reduction in tree removal from the originally proposed 491 to 327 to 210 trees is noted, it remains a significant number, and the works are not confined to the existing cleared areas on site. It is considered that the type of development proposed, including the number of dwelling sites, is not conducive to the retention of existing native vegetation and for minimising the extent of cut and fill on the site where site disturbance equates to approximately 80,200m2, which is over one third of the site (33%).
While utility services can be provided to the site with underground connections, this will form part of the overall excessive disturbance of the site.
The proposal is not a tourist development and is not compatible with the natural/rural character of environmental land and is inconsistent with this section of GDCP 2013.
Chapter 6.1- Acid Sulfate Soils.
The site is identified as containing acid sulfate soils Class 5 and is not located within 500m of sites containing acid sulfate soils Classes 1-4. An acid sulfate soil management plan therefore is not required.
Chapter 6.3-Erosion and Sedimentation Control
The proposed development results in extensive cut/fill and earthworks to create roads and
building sites. The slope of the land along with the extent of earthworks proposed, in proximity to the watercourses, have the potential for erosion to impact on the watercourses and downstream properties. The submitted Soil and Water Management Plans are not satisfactory as discussed elsewhere in this report.
Chapter 6.6-Tree and Vegetation Management.
210 trees are proposed to be removed and a further 88 or more likely to be removed (total 298). While proposed tree plantings are noted, there remains a significant removal of trees on E4 zoned land which is a result of the intensification of development proposed on the land that is not in harmony with the objectives of the zone. Development of E4 land is required to consist of low-impact development that does not affect the ecological and aesthetic values of the land and will result in sustainable development of the site. The caravan park in its current form does not achieve these objectives.
Council’s Tree Assessment Officer and Ecologist have also raised concerns in relation to the extent of tree removal on site and inadequate information submitted to address properly these issues.
Chapter 6.7 Water Cycle Management.
A water cycle management plan was submitted with the application. Detention basins are proposed to limit post-development flows to pre-development flows for the 1% AEP.
Chapter 7.1 - Car Parking
The dwelling sites can accommodate a manufactured home that can provide the required number of car parking spaces for each dwelling along with visitor parking spaces.
Chapter 7.2 - Waste Management
An amended waste management plan was submitted with the application. Council’s Waste Assessment Officer advises the plan is not satisfactory as it fails to adequately address waste generated during construction and operational waste collection and servicing.
Internal Consultation
|
Traffic Engineer |
Not supported-additional information required. See comments below. |
||
|
Development Engineer |
Not supported-additional information required. See comments below. |
||
|
Flooding Engineer |
|
Supported subject to conditions. |
|
|
Tree Assessment Officer |
Not supported. See comments below. |
||
|
Ecology |
|
Not supported-additional information required. See comments below. |
|
|
Waste Services |
Not supported-additional information required. See comments below. |
||
|
Water and Sewer |
Supported subject to conditions. |
||
|
Environmental Health |
|
Not supported-additional information required. See comments below. |
|
Traffic Engineer
The proposed development has the following characteristics:
A 68-site caravan park with additional ancillary facilities including:
· 31 long-term sites;
· 37 short-term sites;
· A recreation area for Minigolf / Tennis / Horse Riding;
· A managers office;
· Club room and facilities, and;
· Laundry, toilets, and shower facilities.
Due to safety issues and crash patterns on Avoca Drive TfNSW has identified an upgrade to Avoca Drive in the vicinity of Melville Street.
Access
The road network and the available routes from the wider area have been assessed and the following traffic assignment has been assumed for all traffic to and from the site:
Traffic exiting the site:
· 100% to the east towards the intersection of Avoca Drive and the Scenic Highway, then:
· 50% towards Terrigal along the Scenic Highway;
· 50% towards Kincumber by making a U-Turn at the roundabout.
Traffic approaching the site:
· 50% from the east along Avoca Drive;
· 50% from the west along Avoca Drive.
Traffic Impact
The RMS Guide to Traffic Generating Developments refers to ITE Trip Generation manual for comparable rates from the USA. The given rate for a campground / recreation vehicle park is 0.27 trips per site.

Worst movements of the driveway intersection during the weekday AM, weekday PM and weekend peak hourly periods are expected to perform with a SIDRA Level of Service of “A”. This Level of Service “A” represents good performance.
As outlined above 50% of exit traffic is assumed to be destined to Kincumber and do a U-turn at the roundabout. There appears a deficiency as no SIDRA analysis of the increase in U-turns at Avoca Drive / Scenic Highway roundabout has been undertaken.
To reduce the disruption to Avoca Drive traffic - It is proposed to ban right turns out of the site.
A channelised left and channelised right treatments CHL/CLR are to be constructed to facilitate safe vehicle entry and exit. This is consistent with earlier TfNSW requirements.
Sight Distance
AS2890.1:2004 provides the requirements for sight distances for access driveways in Figure 3.2. For a 60km/h road, the desirable “5-second gap” distance is 83m. Approximately 153m of sight is available to the west and 184m of sight to the east, significantly exceeding this requirement.
Carparking
· Two-way access roads with a minimum width of 6m are to be provided and;
· Access road of at least 7m width providing entrance and exit from Avoca Drive
The proposed development takes the form of a Caravan Park and therefore the parking requirements are provided in Clauses 96 to 98 of the Local Government (Manufactured Home Estates, Caravan Parks, Camping Grounds and Moveable Dwellings) Regulation 2005
Each of the proposed caravan sites will be provided with one parking space within each individual site to meet the requirements stated above.
Clause 97 specifies the requirement for residential car parking. The 68 sites for caravan use, comprises 31 long-term and 37 short-term sites require the provision of six (6) visitor spaces. A minimum of six (6) spaces will be provided.
At least one space for people with disabilities is to be provided.
Recommendation
Councils Traffic Engineering staff have reviewed the Traffic and Parking Impact Assessment by McLaren Traffic Engineering (MTE) dated 11 December2020 and I have one deficiency to report as listed below:
· There appears a deficiency as no SIDRA analysis of the increase in U-turns at Avoca Drive / Scenic Highway roundabout has been undertaken
Development Engineer
1 The secondary RFS access requires a creek crossing approximately 15m from Picketts Valley Road. The culvert and associated fill have not been accounted for in the flood modelling. There is insufficient information to ascertain if this will increase flood levels upstream of the creek crossing.
2 The secondary RFS access passes by an existing dam. It is unclear whether and parts of this access are located below the 1% AEP flood.
3 Additional information from a geotechnical engineer certifying the use the TrueGrid permeable paving system will be adequate for the expected traffic loadings.
Tree Assessment Officer
The proposal is to establish a tourist park along the lines of the recently rejected DA57698.
A very brief Tree Assessment Report has accompanied the documentation but does not sufficiently address such a proposal. Although a much lesser development, it still has most of the undesirable impacts on existing trees as the previous proposal as follows:
1 Impacts to mapped Regionally Significant trees adjacent to southern boundary (Avoca Drive) could be reduced. Instead of running mostly through the mapped area, greater reductions on trees could be achieved by slightly redesigning the entry access and then setback the east-west running portion beyond 40m of the southern boundary.
2 The primary lead road near the western boundary will require civil works for the battering of the road and catchment drains along road and western boundary. Impacts of those works on existing trees intended to be retained have not been addressed in the Arborist Report. If this road was not to run towards the western boundary but link into a modified version of the existing central access track, it would mostly impact on smaller natives or undesirable exotic species (Camphor laurel) located either side of the existing access.
3 Impacts on existing trees along the water course on the eastern side of the access could be reduced. Greater retention of trees by redesigning to utilise the mostly cleared area upslope would also contribute to screening from adjoining properties. Although some trees are numbered on plans, they are not tagged in this area which makes it difficult to orientate yourself.
4 The secondary access track to Pickets Valley Drive essentially follow the alignment of an existing track. The Tree Assessment Report - Access Track (Dec 20) proposes removal of just five (5) trees, however a site inspection with Council’s Engineer found that the track will likely need to be wider and the required cut and fill. This is likely to have a greater unquantified impact on native trees. It is difficult to orientate yourself without tagged trees corresponding with a plan, therefore the applicant must tag trees for any amended reports/future plans.
5 The Bushfire Report has not proposed that the entire site be maintained as an IPA. We’ll need to receive the response from RFS as the previous unsuccessful proposal was that the entire property must be managed as an IPA. That requires a tree canopy less than 15%, canopies separated by 2 to 5m and large gaps in vegetation that would further fragmentate the existing tree canopy, resulting in even greater tree removal than presented by the applicant.
The proposal does not go far enough to conserve mature trees that provide scenically prominent backdrops visible from roads and nearby properties and does not prevent further fragmentation of the tree canopy. The concept hasn’t adequately minimised impacts on mature native trees, nor concentrated enough to utilise existing clearings.
At this stage further information is not requested as the concept is not supported by Council’s Tree Assessment Officer. Any development for this site is expected to better utilise existing cleared areas and demonstrate minimimal impacts on native trees by greater retention, protection and adding to existing valuable groves of native trees.
If this concept was to proceed a more detailed Arboricultural Impact Assessment would be required. Their Arborist would need to collecting data on all trees within and near the development footprint, not just those intended for retention. Such information would assist in identifying valuable, undesirable and poor tree specimens so that the constraints of the site can be better understood and designed for.
RFS states “the entire property must be managed as an inner protection area (IPA), with the exception of the native vegetation located in the northern part of the site, the riparian corridor proposed to be retained and existing stand of managed trees along Avoca Drive”.
Although this relaxes APZ requirements on valued groups of trees, there will be unquantified impact of other trees outside those areas and impacts of the design that are still not supported as listed in Preliminary Comments from Tree Assessment Officer 17/3/21.
It is reiterated that the brief Tree Assessment Report provided by the applicant does not sufficiently address this proposal. If this development was to proceed, tree removal for establishing required IPA’s will also needs to be detailed within an acceptable Arboricultural Impact Assessment.
Ecology
The objectives of the relevant policies, zoning objectives and potential environmental impacts associated with the proposal have been considered. A review of all relevant information provided has identified additional information and amendments to supplied information that will be required prior to any further assessment of the proposal is undertaken.
An assessment of the Biodiversity Development Assessment Report submitted by the applicant has identified a number of matters that are required to be addressed and updated by the applicant’s Ecological Consultant prior to a further assessment of the proposal being undertaken.
A determination by NSW RFS has indicated that the area of the subject site, south of the northern water course is required to be maintained entirely as an Inner Protection Area bushfire Asset Protection Zone and that only specific areas including the riparian corridor of the southern creek and the trees lining Avoca Drive are to be maintained as an Outer Protection Area.. This is to be adequately reflected within all relevant documentation submitted as it will allow for an accurate assessment of the direct ecological impacts of the proposal as well as the scope for any ecological rehabilitation present within the site to be considered.
It is noted that NSW DPI Fisheries has recommended that a series of deeper pools be provided along the proposed re-aligned watercourse in order to provide refuge points of fish during periods of drought. This ties in with the request of Council’s Ecologist to provide a mosaic of permanent and ephemeral pools along side the proposed watercourse in order to provide suitable habitat for the Green and Golden Bell Frog (GGBF) and could be incorporated into any such habitat design.
With regard to the design of habitat for the GGBF, it is recommended that species specific expert advice be sought and that draft pond design be implemented in any updated watercourse engineering plans. Design details and considerations used for replacement GGBF habitat at Sydney Olympic Park will be provided to the applicant in order to guide the design of the replacement habitat.
It is noted that NSW NRAR has identified a significant encroachment into the required 20m Vegetated Riparian Zone of the southern bank of the northern watercourse as a result of the proposed bushfire Asset Protection Zone. It is expected that the applicant will amend their plans accordingly do address this matter. The updated plans will have to be assessed with respect to all other relevant ecological matters when submitted.
At the current point in time, a significant review of the consistency of the relevant environmental and bushfire assessment documents is required in order to reflect a unified and consistent plan for the proposed works in order for a sound decision making review process to be undertaken. Further assessment and consideration of the proposal will be undertaken when all relevant documentation is adequately updated and consistently reflects the proposal.
An amendment to the proposed site layout, submitted to Council on 26/04/2021 has deleted the previously proposed northern access road. This will remove the requirement for any additional Rhodamnia rubescens surveys and potential impact assessments and is generally observed as a positive ecological outcome within the bounds of the proposal.
Additional Information Required:
BDAR Review:
Updated Proposed Site Plan
- Update the proposed site plan including the deletion of the northern access road (ADW Johnson – ‘Proposed Caravan Site Layout, 19/04/2021). Adjust the BAM-C accordingly.
Green and Golden Bell Frog – Habitat Removal/ Replacement
- Provide additional explanation/ justification as to why the removal/ modification of Dam 1 (the large centre dam/ watercourse) is required. As per the BDAR (Ecoplanning, 11 Dec 2020), the dammed watercourse meets the definition of a ‘Local Wetland’ as per the BAM, and that “Dewatering of the dam and modification to drainage lines will remove and affect habitat that is ideal breeding habitat for GGBF.” (Green and Golden Bell Frog). As indicated by the BDAR, this feature represents special ecological value within the site and therefore, its retention or adequate, compensatory replacement should be demonstrated :
o The BDAR states that “Provision of compensatory or additional GGBF habitat and other GGBF relevant conservation measures as part of the development planning would be ideal. GGBF habitat components and their strategic positioning are outlined in the GGBF Best Practice Habitat Guide (DECC 2008) and these have the potential to be provided as part of the proposal design.”
Replacement GGBF habitat (in the form of a mosaic of permanent and ephemeral pools and shallow wetlands) is recommended to be demonstrated along the proposed newly channelled watercourse through the centre of the subject property. Replacement habitat features should be designed in accordance with industry best practice and specialist knowledge of GGBF replacement habitat. Replacement habitat design is recommended to be undertaken in consultation with relevant species specific experts.
As a general approach to the inclusion of GGBF habitat, the following should be considered:
§ Make each pond/ wetland as large as the confines of the site will allow and include a variety of depths with a minimum of 600mm for the deepest sections.
§ The mosaic of ponds along side the constructed watercourse should be designed to have differing hydroperiods/ drying cycles and can include habitat features such as swales, lined and non-lines ponds to provide for a range of habitat features.
§ Ensure that pond/ wetland design allows for the isolation and treatment of ponds for pest and disease management. Ie: draining and drying for Gambusia.
§ Generally, replacement/ supplementary ponds should aim for the following:
· retention of water for a minimum of 8 weeks, a pond where breeding is likely/has been recorded should be full for the whole active frog season
· be unshaded between 10am and 4pm
· macrophytes covering 40% - 70% of the waterbody when the pond is full
· perimeter macrophytes being at least 1.5 metres wide where pond design permits.
· contain shelter habitat such as rock piles/ emergent coarse woody debris
- Any proposed species polygon assigned to the GGBF is to be consistent with the ‘NSW Guide to Surveying Threatened Frogs’ (September 2020). Specifically the guidance for creating a species polygon states that “The species polygon boundary should align with aquatic habitats linked directly to the record and a buffer, incorporating the PCTs with which the species is associated, of 200 metres radius from the top of bank. The polygon should include minimum 50 metre wide corridors of native and non-native vegetated areas linking the available waterbodies, where relevant.”
o It should be noted that both native and non-native vegetation is to be included within the corridors between available waterbodies and that the GGBF is associated with PCT 99997 ‘Highly disturbed areas - road verges, table drains, road embankments, ploughed paddocks etc.’. The non-native, disturbed/ cleared lands surrounding the existing waterbodies should be considered for inclusion when applying the latest guidelines.
Bushfire Tree Removal Requirements:
- It is recommended that the applicant’s Bushfire Consultant, in conjunction with the applicant’s consultant Ecologist, provide a tree retention/ removal plan for the existing canopy trees to be retained and managed within the proposed IPA APZ area (excluding the heavily vegetated area of the property, north of the northern watercourse). The plan should detail which trees are proposed to be retained and which will need to be removed in order to comply with IPA APZ requirements.
Preference should be given to the retention of large, mature native trees that contain multiple tree hollows and therefore have high ecological significance with the removal of non-native and smaller/ less ecologically significant native trees prioritised where required.
Dam Dewatering Report:
- Update the Dam Dewatering report to be consistent with the proposed works. The Dam Dewatering Report states that “Dam 1 and Dam 3 will require dewatering, as displayed in the Dam Dewatering Plan (ADW Johnson 2020)”. Engineering plans provided indicate Dam 3 is to remain (figure 2). The remaining details of the report, and any corresponding reports, should then be updated accordingly.
- Update the Dam Dewatering Report to include specific measures to ensure the protection of the Green and Golden Bell Frog (GGBF) during site preparation and dam de-watering works, should any individuals be identified.
o Include a procedure for the removal of fringing and emergent vegetation. This should include, but not be limited to a staged vegetation removal process over a series of days to ensure no individuals are directly impacted as a result of the proposed works. The method identified should be similar to or reflect the intention of the below:
§ Mark the boundaries of the works footprint with star pickets, witches’ hats or similar.
§ Aquatic vegetation
· Lower water levels or pump out pond (where feasible); wait two days
· Hand-cut emergent macrophytes as low as possible (do not use brushcutters or similar). Minimise trampling during the works. Continually watch for and relocate any sheltering frogs or other animals (ecologist in attendance). Remove cut material from the works footprint.
· Either remove cut material on the same day it is cut, or leave it on site to decompose in a location approved by the appointed Ecologist
§ Terrestrial vegetation
· Day 1: Slash vegetation to 300mm
· Day 2: Slash vegetation to 150-200mm.
· Day 3: Hand search by ecologists for any remaining frogs; slash vegetation to <50mm; commence works
· An Ecologist is to undertake pre- clearance fauna surveys no longer than 24 hours prior to the commencement of works. This is to include survey of all adjacent and emergent vegetation around both dams proposed for removal to ensure no threatened fauna species sensitive to disturbance are actively nesting or breeding. If sensitive threatened species are detected, such as Green and Golden Bell Frog (Litoria aurea), consultation with Council is to be undertaken and works must not commence until appropriate mitigation measures have been agreed and written clearance from Council’s Ecologist has been given.

Figure 6 - Concept engineering plans indicating that 'Dam 3' is to remain (ADW Johnson, 11/12/20)
Waste
Where the consent authority was in a position to support the proposal, the submission of a revised signed and dated Waste Management Plan would be required in accordance with Chapter 7.2 – Waste Management of Gosford DCP 2013 and Central Coast Local Environment Plan 2014 (GLEP2014)- A guide for Applicants on Supporting Document Requirements for all site preparation, demolition, construction and on-going management of waste.
Review of the submitted document dated (10 December 2020) notes Demolition details are overly brief and do not indicate all materials likely to be generated by the structures identified for demolition.
All Demolition materials capable of reuse/ recycling are to identified with an estimated quantity for disposal to an appropriate licensed facility.
Residual waste is to refer to only those materials that are unable or not feasible to separate for disposal to landfill.
Ongoing Operation details require revision to refer to all mixed and recyclables waste to be serviced by a private commercial waste contractor.
Environmental Health.
Air Quality
Dust is expected during construction works. Standard condition will be applied.
Acid Sulfate Soil (ASS)
The land is mapped as Class 5, no known occurrence ASS, therefore an ASS Management Plan is NOT required.
Asbestos Containing Material (ACM)/ Contamination/ SEPP 55
The site currently contains three dwellings, several ancillary structures and outbuildings including horse stables.
The preliminary and detailed contamination assessment identify lead and asbestos contamination in surface soils around the vicinity of the residential dwelling, microbial contamination associated with the septic tank and buried asbestos pipework.
The Remediation Action Plan (‘RAP’) has been prepared generally in accordance with the NSW EPAs Guidelines. The demolition plan indicates that one dwelling is to be retained with all other buildings to be demolished. The Hazardous Substances Audit, which forms part of the RAP indicates that asbestos, synthetic mineral fibre and lead paint is present in several structures.
The RAP identifies the preferred methods of remediation, which include offsite disposal of lead and asbestos impacted soils, asbestos pipes and asbestos from the buildings to a licensed waste facility. Excavation and exposure to UV radiation of the microbial contamination is the preferred option, with offsite disposal to a licensed waste facility as a contingency plan. An asbestos removal plan, environmental management plan and unexpected finds protocol forms part of the RAP. A construction environmental management plan for the remediation and validation works has also been provided.
Conditions will be applied.
Stage 4 Validation that all site contamination has been removed and the site is suitable for the proposed land uses is required to be provided to Council following demolition and remediation works, which can be addressed by deferred commencement conditions.
Noise
The acoustic report is outdated and is modelled on the previous refused DA for the Residential Land Lease Community. An updated acoustic report is required.
Soils and Construction/ Water
Works will require approximately 131,165m2 of soil disturbance, therefore a Soil and Water Management Plan (‘SWMP’) must be approved prior to consent as per Clause 6.3 of the Gosford DCP.
The site contains two watercourses, tributaries of Saltwater Creek and Avoca Lagoon. Avoca Lagoon is a regionally significant water body, with high recreational, ecological and aesthetic values.
Works involve dewatering and filling a small farm dam, reshaping the southern dam into a flowing watercourse with riparian vegetation and keeping the northern watercourse in its current state (with additional riparian planting). Three permanent detention/biofiltration basins (to be used as sediment basins during construction works) are proposed upstream of the existing watercourses to allow for treatment prior to dewatering. A further three sediment basins will be constructed to capture and treated sediment laden water during construction works.
Works are required on ‘waterfront land’, therefore a soil loss class 6 applies automatically and works are identified as a high erosion hazard, therefore timing constraints applies to when excavation and construction works can be undertaken. It is expected that works will be conducted over 12 months therefore special erosion controls are required between November and May, such as spraying hydro mulch prior to rainfall. Instream diversions are proposed to divert clean water around the works areas.
Submitted SWMPs are not satisfactory for the following reasons:
· Construction drawings and notes for wet sediment basins have not been provided,
· Water quality parameters set for dewatering sediment basins and dewatering existing dams have not been provided,
· Hay bales are NOT supported in watercourses due to the risk of weeds spreading downstream. Also, construction notes and detail for hay bales have not been provided,
· Special sediment and erosion control measures have not been listed and identified,
· Sediment basins have been sized on 50% settling zone capacity however as Soil Loss is identified as Class 6, therefore they must be sized on 2-month soil loss,
· Mulch mounds are NOT depicted on Area 1 and Area 4 catchments and are used to make up storage zones for sediment basins, however no technical construction details or notes are provided, nor is this method endorsed by ‘Blue book’.
The Dewatering Management sets out the requirements of dewatering two of three dams on site. It is expected that the Ecology team will provide comment on impacts to fauna and flora. Water quality parameters are to be met prior to any dewatering, as per the detail set out in the SWMP (to be provided); with water will be irrigated onto grassed areas.
Excavation works involve 92,970m3 of cut and 98,692m3 of fill, with 5,722m3 of fill to be imported to the site.
Additional information required:
· Provide an updated acoustic report that is modelled on the current application for a caravan park. The acoustic report must be prepared by a suitably qualified acoustic consultant that meets the technical eligibility criteria for membership with the Association of Australasian Acoustical Consultants. The report must be prepared in accordance with the NSW EPAs Noise Policy for Industry (2017).
· The Soil and Water Management Plan is NOT supported in its current form. The following comments are provided for amendment:
o Provide construction drawings and notes for wet sediment basins (see SD 6-4 ‘Blue Book’),
o Provide water quality parameters to be set for dewatering sediment basins and dewatering existing dams (no visible oil and grease, <50 NTU Turbidity, etc.),
o Hay bales are NOT supported in watercourses due to the risk of weeds spreading downstream and should be replaced with rock check dams. Include construction details and notes and depict on plans (see SD 5-4 from ‘Blue Book’)). If hay bales are to be used in areas other than watercourses provide construction notes and detail (see SD 6-7 ‘Blue Book’),
o Special sediment and erosion control measures (due to Soil Loss Class 6) are to be identified and listed,
o Sediment basins must be sized on 2-month soil loss, (due to Soil Loss Class 6 (see Section 6.3.4 (i) (ii) ‘Blue Book’)),
o Mulch mounds are NOT depicted on Area 1 and Area 4 and are NOT supported to be used to make up storage zones for sediment basins, unless further detail such as published technical specifications and construction detail and notes are provided and are endorsed by an independent expert in Erosion and Sediment Control (i.e.CPESC).
Submissions from Public Authorities/External Consultation
The following submissions have been received from agency consultation:
|
NSW Rural Fire Service |
Supported subject to conditions. Refer attachment 3. |
||
|
TfNSW |
|
Supported subject to conditions. Refer attachment 5. |
|
|
NRAR |
|
Additional information required. Refer attachment 4. |
|
|
Department of Primary Industries-Fisheries |
|
Deeper pools should be provided. Subject to approval by NRAR. Refer attachment 6. |
|
Ecologically Sustainable Principles:
The proposal has been assessed having regard to ecologically sustainable development principles and is considered to be inconsistent with the principles.
The proposed development is not considered to incorporate satisfactory stormwater, drainage and erosion control and the retention of vegetation where possible and is likely to have significant adverse impacts on the environment and will decrease environmental quality for future generations. The proposal does or is likely to result in the disturbance of endangered flora or fauna habitats and is likely to significantly affect fluvial environments.
Climate Change
The potential impacts on climate change of the proposed development have been
considered by Council as part of its assessment of the application.
The assessment has included consideration of such matters as potential sea level rise;
potential for more intense and/or frequent weather conditions including storm events,
bushfires, drought, flood and coastal erosion; as well as how the proposed development may
cope, combat, withstand these potential impacts.
The proposed development is not considered to be compatible with the likely increases
in flooding and risk of bushfires particularly having regard to the likely age of occupants, tourist use and intensity of development.
Any Submission made in Accordance with this Act or Regulations
The application was notified from 15 January 2021 to 22 February 2021. One hundred and sixty- one (161) public submissions were received in relation to the application. Those issues associated with the key issues have been addressed in the above report. The remaining issues pertaining to various concerns were addressed in the assessment of the application pursuant to the heads of consideration contained within Section 4.15 of the Environmental Planning and Assessment Act 1979.
A summary of the public submissions, with appropriate comments, is detailed below.
1 The proposal will have a negative impact on the road system by increased traffic, noise and decrease in road safety.
Comment: The road system can cater for the additional traffic generated by the proposal. Works will be required on Avoca Drive to Council and TfNSW requirements.
2 The proposal will result in the destruction of a large number of trees. This will impact wildlife, result in erosion and pollution increase in watercourse, and increase flooding and climate change. Replacing mature trees with saplings does not compensate for habitat loss.
Comment: The proposal results in a significant removal of existing trees and habitat value. The replacement planting cannot fully compensate for this. It would be more appropriate to site development so as to have negligible tree removal and earthworks to preserve the existing landscape and scenic value and ecology impacts.
3 The proposal is not consistent with the proposed E4 zone and future planning for the area.
Comment: The proposal is not consistent with the objectives of the E4 zone for low density development and preservation of scenic values.
4 The proposal will impact the visual and scenic quality of the area.
Comment: The significant tree removal and earthworks will impact the visual and scenic quality of the site and the area.
5 The extensive earthworks and tree removal will impact downstream waterways including Avoca Lagoon.
Comment. Appropriate sedimentation and erosion controls could be installed. There is always a risk during storm events that downstream waterways may be impacted during construction and future operation.
6 Overdevelopment of the site. And gross inappropriate development. Not low density.
7 Impact on adjoining property values.
Comment: There is no evidence to support this claim. Inappropriate development may have social and economic impacts on the community as well as adjoining properties.
8 The cluster of the proposed sites in one corner of the site indicates the developer’s future plans to extend the development in the future. The proposed caravan sites should have been scattered throughout the site to reduce the environmental impact.
Comment: The density concentrated in part of the site and works required throughout the site is not considered to be low density and has significant impacts on the environment. It is not a matter for consideration what future development applications may be lodged for development on the site.
9 The $9.2 million cost does not justify 68 caravan sites.
Comment: The viability of the development is a matter for the developer. The high cost of the development indicates the works required to develop the site are extensive and a more sensitive development is warranted and should be considered.
10 Existing facilities in the area are inadequate, such as shops, medical services and public transport.
Comment: The additional population generated is minor compared to the total population of the area. There are additional services and facilities throughout the Central Coast albeit a greater distance away from the site.
11 Existing tourist accommodation is adequate for the area.
Comment: Tourist accommodation aids the local economy.
12 The proposal is not in the public interest as it is against the wishes of the community.
Comment: The proposal is not in the public interest due to the significant environmental impacts of the proposal.
13 The proposal does not comply with the objectives of the E4 zone and SEPPs for caravan parks or mobile home estates.
Comment: The proposal is not consistent with the objectives of the existing and proposed E4 Zone.
14 The proposal is not for tourist development as there are 31 or about half long- term sites.
Comment: Both long term and short term caravan sites are permitted. There is no restriction on the number or percentage permitted for long term sites. Long term sites typically are associated with low cost or affordable housing.
15 Bushfire risk and inadequate egress in times of bushfire.
Comment: The RFS have issued conditions of approval if consent is granted for the proposal.
16 The land should be purchased by the State Government to preserve the landscape/scenic quality.
Comment: There is no proposal to bring the land into public ownership.
17 The proposal is a manufactured home estate in the guise of a caravan park.
Comment: This is not subject to this application but may occur in the future.
18 The many applications add to public confusion.
Comment: The site has had two previous applications which were both refused. It is understandable why there is public confusion.
19 Impact on flora and fauna.
Comment. Council’s ecologist does not support the proposal based on the information submitted.
20 Heritage impact on existing house.
Comment: The existing house identified as a proposed heritage item is proposed to be retained.
21 Documentation submitted is vague, misleading, inconclusive and not sufficient to justify approval.
Comment: This is a reason for refusal. Council cannot approve the application based on the information submitted and approval from all integrated authorities.
22 No security fence is proposed. This could have trespass access and impacts on neighbours.
Comment: This could be required as a condition of consent if deemed necessary.
23 Project is going from bad to worse.
Comment: The applicant has gradually been reducing the density and number of proposed sites. The proposal still has significant environmental impacts due to the extent of internal works proposed.
24 The proposal has already been refused twice.
Comment: The previous application and Section 8.2 review were both refused by the Local Planning Panel. The current application is a new application.
25 Significant weight must be given to objectives of the E4 zone and draft LEP which prohibits the development.
Comment: The proposal does not comply with the objectives of the E4 zone and is prohibited under the Draft LEP. Significant weight must be given to the draft LEP as approval would undermine the planning instrument which is imminent.
26 The proximity to adjoining houses and the impact of waste collection.
Comment: The development is setback an adequate distance from the side boundary of the site. Noise mitigation measures could be constructed if required.
27 The proposed access from Picketts Valley Road is subject to flooding and will impact trees and ecology of the site.
Comment: The application has deleted the proposed access road form Picketts Valley Road. All access is from Avoca Drive.
28 The proposal is not reflective of a caravan park or affordable housing and does not have social and economic benefits to the community.
Comment: The proposal is not for low- cost housing or affordable housing.
29 The proposal is prohibited on the subject land under the provisions of SEPP 36-Manufactured Home Estates as land identified as environmental protection is excluded from the SEPP. Clause 2.1 of the GLEP 20114 includes the E4 Environmental Living zone under the environmental protection classification.
Comment: The current application does not include a proposal for a manufactured home estate.
Other Matters for Consideration:
Contributions
The development would be subject to Section 7.12 contributions (1%) and water and sewer contributions if approval were to be granted.
Central Coast Regional Plan 2036
The plan identifies the need for an increase in population and housing by the year 2036,
including the need for aged housing. The Central Coast has a higher proportion of aged
people over 55 than the state average. There is also a need for affordable housing such as
that provided in caravan parks or other residential accommodation. The proposed development would provide some additional housing in the local government area however, this site is not considered appropriate for the type of development proposed.
The Public Interest
Conclusion:
This application has been assessed against the heads of consideration of Section 4.15 of the Environmental Planning & Assessment Act 1979 and all relevant instruments and policies. The potential constraints of the site have been assessed and it is considered that the site is unsuitable for the proposed development. The proposed development is expected to have adverse social, economic, ecological, amenity impacts. It is considered that the proposed development will not complement the locality and not meet the desired future character of the area.
Accordingly, the application is recommended for refusal pursuant to Section 4.16 of the Environmental Planning and Assessment Act.
Recommendation
That the Local Planning Panel refuse the application [DA 60268/2020 for a caravan park on Lot A DP449600, Lots 2, 3 and 9 DP976799, 255, 255A, 255B Avoca Drive, and 19 Picketts Valley Drive, Kincumber, subject to the reasons for refusal detailed below and having regard to the matters for consideration detailed in Section 4.15 of the Environmental Planning and Assessment Act 1979:
1 The proposed development is not consistent with the objectives of the E4 Environmental Living zone
2 The proposed development would result in additional stormwater run-off and potential impacts on riparian zones.
3 The proposed development would result in significant cut and fill, earthworks and removal of vegetation on the site which would impact the ecological values, visual and scenic quality of the area.
4 The site is not suitable for the proposed development due to its landscape, scenic and ecological qualities which should be preserved.
5 Insufficient information has been provided on road works within the site, ecology impacts, waste impacts, soil and water management, and tree retention.
6 The proposal is an overdevelopment of the site, inconsistent with the current and future desired character of the locality and approval is not in the public interest.
7 Pursuant to Draft Central Coast LEP (2018) the proposed development is prohibited within E4 Environmental Living zone.
8 The proposed development does not have adequate regard to achieving compliance with the Local Government (Manufactured Home Estates, Caravan Parks, Camping Grounds and Moveable Dwellings) Regulation 2005
Reasons for the Decision
The reasons for the decision as recommended under the assessment of this application are as follows:
1 The proposal is not satisfactory having regard for the relevant environmental planning instruments, plans and policies.
2 The proposal has been considered against the provisions of State Environmental Planning Policy No 21 (Caravan Parks), Gosford Local Environmental Plan 2014 and Gosford Development Control Plan 2013 and has been found not to be satisfactory.
3 There are significant issues or impacts identified with the proposal under s.4.15 of the Environmental Planning and Assessment Act 1979.
4 Inadequate and insufficient information to satisfactorily address the impacts of the proposal and compliance with statutory requirements and regulations.
|
1⇩ |
Amended Site Plan |
|
D14602396 |
|
2⇨ |
Statement of Environmental Effects |
Provided Under Separate Cover |
D14402017 |
|
3⇩ |
NSW RFS GTAs |
|
D14550226 |
|
4⇩ |
NRAR Letter |
|
D14751406 |
|
5⇩ |
TfNSW Letter |
|
D14512751 |
|
6⇩ |
NSW Fisheries Letter |
|
D14532515 |
|
3.1 |
DA/60468/2020 - Caravan Park (31 long term sites and 37 short term sites) - 255, 255A, 255B Avoca Drive & 19 Picketts Valley Road, Kincumber |
|
Attachment 1 |
Amended Site Plan |
|
DA/60468/2020 - Caravan Park (31 long term sites and 37 short term sites) - 255, 255A, 255B Avoca Drive & 19 Picketts Valley Road, Kincumber |
|
|
Attachment 3 |
NSW RFS GTAs |
|
DA/60468/2020 - Caravan Park (31 long term sites and 37 short term sites) - 255, 255A, 255B Avoca Drive & 19 Picketts Valley Road, Kincumber |
|
|
Attachment 4 |
NRAR Letter |
|
DA/60468/2020 - Caravan Park (31 long term sites and 37 short term sites) - 255, 255A, 255B Avoca Drive & 19 Picketts Valley Road, Kincumber |
|
|
Attachment 5 |
TfNSW Letter |
|
3.1 |
DA/60468/2020 - Caravan Park (31 long term sites and 37 short term sites) - 255, 255A, 255B Avoca Drive & 19 Picketts Valley Road, Kincumber |
|
Attachment 6 |
NSW Fisheries Letter |
|
Item No: 3.2 |
|
|
Title: DA/60416/2020 - 36 Coral Crescent Pearl Beach - Dwelling House (New), Pool and Demolition of Existing Dwelling |
|
|
Department: Environment and Planning |
|
|
25 November 2021 Local Planning Panel Meeting |
|
Reference: 011.2020.00060416.001 - D14922663
Author: Susana Machuca, Senior Development Planner
Manager: Ailsa Prendergast, Section Manager, Development Assessment South
Approver: Andrew Roach, Unit Manager, Development Assessment
|
Summary
An application has been received for a new dwelling house, pool and demolition of existing dwelling.
The development application has been referred to the Local Planning Panel (LPP) as a result of the number of submissions objecting to the proposal. A total of 45 submissions were received by Council during notification.
The application is recommended for approval, subject to conditions.
Applicant Professional Construction Services Pty Ltd Owner Trish Affleck Application No DA60416/2020 Description of Land Lot 273 DP 14817 Proposed Development Dwelling House (New), Pool and Demolition of Existing Dwelling Site Area 674.7sqm Zoning R2 Low-density Residential Existing Use Dwelling House Employment Generation No Estimated Value $1,360,019.00
|
1 That the Local Planning Panel grant consent to DA60416/2020 for Dwelling House (New), Pool and demolition of existing dwelling on LOT 273 DP 14817, 36 Coral Crescent PEARL BEACH subject to the conditions detailed in the schedule attached to the report and having regard to the matters for consideration detailed in Section 4.15 of the Environmental Planning and Assessment Act 1979.
2 That Council advise those who made written submissions of the Panel’s decision.
Key Issues
· Non-compliance with Chapter 5.10 of the Pearl Beach Residential Development of
Gosford Development Control Plan 2013 – floor space ratio, building setbacks and
building lines.
· Matters Raised in public submissions, including amenity impacts, building encroachment beyond the coastal building line, triple car garage etc.
Precis:
|
Proposed Development |
Dwelling House (new), pool and demolition of existing dwelling. |
|
Permissibility and Zoning |
The subject site is zoned R2 Low-density Residential under Gosford Local Environmental Plan 2014 (GLEP 2014).
The proposed development is defined in the GLEP 2014 as ‘dwelling house’ and is permissible in the zone with the consent of Council.
dwelling house means a building containing only one dwelling. |
|
Relevant Legislation |
The following planning policies and control documents are relevant to the development and were considered as part of the assessment: · Environmental Planning & Assessment Act 1979 – Section 4.15 (EP&A Act) · Protection of the Environment Operations Act 1997 (POEO Act) · State Environmental Planning Policy (Building Sustainability Index: BASIX) 2004 · State Environmental Planning Policy No. 55 – Remediation of Land (SEPP 55) · State Environmental Planning Policy (SEPP) No 71 – Coastal Protection · State Environmental Planning Policy (Coastal Management) 2018 (Coastal Management SEPP) · Gosford Local Environmental Plan 2014 (GLEP 2014) · Gosford Development Control Plan 2013 (GLEP 2013) |
|
Current Use |
Single storey Dwelling House |
|
Integrated Development |
No |
|
Submissions |
45 Submissions |
Variations to Policies – Gosford Development Control Plan 2013
|
Clause |
Clause 5.10.7 Site Development subclause b) iii) - the development will have a floor space ratio (FSR) of 0.448:1 which is greater than the allowable FSR of 0.4:1. |
|
Standard |
0.4:1 |
|
LEP/DCP |
Gosford Development Control Plan 2013 |
|
Departure basis |
37.35sqm or 5.53% |
|
Clause |
Clause 5.10.9 Building Setbacks and Building Lines |
|
Standard |
subclause b) i) – the building does not provide a minimum setback of 6m from the street and rear boundary. |
|
LEP/DCP |
Gosford Development Control Plan 2013 |
|
Departure basis |
Front Setback – a variation of 1.40m or 20% (for 6.93m or 45.47%) of site width. |
|
Clause |
Clause 5.10.9 Building Setbacks and Building Lines |
|
Standard |
Subclause b) iv) – a dwelling house with a building height of more than 3.8m and any carport, garage, balcony, deck, patio, pergola, terrace or verandah that is attached to the dwelling house must have a setback from a side boundary of at least the sum of: a. the amount of the setback specified for the relevant sized lot in subclause 5.10.9b(iii) and b. an amount that is equal to one-quarter of the additional building height above 3.8m. |
|
LEP/DCP |
Gosford Development Control Plan 2013 |
|
Departure basis |
Encroachment of north and south facing upper-level external wall as shown on the architectural plans. A variation of approximately 0.93m or 56.33% (for 9.17m or 20.72%) to the northern boundary and 0.93m or 56.33% (for 9.17m or 20.72%) of the total 44.27m site length the southern boundary respectively. |
The Site
The site is legally identified as Lot:273 DP:650 No 36 Coral Crescent Pearl Beach, has a site area of 674.7sqm and is located on the eastern side of Coral Crescent, between Silex Place and Beryl Boulevard, refer figure 1.
The site is a beach front property, has a rectangular shape and generally flat, with minimal sharp slopes to the front boundary at Coral Crescent and rear boundary to Pearl Beach. The site runs on approximately east to west axis and grades abruptly from a central plateau to the front west boundary of 15.24m - Coral Crescent (RL 7.0- 6.0AHD) and rear east boundary of 15.24m– Pearl Beach (RL 7.0-6.0AHD). Both north and south longitudinal boundaries are 44.27m in length. The site currently contains an existing older single storey dwelling and detached double garage built to the north front boundary. There are two trees within the front southern setback together with a street tree and adjoining landscaping. There is dune vegetation to the rear of the site adjoining the beach.
The subject site has panoramic ocean and beach views of Peral Beach and Box Head / Bouddi National Park as well views to the south-east of Green Point Headland and Lion Island.
The site is not identified as being flood affected. The site is not identified as being "bushfire prone land" on Council's bushfire maps.
Surrounding Development
The site is located within a low-density residential area with beach front view and access, characterized by a mixture of one and two storey dwelling houses. Adjoining development comprises a 2-storey dwelling house, to the south No. 34 Coral Crescent and to the north No. 38 Coral Crescent, refer to figure 2.
Surrounding development to the north, west and south consists of a combination of predominantly detached single storey detached original older dwellings and two storey newer developments. In the immediate vicinity there is a mix of dwelling types, sizes and architectural designs with smaller and older dwelling houses giving way to larger new and/or renovated residential homes, refer figures 3-6.
![]()
![]()
![]()
The Proposed Development
The proposed development involves the demolition of the existing single storey dwelling and the construction of a 2-storey (5 bedroom) dwelling and pool.
The proposal comprises:
· New Dwelling:
o Lower street access (half level) double garage (40sqm+ 15sqm services) with lift shaft and service area (Waste Bin and Rainwater tanks), main entry with timber and metal pergola, landscaping and side access stairs (to south boundary);
o Ground floor level (156 sqm)– Main Entry to a terraced timber deck, 12.5m x 3.0m pool with surrounding terrace pathway. Main entry into main stair shaft, open plan living /dining and kitchen area with large open timber deck area to the beach, small study nook, powder room toilet area, laundry, hallway to side access stair and lift shaft, cabinet and storage areas including access to large terrace area with timber and metal pergola over garage, bathroom and two double bedrooms.
o First floor (151.78sqm) – Main stair shaft accessibility to main bedroom private wing with large en-suite and private balcony (to the beach), rumpus /entertaining area with bar and balcony facing the beach, store areas and hallway to side access stair, lift shaft and more store area, main bathroom and two double bedrooms.
o Roof design caters for future solar panels, open roof area to balcony in rumpus/entertainment area and skylights to the master bedroom, access area and hallway. Refer to figures 12-16.
![]()
History / Background:
The proposed development was amended twice during the assessment process on 26 April 2021 and 31 August 2021 in response to issues raised through initial assessment by Council Officers and matters raised in submissions including but not limited to:
· Engineering vehicle access longitudinal section design were not submitted, this work must be carried out and completed in line with W&S design requirements.
· Water & Sewer assessment required proper engineering detailed design of the proposals ability to comply with the aims and requirements of Council’s Building in Proximity to Water and Sewer Pipelines Policy, the extent of cut within the road verge, treatment of proposed excavation with retaining walls whereby these may not be permitted over water supply mains and proper adjustment of horizontal and vertical water main and impacts these could have to the services. In order to complete this more detailed engineering design, the applicant had to conduct a pot holing process on the road reserve.
· Vehicle Access Crossing design was amended from a triple garage (one single and one double garage) with two road reserve vehicle accesses to one double garage access given that only 1 x crossing is permitted at maximum 5.0m wide.
· Development beyond allowable coastal building line, height, bulk and scale dominance of building, and dual occupancy matters were raised in submissions.
o After amended plans were lodged by applicant on 26 April, adjoining properties owners of Nos 34 and 38 and 40 Coral Crescent commissioned Turnbull Planning International to represent them and requested to view full lodged amended architectural plans and reports.
o On 24 May 2021 the assessing planning officer facilitated a review of this documentation at Council offices, the owner of 34 Coral Crescent attended and reviewed amended plans.
o On 25 May 2021 Turnbull planning after various requests to view electronic copies of amended architectural pans (which were denied under intellectual property rights by the Architect) applied for a GIPA authorization to view a full set of the architectural drawings.
o On 20 August 2021, in order to assist the process (amid Covid conditions) the planning officer spoke to all parties and arranged a virtual Team meeting whereby the architectural drawings could be viewed on the computer shadowing exactly the same conditions as if the attendance were at Council Offices. All parties attended the Teams meeting to view of plans only and no recording of the information was allowed.
o On 31 August 2021 amended architectural plans were lodged in-line where possible with discussion and concerns pointed out by adjoining neighbours mainly pertaining to privacy and views matters.
The amended plans were not notified given the changes to the architectural plans reduced the impacts, were minor in nature and overall, the development variations of the proposal remained substantially the same development.
ASSESSMENT:
Having regard for the matters for consideration detailed in Section 4.15 of the Environmental Planning and Assessment Act 1979 and other statutory requirements, Council’s policies and Section 10.7 Certificate details, the assessment has identified the following key issues, which are elaborated upon for Council’s information. Any tables relating to plans or policies are provided as an attachment.
Draft Central Coast Local Environmental Plan
The following draft Environmental Instruments apply to this application:
· Draft Central Coast Local Environment Plan (CCLEP) 2018.
Under the draft CCLEP 2018 the subject site is proposed to be under R2 Low-density Residential zoning whereby dwelling houses remain as a permitted use within the land zoning.
Given the site characteristics and surrounding residential homes in the immediate locality, existing planning controls, and conditions contained in the recommendation, it is considered that the granting of consent to the proposal will not be detrimental to the Draft CCLEP.
The assessment concluded the proposal is consistent with the draft CCLEP 2018.
State Environmental Planning Policy No. 55 – Remediation of Land
State Environmental Planning Policy No 55 Remediation of Land (SEPP 55) applies to all
development and requires consideration and management of site contamination issues as
part of the development assessment process. The current use of the site is for domestic
residential purposes, and there are no known previous uses that would lead to the site being
contaminated or unsuitable for the proposed use.
State Environmental Planning Policy (Building Sustainability Index: BASIX) 2004
The application is supported by a BASIX certificate which confirms the proposal will meet the
NSW government's requirements for sustainability, if built in accordance with the
commitments in the certificate.
The proposal is considered to be consistent with the requirements of State Environmental
Planning Policy (Building Sustainability Index: BASIX) 2004.
State Environmental Planning Policy (Coastal Management) 2018
The provisions of State Environmental Planning Policy (Coastal Management) 2018 (Coastal
Management SEPP) require Council consider the aims and objectives of the SEPP when
determining an application within the Coastal Management Area. The Coastal Management
Area is an area defined on maps issued by the NSW Department of Planning & Environment
and the subject property falls within the mapped coastal management areas.
The subject property is within the Coastal Environment area and Coastal Use area. The
relevant matters have been considered in the assessment of this application. The application
is considered consistent with the stated aims and objectives.
Gosford Local Environmental Plan 2014 - Permissibility
The subject site is zoned R2 Low-density Residential under Gosford Local Environmental Plan
2014 (GLEP 2014).
The proposed development is defined as dwelling house which is permissible in the zone
with consent of Council.
dwelling house means a building containing only one dwelling.
Gosford Local Environmental Plan 2014 - 2.3 Zone Objectives and Land Use Table
Subclause 2.3(2) of the GLEP 2014 requires the consent authority to have regard to the
objectives for development in a zone when determining a development application.
The objectives of the R2 Low-density Residential zone are:
· To provide for the housing needs of the community within a low-density residential environment.
· To enable other land uses that provides facilities or services to meet the day-to-day needs of residents.
· To ensure that development is compatible with the desired future character of the zone.
· To encourage best practice in the design of low-density residential development.
· To promote ecologically, socially and economically sustainable development and the need for, and value of, biodiversity in Gosford.
· To ensure that non-residential land uses do not adversely affect residential amenity or place demands on services beyond the level reasonably required for low-density housing.
The proposal will not impact on the consistency of the approved development with the objectives of the R2 Low-density Residential zone. The proposal will continue to provide for a low-density residential environment whilst providing for the housing needs of the community and will not impact on the character of the area or the character of the approved development.
In this instance, it is considered that the proposal is consistent with the stated objectives of
the zone and consistent with the principles of Ecologically Sustainable Development as
specified within the Local Government Act 1993.
Development Standards
An assessment of the proposed development against the relevant planning controls is
detailed below.
|
Development Standard |
Required |
Proposed |
Complies with Controls |
Compliance with Objectives |
|
Clause 4.3(2) – Height of Building (HOB) |
8.5m |
8.3m |
Yes |
Yes |
|
Clause 4.4(2) – Floor Space Ratio (FSR) |
0.5:1 |
0.457:1 |
Yes |
Yes |
The proposal is consistent with the relevant development standards of the GLEP 2014.
Gosford Local Environmental Plan 2014 - 5.5 Development within the Coastal Zone
The provisions of Clause 5.5 of Gosford Local Environmental Plan 2014 (GLEP 2014) require Council to consider matters in relation to the Coastal Zone. The Coastal Zone is an area defined on maps issued by the NSW Department of Planning & Environment and the subject property fall within the zone. The relevant matters have been considered in the assessment of this application and are considered consistent with the stated aims and objectives.
The proposal was referred to the Coastal Management section of Council. No objections were raised in relation to the proposal on the foredune of Pearl Beach subject to conditions.
Gosford Local Environmental Plan 2014 - 7.1 Acid Sulfate Soils
This land has been identified as being affected by the Acid Sulfate Soils Map and the matters
contained in clause 7.1 of Gosford Local Environmental Plan 2014 have been considered. The
site contains Class 4 Acid Sulfate Soils. In this instance, the proposed works are not considered to impact on Acid Sulfate Soils. Notwithstanding this, consent conditions are recommended for action to be taken if Acid Sulfate Soils are encountered during construction. Refer to Condition 4.12.
Gosford Development Control Plan 2013
It is noted that Gosford Development Control Plan 2013 (GCDP 2013) provides objectives, design criteria and design guidance on how development proposals can achieve good design and planning practice.
An assessment of the proposed development against the relevant chapters of GDCP 2013 is
provided in a Compliance Table below. Despite resulting in some variations with the requirements of Chapter 5.10 Pearl Beach Residential Development of GDCP 2013, it is concluded the development is appropriate in the locale.
Additional detail is provided on the following relevant chapters of the GDCP 2013:
Chapter 2.1 Scenic Character
The proposal is subject to the provisions of Gosford Development Control Plan (GDCP) 2013 Chapter 2.1 – Character and clause 2.1.3 provides for the following objectives:
1. Protect and enhance environmental character that distinguishes Gosford City’s identity, and
2. Enhance the City’s identity by development that displays improved standards of scenic, urban and civic design quality.
The site is located within the character area: Pearl Beach 1: Ocean Beachfront of Gosford
Development Control Plan 2013 (GDCP 2013) Chapter 2.1 Character.
The existing character (summarised) is:
· A predominantly low-density residential foreshore almost totally cleared of original vegetation, situated on gentle slopes at the crest of an exposed foredune facing an ocean beachfront, forming a prominent backdrop to the Hawkesbury rivermouth and to the surrounding suburb.
· Facing an ocean beach, the original regular pattern of medium-frontage lots has survived, but the effective area of these medium-sized allotments has been reduced substantially by foredune erosion. Most original seaside bungalows have been replaced by large new houses and a scattering of dual occupancies.
· Buildings are oriented towards waterfront views, predominantly large new brick and timber houses, generally of two storeys with wide frontages and a variety of terraces and balconies designed to capture panoramic ocean views. New buildings have narrow side setbacks and have adopted a consistent foreshore setback, creating the appearance of a continuous wall of buildings along the foreshore.
· Set behind the planted foredune, waterfront gardens are generally small open areas of turf flanked by hedges of low shrubs planted along the side boundaries, occasionally supporting tall Norfolk Island pines. Along the street frontage, a variety of building setbacks and stepping floorplans provide leafy garden areas, planted predominantly with native trees and shrubs, maintaining the informal atmosphere that was established by the original coastal bungalows and their gardens. Generally, garages and carports are integrated discretely within building facades, and some gardens are surrounded by courtyard walls or low front fences.
The desired character statement for this locality (summarised) recommends that:
· These should remain low-density residential foreshores where future development does not dominate the informal scenic quality of prominent backdrops to Gosford City’s ocean beaches, and new dwellings are surrounded by leafy gardens that provide protection from storm surges and shoreline erosion.
· Avoid the appearance of a continuous wall of foreshore development by setting all building works back from exposed fore-dunes, and by surrounding buildings with leafy gardens. Incorporate waterfront and street setbacks that are similar to the surrounding properties and provide at least one wide side setback or step the shape of front and rear facades.
· Minimise the scale and bulk of new buildings or additions to existing dwellings. Use irregular floorplans to create well-articulated forms, such as linked pavilions that are separated by courtyards and capped by individual roofs. All roofs should be gently-pitched to minimise the height of ridges, flanked by wide eaves and verandahs to disguise the scale of exterior walls. Facing the beach, disguise the impact of upper storeys by a combination of extra setbacks from the ground floor plus shady balconies and verandahs.
· Reflect elements of traditional coastal architecture and minimise the scale of prominent facades by using extensive windows and lightly-framed verandahs plus a variety of materials and finishes rather than expanses of plain masonry. All dwellings should display a “street address” with verandahs or decks, and living rooms or front doors that are visible from the roadway. Avoid wide garages that would visually-dominate any front façade or block views between the dwelling and the street. Locate and screen all balconies or decks to maintain existing levels of privacy and amenity that are enjoyed by neighbouring dwellings.
The proposed development does not change the use and complies with the development controls. The proposal is consistent with the desired future character and densities of the area and is considered to comply with the objectives of Chapter 2.1 Character which are to protect and enhance environmental character of the development site and surrounding area for the following reasons:
· The proposal is for a new dwelling house which is consistent with the current use and will remain low-density residential and will maintain dune vegetation that provides protection from storm surges and shoreline erosion.
· The overall building L-shape floor plan and site positioning (staggered from adjoining neighbouring building lines both at the front and rear facades) design is consistent in height, bulk and scale with adjoining properties and with other recent development in the immediate surrounding locality.
· The architectural design of the dwelling reflects extended setbacks, simple roof design and building articulation reflective of traditional coastal architecture with extensive windows (where appropriate) and lightly framed varandahs and terraces.
· The 2-storey L-shaped building floor plan incorporates the desired future design element by maintaining wide side setbacks fronting Corel Crescent and north neighbouring property to avoid a continuous wall appearance. This dwelling design (including the pool position) provides a traditional pavilion like style building with linking terraces and pergolas that provide the use of various building elements and materials that permit a light-weight appearance with a variety of transparencies and articulation features. Refer figures 12 and 14.
· The proposal provides the desired “street address” with layered walls heights, verandahs, decks and landscaping visible from Coral Crescent characteristic of surrounding development.
As such, it is considered the proposal will not adversely impact on the character of the streetscape or the character of the surrounding area.
Chapter 2.2 Scenic Quality
The proposal is located within the Broken Bay geographic unit and the Pearl Beach landscape
unit, which is of state significance and described as follows:
· The Pearl Beach Landscape Unit is an isolated beach-side residential and recreational settlement contained within a natural heavily vegetated backdrop and surrounded by National Park landscapes of steep wooded hills on the foreshore of Broken Bay. Urban form is largely of traditional beachcomber, bungalows and more recent residential development, mostly of similar scale, with an almost tropical setting. The area is distinctively different from nearby Patonga, more closely settled, smaller in extent and heavily vegetated.
· For the Pearl Beach Landscape Unit area, the need to conserve the consistency of small-scale residential development, informal street alignments and paths, low speed traffic environment, vernacular form and compact scale of village.
· Detracting elements in the landscape are overscale and bulky modern beach side buildings.
The principle aim of the Scenic Quality Development Control Plan is to provide guidelines for
the interpretation and management of the scenic quality of the area and provides for the
following objectives:
i to provide a detailed assessment of Gosford's landscape character which highlights the diversity between and within landscape units;
ii to detail the components of that landscape character;
iii to provide a comparative ranking of the landscapes; and
iv to develop appropriate guidelines for the management of the landscape character.
Overall, the proposal is considered to have appropriate context and compatibility within the surrounding neighbourhood character and immediate streetscape of the area and is considered to appropriately respond to desired characteristics, topography and natural features of the site.
The proposal will not impact on the scenic value or quality of the area, overpower the natural elements of the beach and surrounding natural backdrop.
The proposal will present a building, landscaping and foredune protection to Coral Crescent and the beach frontage respectively consistent with adjoining neighbouring properties. As such, the proposal is consistent with the stated objectives of GDCP 2013 Chapter 2.2 - Scenic
Quality.
Chapter 5.10 - Pearl Beach Residential Development
The proposal has been assessed in accordance with the relevant provisions of GDCP 2013
Chapter 5.10 Pearl Beach Residential Development at detailed in the table below:
Table 2 – GDCP 2013 Chapter 5.10 Pearl Beach Residential Development
|
Development Control |
Required |
Proposed |
Compliance |
|
5.10.5 Protection of Natural Vegetation and Fauna |
An Erosion and Sediment Control Plan is required. The wildlife habitat of the Koala is protected. |
· The proposal is accompanied by an Erosion & Sediment Control Plan prepared by Acor Consultants. · Landscape Plan to incorporate native plantings. · Existing Beach Foredune to remain untouched, no loss of existing vegetation. · No impact on Koala habitat. |
Yes |
|
5.10.6 Tree Cover |
Retain, or replace existing tree cover to ensure the predominant landscape quality of the locality is maintained. |
The proposal nominates the removal of (1) tree from the road reserve and (2) small ornamental within the front yard. · Replacement Street tree and Standard tree protection conditions are provided. Refer Conditions 1.1, 3.12, 4.12, 5.16, 6.4 & 6.5. |
Yes |
|
5.10.7 Site Development |
· Site coverage max 40% total site area
· Minimum open space 50% total site area
· Maximum FSR 0.4:1
· Maximum 10% site area to be hard surfaces
· Maximum site coverage 300sqm on any site |
· Site coverage – 220.96sqm or 32.74%
· Open Space – ground level approximately 518.08sqm plus upper deck 30.4sqm = 156sqm or 81.30%
· Maximum FSR - 0.457:1 o The development proposes a maximum FSR of 0.457:1 and complies with the development standard of 0.5:1 in the GLEP 2014 however exceeds the FSR of the DCP for the Pearl Beach area by 37.35sqm or 5.53%.
· Proposal provides balance between hard surfaces and soft landscaping to maintain beach frontage character.
· Site Coverage – 156.62sqm
|
Yes
Yes
No Variation supported, refer to comments below
Yes
Yes |
|
Minimise Site Disturbance |
· The extent of site disturbance is limited to excavation for the proposed garage area and structures at the front of site. · No change to natural ground level – no cut and fill required for remainder of site. · Retention of existing beach front lawn and foredune vegetation. · New driveway access width is less than the existing driveway. |
Yes |
|
|
Erosion Control |
· To be implemented in accordance with the Erosion & Sediment Control Plan prepared by Acor Consultants. |
Yes |
|
|
5.10.8 Streetscape |
The size and shape of development, the extent of cut and fill, the type and colour of building materials, the design of roofs (in terms of materials, colour, pitch, etc) and the amount and type of landscaping: · are to be compatible with the character and scale of surrounding residential development. · do not intrude or otherwise impact upon the natural landscape, particularly on the beachfront, hillsides, headlands and on ridgetop locations and adjoining public reserves. · Textured face brick is to be avoided. |
The proposal is generally consistent with the character and scenic quality of the area.
The proposal has total height in line with the adjoining neighbouring dwellings although has minor intrusion into the Pearl Beach building envelope however will not have adverse amenity impacts on adjoining development and is not discernible to the streetscape character.
The built form steps back by 7.00m to the north boundary and 18.00m to the west boundary to allow for good residential amenity features (sun capture, good private open space including pool, terraces and landscape and visual privacy etc.).
The proposal retains the existing beach front lawn and foredune vegetation.
New street and site trees as well as retaining of site trees which are prominent features of the local streetscape will be planted conserved respectively on the property and in front of the property in the road reserve. |
Yes |
|
5.10.9 Building Setbacks and Building Lines |
Front setback 6m
|
Proposed front setbacks – 4.60m and 18.00m · Ground level of existing dwelling garage footprint is similarly retained. · Width of dwelling including stairs at street frontage is 6.93m. · L-shape floor plan is variable and consistent with existing adjoining neighbouring properties building lines. · Front entry, landscaping, terrace, pergola and balcony building elements provide a layered effect to front elevation and streetscape. |
No Variation supported, refer to comments below
|
|
Rear - foreshore setback 10.00m |
Rear setback – 20.00mm and 20.80m |
Yes |
|
|
Side setback for building height up to 3.8m – 1m, if the lot has an area of at least 450sqm – 900sqm. |
Side setbacks - 1.20m and 7.10m |
Yes
|
|
|
Side setback for building height over 3.8m – 1m plus ¼ of building height over 3.8m – 2.13m |
· Northern boundary first floor setback – 18.00m (for 10.40m) and 1.20m (for 9.17m) · Minor encroachment into building envelope – refer Figure 6 · Southern boundary first floor setback – 1.80m (for 9.0m) and 1.20m (for 5.30m) |
No Variation supported
|
|
|
5.10.10 Building Styles |
Building form should be compatible with the scale and character of development in Pearl Beach
Buildings should be articulated by breaking up the building mass to reduce their apparent size.
Sympathetic development
|
· The proposal is generally consistent with the scale and desired character of the area. · Provides building articulation incorporating terraces, decks with pergolas to enhance the articulation of the built form. · Terraces and balconies enable passive surveillance of public spaces from upper floor deck at site street and beach frontages. · Development does not interrupt the streetscape of Coral Crescent – provides consistency in HOB and building setbacks to adjoining neighbouring properties, No. 34 and 38 Coral Crescent. · Proposal respects privacy to adjoining development providing extended setbacks (18.00m to the northern boundary), 2.0m high privacy screening to deck areas and Green screen to both north and south elevations. · L-shaped building mass aligns with the adjoining 2-storey neighbouring dwelling building lines and articulates stepped side elevations that facilitate to retain view corridors and sunlight to neighbouring properties. |
Yes |
|
5.10.11 External Materials, Colours & Finishes |
· External materials and finishes complement the natural environment and streetscape character · Avoid undue glare |
Materials schedule provided and provides a unified modern concept, low reflectivity and designed to blend into surrounding locality in that: · External materials and finishes complement the natural environment and coastal architecture style homes. · Use of pergolas, terraces and balconies provides an articulation and combination of solid mass and transparencies proper of pavilion style · Avoids expanses of reflective/brightly coloured materials · Landscaping and paved areas concentrated in entry and pool area · Driveway and carparking areas shall not dominate streetscape, layered landscaping proposed. |
Yes
|
|
5.10.12 Privacy |
|
· 2.0m high privacy screening on upper floor comprising vertical metal louvres prevents overlooking and provides privacy from first floor deck to adjoining residences at the rear side boundaries. Additionally, a green screen wall has been incorporated to south external stairs for additional neighbouring property privacy. · Where there is no privacy screening – highlight windows prevent overlooking from first floor level. · Large setback to northern boundary of 7.10m including existing and proposed landscaping provides privacy. |
Yes
|
|
5.10.13 Views |
Development to maintain, within reason, the views and outlook of existing buildings. |
· The siting of the 2-storey L-shaped building footprint provides articulation and transparencies to both minimise windows to the northern and southern longitudinal elevations and where high-level windows are applicable. Additionally, vertical privacy louvres have been incorporated to ensure that visual corridors are maintained as desirable outlook. |
Yes |
|
5.10.14 Solar Access |
Development should not unreasonably reduce solar access to living and recreational areas on adjacent properties. |
• Shadow diagrams have been submitted with the application which shows the development maintains a reasonable level of sunlight for the residents and neighbouring properties between 12.00 noon and 3.00pm during the winter solstice, 22 June • Site design and building orientation of living and recreational areas achieves the objectives of the controls. • The proposed development will not have any excessive adverse overshadowing effects on adjoining residential development. • Solar access to living areas is maintained by the provision of east and west facing windows allowing solar access in the mornings and afternoons. |
Yes
|
|
5.10.15 Noise |
· Noise level, measured at any point of the boundary of a site, shall not exceed 5dBA above background noise level. · Use may be made of screen barriers or noise mitigation techniques, to Council’s approval
|
· The dwelling has been designed to retain and minimise noise by concentrating the private open spaces to two core areas, north -west pool area and beachfront. There are limited and/or high windows to both longitudinal elevations facing adjoining neighbouring properties. · The Applicant has considered the concerns raised in submissions by reducing the size of the deck, increasing the setback to the rear boundary and providing privacy screens that allow vertical movement and transparency as well as to provide privacy. · Floor plans indicate that services and pump equipment have been located away from neighbouring properties notwithstanding this, appropriate conditions of consent have been included on draft conditions of consent. Refer Condition 5.3 & 6.10 |
Yes
|
|
5.10.16 Construction Controls |
Minimise disturbance to neighbours and the environment during construction. |
· Construction hours - conditioned · Appropriate method for removal of any asbestos if encountered – conditioned · Tree protection measures – conditioned |
Yes |
|
5.10.17 Landscaping & Stormwater |
· Maintain and enhance landscape quality of the village · Decrease stormwater run-off by the inclusion of soft landscaped areas. · Ensure the natural environment is not threatened by development. · Avoid curb and guttering |
· Landscape concept plan provided, including the planting of local native species where appropriate. · Existing trees onsite are retained and tree protection measure conditioned · Stormwater Management Plan provided –designed by hydraulic engineer |
Yes |
|
5.10.19 Car Parking |
· Dwellings less than 125m2 - 1 car parking space · Dwellings greater than 125m2 - 2 car parking spaces |
The proposal provides 2 garage parking spaces and is consistent with these provisions in clause 3.1.5 Car Parking and Access and clause 7.1.3.2 Schedule of requirements in the provision of 2 car space for a dwelling that has 4 or more bedrooms. |
Yes |
The proposal is considered satisfactory notwithstanding minor areas of non-compliance with
the following:
Clause 5.10.7 - Site Development
Clause 5.10.7 (b) (iii) requires the floor space ratio (FSR) of the development on the land not
exceed 0.4:1 which equates to an allowable gross floor area of 269.88sqm. The development
proposes a floor area of 307.23sqm which is an FSR of 0.457:1, it complies with the development standard of 0.5:1 in the GLEP 2014 however exceeds the FSR control for the
Pearl Beach area by 37.35sqm or 5.53%. As such non-compliance is considered on a merit-based assessment.
The purpose of the clause is to control the density of the development on the site in combination with other controls for site coverage and open space areas.
Comment: Overall, the development has an exceedance of the floor area of 37.35sqm (or 5.53%) resulting in a floor space ratio (FSR) of 0.457:1 which is greater than the allowable FSR of 0.4:1. It is noted that the objectives for site development stated below are achieved notwithstanding the minor non-compliance:
i. The natural character of the locality is maintained by reserving a significant portion of the site for landscaping. Prominence is given to the natural environment over the built environment.
ii. Minimise intrusion of buildings into the landscape by distributing landscaped areas in such a way as to screen and break up the bulk of the buildings. Take account of appearance from the street, from surrounding properties, public places and surrounding National Park.
iii. Sufficient unsurfaced area shall be retained for site absorption of rainwater to minimise the effect of run-off on neighbouring properties, on the creek systems and ultimately on the frontal dune and the beach itself.
The development FSR non-compliance is minor, and the use remains the same which will not provide additional densification. In terms of the building design of the dwelling, the L-shaped floor plan and use of terraces and pergolas permits that this additional floor area and mass does not perceptibly impact the overall bulk, scale, and articulation. It is not visible from the street nor is not detrimental to the streetscape or surrounding neighbourhood character. The proposal retains the existing beach front lawn and foredune vegetation as well as incorporating new trees and landscaping which maintains a good balance between hard surfaces and soft landscaping to both the streetscape and beach frontage characters respectively.
Council is satisfied that the proposal is consistent with the zone objectives and as such that the proposal is in the public interest. The contravention of the FSR control does not raise any matter of significance for State or Regional environmental planning given the nature of the development proposal. Strict compliance with the prescriptive FSR control is unreasonable and unnecessary in the context of the proposal in the circumstances of this case. The proposed development meets the underlying intent of the control and is a compatible form of development that does not result in unreasonable environmental amenity impacts and the proposal is worthy of support.
Clause 5.10.9 - Building Setbacks and Building Lines
The proposed development does not comply with the following:
Clause 5.10.9 Building Setbacks and Building Lines
· subclause b) i) – the building does not provide a minimum setback of 6m from the street and rear boundary.
· Subclause b) iv) – a dwelling house with a building height of more than 3.8m and any carport, garage, balcony, deck, patio, pergola, terrace or verandah that is attached to the dwelling house must have a setback from a side boundary of at least the sum of:
a. the amount of the setback specified for the relevant sized lot in subclause 5.10.9b(iii) and
b. an amount that is equal to one-quarter of the additional building height above 3.8m.
Front Setback Comment: The proposals L-Shaped building footprint has front setback to Corel Crescent of 4.60m and 18.00m. The building alignment of the proposal located towards the southern boundary is 4.60m (for 6.93m or 45.47% of front boundary) resulting in a variation of 1.40m or 20% on both ground and first floor levels and is consistent with the setback of the dwelling at 34 Coral Crescent. The building alignment of the proposal to the northern boundary is 18.00m from the street frontage on both ground and first floor levels and is consistent with the setback of the dwelling at 38 Coral Crescent, refer figure 12. As such it is noted that:
· The adoption of this floor plan footprint is consistent with both adjoining properties, allows a good transition and alignment between neighbouring properties and their existing building lines.
· There is good site planning design of entry into the residence, private open space (pool and terrace areas including first floor balconies and pergolas) and landscaping that allow a good natural break-up, articulation and transparencies of the building which retains the sense of openness and space between built elements. Adding to the amenity of locality.
· The car garage is integrated into the building footprint and used as terrace area with landscaping consistent with the size, bulk and scale of dwellings in the area and streetscape character.
· There are no adverse impacts on views, privacy and solar access to adjacent properties.
Side Setback Comment: Residential development requires a setback of 1m for a building height of up to 3.80m. For any part of the building over 3.8m, 1m plus an amount that is equal to one-quarter of the additional building height above 3.8m; in this instance is 2.13m. The proposal has a 1.20m setback to the northern side boundary a variation of 0.93m or 56.33% (for 9.17m or 20.72% of the total 44.27m site length) and a 1.80m to the southern side boundary, a variation of 0.33m or 15.49% (for 9.0m or 20.72% of the total 44.27m site length) respectively.
It is noted that the guidelines in Chapter 5.10 of the GDCP 2013 are more restrictive that the controls for dwellings under Chapter 3.1 Dwelling Houses, Secondary Dwellings and Ancillary Development of GDCP 2013. Chapter 3.1, clause 3.1.3.1c provides setback guidelines for lot greater than 12.5 wide at the building line and states:
· for any part of the building with a height of up to 4.5m—0.9m, and
· for any part of the building with a height of more than 4.5m—0.9m plus one quarter of the height of the building above 4.5m.
Notwithstanding the non-compliance, the built form provides extended setbacks for an important portion of the site at the front, side and to the rear beach front. Additionally, the proposal steps back on the south façade to articulate building elements such as an external stair which has been provided with a green wall for additional privacy to neighbouring property.
The purpose of setbacks is to provide reasonable amenity for both existing and proposed
dwellings. The non-compliance in this instance is considered to not have any unreasonable amenity impact on adjoining and proposed development. The side setbacks of the proposal do not have adverse impact on views, privacy and solar access of any adjacent properties.
The proposal is considered to have comparable setbacks to adjoining and nearby properties and found to be an appropriate response to site area constraints and is considered reasonable development of the site. The proposal complies with the objectives and is supported.
Chapter 6.2 Coastal Frontage
The development application is accompanied by a Coastal Engineering report prepared by Horton Coastal Engineering, dated 17 November 2021 in support of the proposal. The Coastal Frontage chapter provides guidance for the development that has frontage to a coastal beach in order to minimize risk from coastal hazard.
All structures constructed within a designated Coastal Hazzard Area shall:
i. be compatible with the coastal hazards identified;
ii. be founded landward of the coastal building line;
iii. not give rise to any increased coastal hazard;
iv. be designed to not be damaged by the designated hazard;
v. give consideration to the effects of larger events than the designated hazard;
vi. be constructed in a manner which overcomes any problem from the coastal hazards of run-up and inundation; and
vii. be set back as far landward as practicable.
The plans and report were reviewed and assessed by Council’s Coastal Management Section. No objections were raised in relation to the conclusions and recommendations of this documentation subject to conditions.
Chapter 6.3 Erosion and Sediment Control
Erosion and sediment control plan provided. Conditions applied.
6.4 Geotechnical Requirements for Development Applications
The property is mapped as being in a medium hazard landslip risk. The proposal is supported by a Geotechnical report prepared by Douglas Partners, dated November 2021 in support of the proposal. These matters have been considered by the Coastal Management section of Council and are supportive of the application subject to conditions.
Chapter 6.6 Preservation of Trees or Vegetation
The controls require the protection of trees on privately owned land that contribute positively
to the amenity, scenic landscape characteristics and ecological values of the Central Coast
Local Government Area.
The application is accompanied by a concept landscape plan which intends to remove one (1) tree from the road reserve and two (2) from within the front property line. The application was assessed by Council’s Tree Protection Officer who commented as follows:
“The street tree is a small Eucalypt located under power wires that has termite activity. The two (2) smaller trees within the property are ornamental plantings between 3 to 4m high.
Plans propose planting a Jacaranda on the road reserve, however that species of tree will become too large for planting under power wires. It is recommended that the proposed street tree species be changed to a smaller native species such as Callistemon viminalis or Blueberry Ash. Therefore, a replacement street tree of a local species is recommended.
It was further noted that excavation will be very close to small native planting within the front yard of the southern adjoining property (not shown on plan). Those small trees consist of Callistemon (4m) and Banksia (2m). Although very close, as the trees are young it could be possible for them to remain viable with the works providing all care is taken during construction, therefore a standard replacement street tree condition and tree protection condition respectively have been provided”.
As such, the application has been reviewed by Council’s Tree Protection Officer who has determined the proposal is supported subject to conditions of consent.
Chapter 6.7 Water Cycle Management
The application is accompanied by Water Cycle Management concept drainage design prepared by Accor Engineering in support of the application. These matters have been considered consistent with Chapter 6.7 – Water Cycle Management of the GDCP 2013 and conditions of consent included in the development consent.
Chapter 7.2 Waste Management
The application is accompanied by a Waste Management Plan has been prepared by Michael Leavy, dated 7 October 2020. Appropriate conditions will be imposed on Schedule 1 of the Draft Notice of Determination requiring the development to comply with Council’s Technical Specification Waste minimisation and Management regarding demolition and construction waste. Refer to Condition 1.1, 3.6, 4.12, 4.19, 6.7 & 6.8.
Other Matters for Consideration
Development Contribution Plan
The land is subject to Central Coast Council Regional Section 7.12 Development
Contributions Plan 2019. Development that is not subject to a section 7.11 contribution
under any other contributions plan adopted by the Council under the Environmental
Planning & Assessment Act 1979 may be subject to levy of section 7.12 contributions unless is development that is exempt under Clause 1.5 of this Plan.
The proposal is for the construction of a new a dwelling house and is exempt under Clause 1.5. Therefore, no contributions are applicable.
Planning Agreements
The proposed development is not subject to a planning agreement / draft planning agreement.
Referrals
|
Internal Referral Body |
Comments |
|
Coastal Engineering |
Supported, subject to conditions, refer Condition 2.3. |
|
Council Tree Protection Officer |
Supported, subject to conditions refer Conditions 4.10, 4.11,.4.12 & 5.16. |
|
Water and Sewer |
Supported, subject to conditions, refer Condition 1.1, 2.8 & 5.6. |
|
Vehicle Access Crossing (VAC) Officer |
Supported, subject to conditions, refer Condition 2.4, 5.4 & 6.6. |
Public Submissions
The development has been notified in accordance with the provisions of Gosford
Development Control Plan 2013. A total of 49 public submissions were received in relation to the application.
The application was amended during the assessment following site inspection of the
adjoining neighbours properties to the subject site. The amendments were not formally
notified to all objectors. The amendments were notified to and comments received from the
immediate neighbours subject of the site inspection.
Those issues associated with key issues have been addressed in the above report. The
remaining issues pertaining to various concerns were addressed in the assessment of the
application pursuant to the heads of consideration contained within section 4.15 of the
Environmental Planning and Assessment Act 1979.
A summary of the submissions objecting to the proposal is detailed below.
1. …It is as though the designers of this proposal were unaware of the specific provisions in the DCP for Pearl Beach as there are so many aspects of non-compliance.
…This Proposed building is not compliant with the guidelines of the Pearl Beach LEP.
…It does not comply with the various planning regulations.
…The height and scale of the development is pushing all the boundaries/ exceeding the local codes…
Comment: Noted. The development application has been considered under the provisions of Chapter 5.10 of Gosford Development Control Plan 2013 (GDCP 2013 which contains site specific controls for residential development in Pearl Beach that are applied to new buildings
and alterations and additions to existing buildings when development consent is sought.
A comprehensive assessment of Chapter 5.10 of the GDCP 2013 was carried out and detailed within in this report. The proposal results in non-compliances for floor space ratio and building setbacks development controls. Notwithstanding the stated non-compliances, the proposal is consistent with the objectives of the R2 zone and desired character of the area, in line with size, bulk and scale of adjoining properties and surrounding development and is not considered to have adverse impact on the natural or built environment or the privacy and amenity of surrounding and adjoining properties.
The variations have been considered on its merits. Development standards contained within DCP’s are automatically given flexibility by virtue of the legislative framework under which they operate and in this instance the proposal is supported subject to conditions.
2. …There is considerable encroachment on the beachside of the property where the building is beyond the coastal building line.
…The houses from number 20 to the original building on number 42 were all aligned to the coastal building line…They need to amend their proposal and fit their design to the coastal building.
…It flagrantly breaches the coastal building alignment to which all other developments have adhered…Bring it back in line with all the other houses on the eastern side of Coral Crescent…
…The development does not comply with the coastal building alignment.
…This building is in front of the coastal building line, by approx. 5 metres which I thought was against the coastal development plan and - would result in loss of views, loss of sunshine, loss of amenity, and loss of privacy to both neighbours and beach goers…
Comment: The proposal was modified during the assessment of the subject application as result of the objections by immediate neighbours to address encroachment on the beachside which in turn raised further privacy and amenity concerns. The amended architectural plans demonstrate that the proposals building footprint has been reduced to be now located behind the Coastal Building Line and no closer to the beach than the adjoining dwelling at 34 Coral Crescent. The ground floor (beach façade) building line is now approximately 1300mm behind the first floor of 34 Coral Crescent and the first-floor building line (beach façade excluding balconies) is now 90mm - 850mm behind the first floor of 34 Coral Crescent. It is noted that the reduction of both the ground and first floor footprints are now located behind the existing dwellings building line, equating to an extended rear foreshore setback of 20.00m as opposed to the required 10.00m DCP 2013 development control. Furthermore, the existing foreshore lawn and vegetation respectively are to remain untouched.
3. ….We are concerned that the proposed new development at 36 Coral Crescent Pearl Beach may be intended as a dual occupancy on the dune front which is not zoned for this purpose.
…The development is a dual occupancy and not a single residence.
…The separated garages of the new development appear to support a dual occupancy…
Comment: The development application has been lodged as a single dwelling house. It is noted that Dual occupancy development is not a permitted use in the R2 zone under GLEP 2014. Under the draft consolidated Central Coast Local Environmental Plan dual occupancy development will be permitted in the R2 zone however subject to lodgement and merit assessment. Notwithstanding this, the following conditions of consent are recommended and included as part of Schedule 1 Draft Conditions of Consent:
· Do not let, adapt or use the dwelling / building for separate occupation in two or more parts.
· Do not provide cooking facilities to the first-floor upper level of the dwelling house.
4. …Triple car garage is not in keeping with the streetscape despite 1 older development in the street where only 2 garage doors are actually garages.
…Triple car garage is not in keeping with the streetscape despite 1 older development in the street where only 2 garage doors are actually garages.
Comment: As previously mentioned, the proposal was modified during the assessment of the subject application as result of Council VAC Officers non-supportive comments to two driveways on the road reserve and objections by neighbours to address the triple garage. As such, the amended architectural plans now demonstrate that only one single driveway on the road reserve with one double car garage has been incorporated to the dwellings floor plan and final architectural drawing set.
5. …Currently there is a bus stop located in front of one of the proposed garages.
Comment: It is noted that the bus stop is on a local road and constitutes a bus sign attached to electricity pole, there is no formal shelter. It is a Busway Woy Woy to Pearl Beach No 54 (Loop) Service and they have reported that the bus stop location is mapped by them to be in-front of No 34 Coral Crescent. Additionally, after consultation with Council’s Traffic Committee Officer it was advised that bus stop relocation is possible and can be moved within the general immediate vicinity. The applicant has agreed to review this matter in due course and if so required will coordinate and follow proper due process to relocate the bus stop within the vicinity.
6. …The bulk of the building dominates the neighbouring houses, and is not in keeping with other houses along Coral Crescent.
…The size and scale of the development is not in keeping with the area.
…Removal of native tree and bus stop needs significant consideration as to the benefits to be gained.
…Massive overdevelopment of the site, bulk, scale is excessive, intrusive, out of keeping with row of adjoining houses
Comment: The proposal complies with the allowable building height stipulated in GLEP 2014
of 8.5m (the proposal has a maximum roof height of 8.3m) and the maximum floor space ratio (FSR) for the site stipulated in Gosford Local Environmental Plan 2014 (GLEP 2014) which is 0.5:1. The subject site has a total area of 674.7sqm and gross floor area of 307.23sqm which results in FSR of 0.457:1 and complies with the development standard.
The development control plan Chapter 5.10 Pearl Beach Residential Development of GDCP 2013 provides further guidance for development within the Pearl Beach area which requires consideration to the bulk of buildings to address visual amenity of the street, reserves, neighbours, the balance between vegetation cover and built form. The DCP further reduces the FSR on a site to 0.4:1 (cl 5.10.7b).
As previously outlined, the proposal does not comply with the provision having variation of 37.35sqm or 5.53%. However, the FSR does not stand alone in the assessment of overdevelopment and is to be considered in combination with controls in the DCP for site coverage, open space and vegetation cover to control the density of development on the site. Whilst the proposal has minor non-compliance with the FSR it complies with the other density provisions.
As such, the proposal is consistent with the objectives of the R2 zone and desired character of the area, in line with size, bulk and scale of adjoining properties and surrounding development and is not considered to have adverse impact on the natural or built environment or the privacy and amenity of surrounding and adjoining properties.
Likely Impacts of the Development
Section 4.15 (1)(b) of the EP&A Act requires consideration of the likely impacts of the
development including environmental impacts on both the natural and built environments,
and social and economic impacts in the locality.
a) Built Environment
The subject site is zoned R2 Low Density Residential under GLEP 2014 and adjoins residential
developments comprising single and 2-storey dwellings. A thorough assessment of the
impacts of the proposed development on the built environment has been undertaken in
terms of GLEP 2014 and GDCP 2013 compliance. There will be minimal amenity impacts as a
result of the non-compliant floor space ratio, building setbacks and building lines in Chapter
5.10 Pearl Beach Residential Development. The proposed built form is considered acceptable
in the context of the site. Despite these non-compliances the proposal will not detract from the size, scale and bulk present in the immediate vicinity and neighbourhood.
b) Natural Environment
The proposed development is not considered to have any adverse impacts on scenic quality of Pearl Beach or the streetscape of Coral Crescent. The submitted engineering reports and concept plans provide an overall design concept that specifically have assessed the development is in line with the sensitive coastal area. The proposal is satisfactory in relation to impacts on the natural environment as identified throughout this report. There will be no significant impact upon the natural environment as a result of the proposal.
c) Economic Impacts
The proposed development will contribute to the supply of an upgraded housing need and contribute to the amenity of the immediate the locality and is satisfactory from an economic perspective.
d) Social Impacts
No social impacts will arise from the approval of this residential development.
Suitability of the Site for the Development
The site is zoned is zoned R2 Low Density Residential under GLEP 2014. The proposed
development is permitted in the zone with development consent. The proposal complies
with the provisions of GLEP 2014 and despite minor non-compliances is generally in keeping
with the provisions of Chapter 5.10 Pearl Beach Residential Development of GDCP 2013 and
raises no adverse impacts or consequences in regard to the principles of Ecologically
Sustainable Development.
There are no environmental hazards which would prevent development of the site, existing utilities are available to the site and is located near public transport facilities as well as public recreation / community facilities.
The site is not subject to flooding or bushfire constraints. As such the site is considered
suitable for this type of development subject to conditions.
Ecologically Sustainable Principles
The proposal has been assessed having regard to ecologically sustainable development principles and is considered to be consistent with the principles.
The proposed development is considered to incorporate satisfactory stormwater, drainage and erosion control and the replacement of vegetation where possible and is unlikely to have any significant adverse impacts on the environment and will not decrease environmental quality for future generations. The proposal does not result in the disturbance of any endangered flora or fauna habitats and is unlikely to significantly affect fluvial environments.
Climate Change
The potential impacts of climate change on the proposed development have been considered by Council as part of the assessment of the application.
This assessment has included consideration of such matters as potential rise in sea level; potential for more intense and/or frequent extreme weather conditions including storm events, bushfires, drought, flood and coastal erosion; as well as how the proposed development may cope, combat, withstand these potential impacts. The proposed development is considered satisfactory in relation to climate change.
The Public Interest
The approval of the application is considered to be in the public interest. The proposal will It
will not have any adverse impact on the natural environment and will not unreasonably impact the amenity of neighbouring properties.
Political Donations
During assessment of the application there were no political donations were declared by the
applicant, applicant’s consultant, owner, objectors and/or residents.
Conclusion
This application has been assessed under the heads of consideration of section 4.15 of the
Environmental Planning and Assessment Act 1979 and all relevant instruments and policies.
Subject to the imposition of appropriate conditions, the proposed development is not
expected to have any adverse social or economic impact.
Accordingly, the application is recommended for approval pursuant to section 4.16 of the
Environmental Planning and Assessment Act 1979.
Reasons for the Decision
The reasons for the decision as recommended under the assessment of this application are as
follows:
1. The proposal is satisfactory having regard for the relevant environmental planning instruments, plans and policies.
2. There are no significant issues or impacts identified with the proposal under s.4.15 of the Environmental Planning and Assessment Act 1979.
|
1⇩ |
Draft Conditions of Consent 36 Coral Crescent Pearl Beach DA60416 2020 Part 1 |
|
D14934664 |
|
2⇩ |
Amended Redacted
Architectural Plans 36 Coral Crescent PEARL BEACH DA60416 2020 Part 1 |
|
D14832097 |
|
3⇩ |
Concept Coastal Engineering Design 36 Coral Crescent PEARL BEACH DA60416 2020 Part 1 |
|
D14397708 |
|
4⇩ |
Amended WCMP Concept Design 36 Coral Crescent PEARL BEACH DA60416 2020 Part 1 |
|
D14734074 |
|
5⇩ |
Amended Vertical Clearance and WSA Concept Plan 36 Coral Crescent, Pearl Beach DA60416/2020 Part 1 |
|
D14934639 |
|
6⇨ |
Geotechnical Report 36 Coral Crescent PEARL BEACH DA60416 2020 Part 1 |
Provided Under Separate Cover |
D14397709 |
|
7⇨ |
Statement of Environmental Effects 36 Coral Crescent PEARL BEACH DA60416 2020 Part 1 |
Provided Under Separate Cover |
D14452305 |
|
8⇩ |
PUBLIC BASIX Certificate 36 Coral Crescent, Pearl Beach DA60416 2020 Part 1 |
|
D14397704 |
|
3.2 |
DA/60416/2020 - 36 Coral Crescent Pearl Beach - Dwelling House (New), Pool and Demolition of Existing Dwelling |
|
Attachment 1 |
Draft Conditions of Consent 36 Coral Crescent Pearl Beach DA60416 2020 Part 1 |
|
DA/60416/2020 - 36 Coral Crescent Pearl Beach - Dwelling House (New), Pool and Demolition of Existing Dwelling |
|
|
Attachment 2 |
Amended Redacted Architectural Plans 36 Coral Crescent PEARL BEACH DA60416 2020 Part 1 |
|
3.2 |
DA/60416/2020 - 36 Coral Crescent Pearl Beach - Dwelling House (New), Pool and Demolition of Existing Dwelling |
|
Attachment 3 |
Concept Coastal Engineering Design 36 Coral Crescent PEARL BEACH DA60416 2020 Part 1 |
|
DA/60416/2020 - 36 Coral Crescent Pearl Beach - Dwelling House (New), Pool and Demolition of Existing Dwelling |
|
|
Attachment 4 |
Amended WCMP Concept Design 36 Coral Crescent PEARL BEACH DA60416 2020 Part 1 |
|
DA/60416/2020 - 36 Coral Crescent Pearl Beach - Dwelling House (New), Pool and Demolition of Existing Dwelling |
|
|
Attachment 5 |
Amended Vertical Clearance and WSA Concept Plan 36 Coral Crescent, Pearl Beach DA60416/2020 Part 1 |
|
3.2 |
DA/60416/2020 - 36 Coral Crescent Pearl Beach - Dwelling House (New), Pool and Demolition of Existing Dwelling |
|
Attachment 8 |
PUBLIC BASIX Certificate 36 Coral Crescent, Pearl Beach DA60416 2020 Part 1 |
|
Item No: 4.1 |
|
|
Title: DA/60725/2021 - 8 Ghersi Avenue, Wamberal - 1 into 2 Lot Subdivision |
|
|
Department: Environment and Planning |
|
|
25 November 2021 Local Planning Panel Meeting |
|
Reference: 011.2021.00060725.001 - D14936218
Author: Susana Machuca, Senior Development Planner
Manager: Ailsa Prendergast, Section Manager, Development Assessment South
Approver: Andrew Roach, Unit Manager, Development Assessment
|
Summary
An application has been received for 1 into 2 Lot Subdivision for Lot 33 DP20817, 8 Ghersi Avenue, Wamberal.
The development application has been referred to the Local Planning Panel as there is proposed variation to the minimum lot size development standard of Gosford Local Environmental Plan 2014. The variation is greater than 10% (14%, or 77.5 sq metre variation proposed). Two submissions have been received.
The application is recommended for approval, subject to conditions.
Applicant Tim Shelley Owner B Lawrence Application No DA60725/2021 Description of Land LOT:33 DP:20817, 8 Ghersi Avenue WAMBERAL Proposed Development 1 into 2 Lot Subdivision Site Area 1081sqm Zoning R2 Low-density Residential Existing Use Single-storey Dwelling House Employment Generation No Estimated Value Nil |
1 That the Local Planning Panel assume the concurrence of the Secretary of the Department of Planning to permit the non-compliance with the development standard under Clause 4.6 of the Gosford Local Environmental Plan 2014, in accordance with the provisions of Clause 64 of the Environmental Planning and Assessment Regulation 2000.
2 That the Local Planning Panel grant consent to DA60725/2021 – 8 Ghersi Avenue Wamberal for two lot subdivision subject to the conditions detailed in the schedule attached to the report and having regard to the matters for consideration detailed in Section 4.15 of the Environmental Planning and Assessment Act 1979.
3 That Council advise those who made written submissions of the Panel’s decision.
Key Issues
· Variation to minimum subdivision lot size development standard in Gosford Local Environmental Plan 2014 and Chapter 3.5 of Gosford Development Control Plan for subdivision of residential land.
Precis:
|
Proposed Development |
Two Lot Subdivision
|
|
Permissibility and Zoning |
The subject site is zoned R2 Low-density Residential under Gosford Local Environmental Plan 2014 (GLEP 2014).
The proposed development is for subdivision of land permissible with consent of Council.
|
|
Relevant Legislation |
The following planning policies and control documents are relevant to the development and were considered as part of the assessment: · Environmental Planning & Assessment Act 1979 – Section 4.15 (EP&A Act) · Local Government Act 1993 – Section 89 · State Environmental Planning Policy (Coastal Management) 2018 (Coastal Management SEPP) · Gosford Local Environmental Plan 2014 (GLEP 2014) · Gosford Development Control Plan 2013 (GLEP 2013) · |
|
Current Use |
Single storey Dwelling House
|
|
Integrated Development |
No
|
|
Submissions |
Two (2)
|
Variations to Policies
|
Clause |
Clause 4.1(3) Minimum Subdivision Lot Size |
|
Standard |
The size of any lot resulting from a subdivision of land to which this clause applies is not to be less than the minimum size shown on the Lot Size Map in relation to that land. |
|
LEP/DCP |
Gosford Local Environmental Plan 2014 |
|
Departure basis |
Proposed Lot 331 – 14.0% (77.50sqm) |
|
Clause |
Clause 3.5.3.2a Allotment Size |
|
Standard |
The minimum allotment area (specified in Gosford LEP 2014) and width at the building lines are: Zone R1 – Low-density Residential · 550sqm minimum area · 15m minimum width at building line |
|
LEP/DCP |
Gosford Development Control Plan 2013 |
|
Departure basis |
Proposed Lot 331 – 0.56% (0.85m), Proposed Minimum lot width is 15.00m a maximum variation of 0.56% |
The Site
The site is legally identified as Lot:33 DP:20817 No 8 Ghersi Avenue, Wamberal, has a site area of 1081sqm and is located on the eastern side of Ghersi Avenue, between The Entrance Road and Old Gosford Road, refer Figure 1.
The site is irregular in shape, has a total frontage of 17.65m to Ghersi Avenue and presently contains an existing single-storey residential dwelling with a concrete driveway access to a backyard basement garage. The subject site runs on an east to west axis, has overall contours of the land distributed from the north-western corner of the site (RL26.00) to the south-eastern corner (RL19.00) resulting in an approximately 7.0m rise over a longitudinal section of 49.54m equating to a 14.13% slope.
The site is not identified as being flood affected. The site is not identified as being "bushfire prone land" on Council's bushfire maps.
Surrounding Development
Surrounding development to the east, south and west is predominantly original older detached single dwellings to the east, south and west characterized by a mixture of material combinations of timber and brick, brick and tile, timber and metal roof one and two-storey dwellings. Many of these have been renovated. To the north there is a range and newer modern multi-dwelling town houses and mixed-use flat residential units, one storey shops and commercial premises, one and two-storey shop top housing developments and Wamberal Shopping Centre on the opposite side of Ghersi Avenue. Land zoned B1 Neighbourhood Centre is immediately to the north.
![]()
The Proposed Development
An application has been received for the proposed subdivision of LOT:33 DP:20817, 8 Ghersi Avenue, Wamberal into 2 allotments pursuant to the statutory provisions of Clause 4.1 (3) of Gosford Local Environmental Plan 2014 (GLEP). Proposed allotments being lots 331 and 332, with areas of 472.5m2 and 610.5m2 respectively. As part of the proposed subdivision, the existing dwelling-house on the site will be retained on proposed lot 331.
The summary Table 1 below, provides an overview of the proposed lot/site areas as shown in Figure 3.
|
Lot |
Lot size |
Access Provisions |
Variation to Policies |
Improvements |
Zone |
|
Lot 331 |
472.5sqm |
Ghersi Avenue |
14% to lot size |
Existing dwelling house |
R2 Low-density Residential |
|
Lot 332 |
610.5sqm |
Ghersi Avenue |
N/A |
Existing driveway |
R2 Low-density Residential |
![]()
Proposed Lot 331 is irregular in shape and proposes a site area of 472.5sqm. This allotment proposes a frontage of approximately 14.15m to Ghersi Avenue and is presently occupied by an existing dwelling. Vehicular access provisions to this allotment to and from Ghersi Avenue is proposed via a new concrete driveway approximately 3.5m wide.
Proposed Lot 332 is battle axe in shape and proposes a site area of 610.5sqm. This allotment proposes a splay frontage of approximately 3.5m to Ghersi Avenue and is presently vacant, other than the existing concrete vehicular driveway and pad. Vehicular access provisions to this allotment to and from Ghersi Avenue is proposed via an existing concrete driveway approximately 3.5m wide.
The proposal will necessitate the removal of approximately three (3) existing trees. Council’s Tree Preservation Officer has advised that two of the trees in question are located in the vicinity of proposed stormwater pipes and pits which in the past have had encroachments on existing sewer installations. The third rear neighbouring tree (not shown on plan) is in a deteriorating condition and is currently being applied for removal due to its poor condition. Due to the proposed easements for drain water easements and limited available area for replacement tree planting a tree replacement condition is not recommended on this occasion.
The proposal provides for allotments of suitable size, shape and configuration, as well as providing for allotments of suitable utility and amenity. The proposal will have a satisfactory relationship to the adjoining developments, given the allotment sizes that are proposed and the degree of spatial separation between the proposed allotments and adjoining developments.
The general scope of civil construction works that are proposed in conjunction with the subdivision, are summarised as follows:
Works within the Road Reserve
a. Up to half width road construction including kerb and guttering, subsurface pavement drainage, concrete footpath, verge formation, street stormwater drainage and a minimum 2m wide new road pavement with end transitions across the full frontage of the site in Ghersi Avenue.
b. Construction of concrete footpath 1.5m wide for the full street frontage of the development in Ghersi Avenue.
c. Construction of the road verge/footway formation with a minimum width of 2m graded at +2% from the top of existing kerb to the property boundary, across the full frontage of the site in Ghersi Avenue. Construction to include transitions to existing formation either side of the site.
d. Construction of a residential vehicle access crossing that has a width of 4m at the road gutter crossing and 3m at the property boundary including construction of a gutter crossing and road pavement adjacent to the gutter crossing.
e. Construction of street storm water drainage including tail out drainage. This drainage is to consist of a pavement widening and bitumen berm from the end of the proposed kerb and gutter to direct stormwater into the table drain.
f. Construction of any works required to transition new works into existing infrastructure and the surrounding land formation.
g. Construction of retaining walls, including details of surface and subsurface drainage required for the retaining wall. Retaining wall design must not conflict with existing or proposed services or utilities. Retaining walls designs must be certified by a registered practising Civil or Structural engineer as being in accordance with Australian Standards.
h. Construction of a storm water drainage connection from the development site to Council’s storm water drainage system within the road reserve, including the construction of a new 1.8m extended kerb inlet pit in Lucinda Avenue
i. Road pavement designs. An Investigation and Design report prepared by a practising Geotechnical Engineer must be provided. The pavement design thickness must be determined in accordance with Council’s specifications and the following traffic loadings:
Name of Street Traffic Loading (ESAs)
Ghersi Avenue 2 x 106
j. The section 138 Roads Act Works Approval must be issued by Council and all conditions of that approval must be addressed prior to occupying and commencing any works in the road reserve.
Works within the Private Property
a. Construction of retaining walls, including details of surface and subsurface drainage required for the retaining wall where indicated on development approval documentation. Retaining wall design must not conflict with existing or proposed services or utilities. Retaining wall designs must be certified by a registered practising Civil or Structural engineer as being in accordance with Australian Standards.
b. Construction of a concrete accessway comprising a minimum 3m wide reinforced concrete pavement with integral kerb on the low side, 3% reverse cross fall and drainage within the proposed right of access or access handle for proposed lots 332.
c. Installation of services conduits (including draw wire) for all available services which may include electricity, telecommunications, gas and water within the right of access or access handle in accordance with the relevant authority’s specifications and requirements.
d. Construction of inter-allotment stormwater drainage where stormwater from individual allotments cannot be discharged directly into the proposed street drainage system or existing street drainage system.
e. Construction of on-site stormwater detention system/s. Designed to be in accordance with Council's Chapter 6.7 - Water Cycle Management of the Gosford Development Control Plan 2013. The system(s) must be designed to limit post development peak flows from the development site to less than or equal to predevelopment peak flows for all storm events up to and including the 1% Annual Exceedance Probability (AEP) storm event. A runoff routing method must be used. An on-site stormwater detention design report including an operation and maintenance plan must accompany the design. The on-site stormwater detention facility is not permitted within drainage easements, and / or secondary flow paths. A safety fence may be required around the facility.
f. Construction of nutrient and pollution control measures/facilities. Design to be in accordance with Council's Chapter 6.7 - Water Cycle Management of the Gosford Development Control Plan 2013. A nutrient and pollution control design report including an operation and maintenance plan must accompany the design.
g. Construction of storm water drainage connection all existing buildings, structures and impervious areas to the proposed stormwater systems.
The application was amended once during the assessment process (amended Subdivision Plan, WCMP and Clause 4.6 Submission on 27 May and 2 June 2021 respectively) in response to issues raised through initial assessment by Council Officers including but not limited to engineering requirements. Final amended site plan, WCMP and concept engineering design were submitted 27 May 2021 and updated Clause 4.6 written submission on 2 June 2021.
ASSESSMENT:
Having regard for the matters for consideration detailed in Section 4.15 of the Environmental Planning and Assessment Act 1979 and other statutory requirements, Council’s policies and Section 10.7 Certificate details, the assessment has identified the following key issues, which are elaborated upon for Council’s information. Any tables relating to plans or policies are provided as an attachment.
Draft Central Coast Local Environmental Plan
The Draft Central Coast Local Environment Plan (CCLEP) 2018 applies to this application:
Under the draft CCLEP 2018 the subject site is proposed to be under R2 Low-density Residential zoning whereby subdivisions remain as a permitted use within the land zoning.
Given the site characteristics and existing dwelling and surrounding residential homes in the
immediate locality, existing planning controls, and conditions contained in the recommendation, it is considered that the granting of consent to the proposal will not be detrimental to the Draft CCLEP.
The assessment concluded the proposal is consistent with the draft CCLEP 2018.
State Environmental Planning Policy (Coastal Management) 2018
The provisions of State Environmental Planning Policy (Coastal Management) 2018 (Coastal Management SEPP) require Council consider the aims and objectives of the SEPP when determining an application within the Coastal Management Area. The Coastal Management Area is an area defined on maps issued by the NSW Department of Planning & Environment and the subject property falls within this zone.
The subject property is within the Coastal Environment area.
The proposal is for subdivision of an approved development. No works are proposed. The relevant matters have been considered in the assessment of this application. The application is considered consistent with the stated aims and objectives.
Gosford Local Environmental Plan 2014 - Permissibility
The subject site is zoned R2 Low-density Residential under Gosford Local Environmental Plan 2014 (GLEP 2014). The proposed development is defined as subdivision and is permissible in the zone with consent of Council and relates to an approved use of the land.
Gosford Local Environmental Plan 2014 - 2.3 Zone Objectives and Land Use Table
Subclause 2.3(2) of the GLEP 2014 requires the consent authority to have regard to the objectives for development in a zone when determining a development application.
The objectives of the R2 Low-density Residential zone are:
· To provide for the housing needs of the community within a low-density residential environment.
· To enable other land uses that provide facilities or services to meet the day to day needs of residents.
· To ensure that development is compatible with the desired future character of the zone.
· To encourage best practice in the design of low-density residential development
· To promote ecologically, socially and economically sustainable development and the need for, and value of, biodiversity in Gosford.
· To ensure that non-residential land uses do not adversely affect residential amenity or place demands on services beyond the level reasonably required for low-density housing.
The proposal will not impact on the consistency of the approved development with the objectives of the R2 Low-density Residential zone. The proposal will continue to provide for a low-density residential environment whilst providing for the housing needs of the community and additional housing on the site consistent with the zone objectives. The proposal will not impact on the character of the area or the character of the approved development.
In this instance, it is considered that the proposal is consistent with the stated objectives of the zone, as well as also being consistent with the principles of Ecologically Sustainable Development, as specified within the Local Government Act 1993.
Gosford Local Environmental Plan 2014 - 2.6 Subdivision – consent requirements
Subdivision of land is permitted with development consent. The proposed subdivision does not contain a secondary dwelling and will ensure that future residential uses are clear and independent of each other. The subdivision is not likely to interfere with the future character and amenity of the neighbourhood.
Adequate attention has been given to access to services. Separate occupation of the proposed lots will not conflict with the provisions of the Environmental Planning and Assessment Act, 1979 (EP&A Act), or any Environmental Planning Instrument within the meaning of that act.
Development Standards
The proposed development is permissible with Council's consent and permits a minimum allotment size of 550sqm and is subject to compliance with a number of specific statutory provisions, including satisfactory assessment of the application against the relevant "Heads of Consideration" specified under Section 4.15 of the Environmental Planning and Assessment Act 1979 and Section 89 of the Local government Act 1993.
Gosford Local Environmental Plan 2014 - 4.1 Minimum Subdivision Lot Size
An assessment of the proposed development against the relevant development standards is detailed in summary Table below as follows:
|
Proposed Lot |
Area Proposed |
Area Required |
Compliance |
% Variation |
|
Lot 331 |
472.50sqm |
550sqm |
No |
14 % |
|
Lot 332 |
610.50sqm |
550sqm |
Yes |
Nil |
![]()
The summary table indicates that the proposal complies with the 550sqm minimum site area prescribed by the statutory requirements of Clause 4.1(3) of GLEP 2014, with the exception of proposed Lot 331. Notwithstanding this, it is noted that proposal will not result in any additional impacts on the character of the area, ecological, social or economic sustainability impacts, and will be consistent with the approved use and development of the land.
The Applicant submitted a request to vary the minimum subdivision lot size for the proposal.
Gosford Local Environmental Plan 2014 - 4.6 Exceptions to Development Standards
Clause 4.6 of GLEP 2014 provides the ability to grant consent to a development application where the variation to a development standard can be adequately justified and where the objectives of clause 4.6 are satisfied, being:
(a) to provide an appropriate degree of flexibility in applying certain development standards to particular development,
(b) to achieve better outcomes for and from development by allowing flexibility in particular circumstances.
In accordance with clause 4.6(3) the Applicant has submitted a written request seeking variation to the minimum subdivision lot size development standard in clause 4.1(3) of GLEP 2014 prepared by Tim Shelly Planning, dated May 2021. A copy of the clause 4.6 variation is included as Attachment 6.
Clause 4.1(3) of GLEP 2014 provides the size of any lot resulting from subdivision of land is not to be less than the minimum size shown on the Lot Size Map. The minimum lot size for subdivision on the relevant map is 550sqm.
The proposed development seeks to vary the minimum subdivision lot size development standard resulting in proposed Lot 331 containing the existing dwelling house an area of 472.50sqm, which results in a variation of 14% (-77.50sqm).
The applicant’s written request refers to the first of the five tests established in Wehbe v
Pittwater Council [2007] NSW LEC 827 to demonstrate that compliance with the numerical
standard is unreasonable or unnecessary. The test seeks to demonstrate that the objectives
of the standard are achieved notwithstanding non-compliance with the numerical standard.
The Applicant’s written request (summarised) to vary the minimum subdivision lot size development standard demonstrates the following:
· Granting approval to the undersized allotment facilitates the creation of a new allotment within an established residential area and the existing urban footprint, consistent with Goal 4 of the Central Coast Regional Strategy (CCRS), which aims to provide “a variety of housing choice to suit needs and lifestyles”.
· Underlying this goal, infill development is to be targeted and encouraged in and around local centres and other areas with sufficient infrastructure to support growth, such as the Wamberal local centre immediately to the north of the site which contains shops, restaurants and other retail and commercial services and which is located on a major bus route along the Central Coast Highway.
· All necessary utility services are already provided and able to be readily connected.
· The proposed subdivision will create two residential allotments of a size and shape consistent with the character and subdivision pattern of the surrounding area. In this regard, both lots are low-density in nature, with the new vacant allotment able to accommodate a variety of low-density housing types with appropriate side and rear setbacks, surrounded by extensive areas of open space, which will minimise impact on surrounding residences.
· The subdivision can be undertaken with minimal physical impact on the land given the steeper part of the site is to be contained within the allotment that contains the existing dwelling house, with the vacant allotment being of a compliant size and of a lesser slope that is conducive to the construction of a dwelling house with limited earthworks, cut and fill or retaining required.
· The subdivision can be undertaken with no ecological impact on given the site is located within a highly modified and disturbed urbanised environment.
· The site is not subject to bushfire nor flooding nor any landslip or stability issues such that subdivision of the land as proposed does not pose a risk to any adjoining allotments or exacerbate any existing constraints.
· Proposed lot 331 contains the existing dwelling-house, meaning the built-form of this allotment is already known. As such, the area of this lot is of no consequence as no allowance has to be made for a future dwelling on this property as would be the case with a vacant allotment. As such, there are no implications or adverse impacts resulting from the minor shortfall in area as this non-compliance.
· The area of proposed lot 331 is sufficient to accommodate the existing single-storey cottage, inclusive of suitable areas of private open space and provision for car parking. This is demonstrated by the photographs provided in the SoEE submitted with the application.
· The size and shape of proposed lot 331 is consistent with surrounding allotments and facilitates the construction of a dwelling house on proposed lot 332 consistent with the existing and desired future character of the locality.
Council’s Assessment of the Applicant Clause 4.6
The cl.4.6 (Exceptions to Development Standards) of GLEP 2014 variation request submitted by the applicant also provides assessment of the proposal against the relevant development standard, zone objectives and commentary on public interest. Overall, the proposal provides for the creation of x2 lots, each of which contain urban disturbed and cleared areas with existing services, adequate curtilage for future improvements, access, services infrastructure and landscaping. The subject site is not located in flood affected nor bushfire prone mapped areas respectively, which renders it more suitable for in-fill development.
It is also noted that R2 Low-density Residential under the draft Central Coast Local Environmental Plan which is currently due to come into effect, provides for the size of any lot resulting from subdivision of land is not to be less than the minimum size shown on the Lot Size Map. The minimum lot size for subdivision on the relevant map is 450sqm.
In accordance with clause 4.6(4), development consent must not grant consent for a development that contravenes a development standard unless:
1 The consent authority is satisfied that the Applicant’s written request has adequately addressed the matters required to be demonstrated in clause 4.6(3).
Comment: The clause 4.6 submitted by the Applicant has addressed how strict compliance with the development standards is unreasonable or unnecessary having regard to various relevant decisions in the NSW Land and Environment Court and New South Wales Court of Appeal and how there are sufficient environmental planning grounds to justify the contravention. Council is satisfied that the matters required to be demonstrated in subclause 4.6(3)(a) have been adequately addressed for the variation to minimum subdivision lot size development standard.
2 The consent authority is satisfied that the proposed development will be in the public interest because it is consistent with the objectives of the particular standard and the objectives for development within the zone in which the development is proposed to be carried out.
Comment: In order to demonstrate if the proposal has merit, consideration of the proposed minimum subdivision lot size non-compliance regarding the objectives of the control contained within Clause 4.1 of GLEP 2014 is as follows:
a) to reflect State, regional and local planning strategies relating to the provision of
various sizes of land,
b) to ensure that the subdivision of land is compatible with the desired future character of the area,
c) to promote the ecologically, socially and economically sustainable subdivision of land,
d) to ensure that the creation of parcels of land for development occurs in a manner that protects the physical characteristics of the land, does not create potential physical hazard or amenity issues for neighbours, can be satisfactorily serviced and will, through its potential cumulative effects, not create capacity problems for existing infrastructure.
The proposal is consistent with objectives in GLEP 2014 as follows:
· Subdivision of the land in the manner proposed will produce 2 urban residential housing sites that can be adequately accessed and serviced.
· The proposed vacant lot 332 contains adequate cleared curtilage to accommodate future dwelling, services infrastructure, and landscaping.
· The proposed undersized lot 331 with the existing dwelling house has sufficient land area to provide direct private access off Ghersi Avenue, car parking and private open space.
· Subdivision of land in the manner proposed will conserve the existing dwelling house which in turn will contribute to maintaining the existing streetscape and neighbourhood character untouched. And any future dwelling on proposed lot 332 given the natural land contours (depressed by approximately 4m), the departure from development standards in respect of site area does not cause impacts off-site in terms of streetscape, nor diminution of residential character or landscape values.
As such:
· Variation in minimum site area in relation to Lot 331 does not give rise to any negative aspects in terms of the existing or likely/desired character of the locality or precedent.
· The proposal will not result in any additional ecological, social or economic sustainability impacts beyond the existing approval, and will be consistent with the approved use and development of the land.
· The proposed lots will reflect an already existing development, which will not change in appearance at the streetscape level and will not impact on the physical characteristics of the land, create any physical hazards or amenity issues for neighbours and will not create additional demand for services, nor capacity problems for existing infrastructure.
The proposed development is consistent with the objectives for the R2 Low-density Residential zone as follows:
i. The proposed subdivision will provide for in-fill development that will contribute to the housing needs of the Wamberal community within a low-density residential environmental setting.
ii. The proposal will facilitate on-going low-density residential land use that provides housing opportunity that can be readily accessed and serviced to meet the day to day needs of residents.
iii. The proposed subdivision will provide no design change or appearance of the streetscape and unlikely to affect the immediate neighbourhood character as such, is found to be retaining the aesthetic values and compatible with the future desired character of the area.
iv. The proposal has the curtilage to accommodate best practice design without impacting on the amenity of adjoining residences nor create additional demands for services.
The assessment of the proposal against the objectives of the development standard and the R2 Low-density Residential zone confirms that the proposal complies with these objectives despite the variation.
3 The concurrence of the Secretary has been obtained.
Comment: Planning Circular PS 18-003 issued 21 February 2018 states that the consent authority may assume the concurrence of the Secretary of the NSW Department of Planning and Environment when considering exceptions to development standards under clause 4.6. The Central Coast Local Planning Panel is therefore empowered to determine the application.
Council is satisfied that the Applicant has demonstrated compliance with the objectives of
the development standard and the zone objectives such that the proposal is in the public
interest. The contravention of the minimum subdivision lot size control does not raise any matter of significance for State or regional environmental planning given the nature of the development proposal. Strict compliance with the prescriptive measures of the control is unreasonable and unnecessary in the context of the proposal in the circumstances of this case. The proposed development meets the underlying intent of the control and is a compatible form of development that does not result in unreasonable environmental amenity impacts.
This assessment concludes that the clause 4.6 variation of GLEP 2014 provided having regard
to clause 4.1(3) of GLEP 2014 is well founded and worthy of support.
Gosford Local Environmental Plan 2014 - 7.1 Acid sulfate soils
This land has been identified as being affected by the Acid Sulfate Soils Map and the matters contained in clause 7.1 of Gosford Local Environmental Plan 2014 have been considered. The site contains Class 5 Acid Sulfate Soils. The proposal will not impact on Acid Sulphate Soils.
Gosford Development Control Plan 2013
The Gosford Development Control Plan 2013 (GDCP 2013) was considered during assessment of this application.
Chapter 2 Scenic Quality and Character
The proposal is subject to the provisions of Gosford Development Control Plan (GDCP) 2013 Chapter 2.1 – Character and clause 2.1.3 provides for the following objectives:
1 Protect and enhance environmental character that distinguishes Gosford City’s identity, and
2 Enhance the City’s identity by development that displays improved standards of scenic, urban and civic design quality.
The subject site is located within the Wamberal Character Precinct 6 – Open Woodland Hillsides –. The desired character statement for this locality (summarize) recommends that:
![]()

· These should remain low-density residential areas where the existing scenic quality and amenity of prominent hillsides are enhanced substantially by further “greening” of gardens and street verges in order to screen new development and to complement the open bushland canopy that surrounds most dwellings.
· Avoid disturbing natural slopes and trees by appropriate siting of structures plus low-impact construction such as suspended floors and decks, rather than extensive cut-and-fill. On the steeper sites, locate parking next to the street in structures that are designed to blend with their desired bushy setting. Avoid the appearance of a continuous wall of development along any street or hillside by locating buildings behind front and rear setbacks similar to their surrounding properties and providing at least one wide side setback or stepping the shape of front and rear facades.
· Minimise the scale and bulk of buildings by stepping floor-levels to follow natural slopes and by using irregular floorplans to create well-articulated forms. For example, divide floorspace into linked pavilions that are separated by courtyards and capped by individual roofs. Front or rear facades that are taller than neighbouring dwellings should be screened by balconies, verandahs, stepped forms or extra setbacks. Roofs should be gently-pitched to minimise the height of ridges, and flanked by wide eaves to disguise the scale of exterior walls.
· Minimise the scale of prominent facades by using extensive windows and verandahs plus a variety of materials and finishes rather than expanses of plain masonry. All dwellings should display a traditional “street address” with verandahs or decks and living rooms or front doors that are visible from the roadway. Avoid wide garages that would visually-dominate any front façade or block views from a dwelling to the street. Locate and screen all balconies or decks to maintain the existing levels of privacy and amenity that are enjoyed by neighbouring dwellings.
The proposal does not change the use, layout or external appearance of the existing development and maintains the same approved building height bulk and scale. Subdivision of the land will remain low-density residential development on the site and will not impact on the character of the approved development or the character of the surrounding area.
Chapter 3.5 Residential Subdivision
Chapter 3.5 of GDCP 2013 provides guidelines for residential subdivision. In this instance the proposal is for subdivision to establish in-fill development for residential use land in the manner proposed will produce 2 urban residential housing sites that can be adequately accessed and serviced.
The proposed subdivision lot arrangement/orientation reflects it is consistent with the provisions and objectives of the controls notwithstanding variation to the minimum subdivision lot size of 550sqm (refer Table 2 for the extent of the variations) and minimum lot width of 14.15m (minimum lot width is 15.00m a maximum variation of 0.56% - merit based assessment) on land zoned R2 Low-density Residential required by Clause 3.5.3.2 Allotment Size.
The proposal seeks variation to the minimum 550sqm lot size development control which largely restates to clause 4.1 of GLEP 2014 minimum lot size requirement for the reasons outlined under clause 4.6 of GLEP 2014. The submitted clause 4.6 is considered well founded and is supported as stated within this report.
The assessment considers the proposal is consistent with the objectives of the controls and the variation is supported for the following reasons:
· An acceptable level of amenity for the existing and future residents is provided.
· The subdivision layout is done in an efficient and orderly manner, consistent with existing development.
· All lots are satisfactorily serviced by infrastructure:
o The proposal is consistent with the existing development within the site.
o The proposed subdivision would not be generating a significant amount of traffic nor changing traffic movements.
o Both resulting allotments contain vehicular access arrangements for the development to/from Ghersi Avenue so as to not congest the existing the access provisions proposed with the subdivision.
o However, a right of access is to be created with the proposed subdivision.
o The proposed subdivision will require half road construction, a 1.5m wide kerb-side footpath and a minimum 2m wide footway formation across the frontage of the site. Proposed Lot 332 will require the construction of a vehicle crossing. Proposed Lot 331 has an existing vehicle crossing.
o Stormwater from the site will be conveyed via an inter-allotment drainage system constructed within an inter-allotment drainage easement located within Lot 47 DP25382 and connecting to the existing piped system within Lucinda Avenue.
o Appropriate easements are created on the proposed plan of subdivision.
6.3 Erosion Sedimentation Control
Appropriate siltation control to be conditioned. Refer Conditions 1.1, 3.5,4.4 & 4.8.
6.7 Water Cycle Management
The provisions of Gosford Development Control Plan (DCP) 2013 Chapter 6.7 Water Cycle Management has been assessed by Council's Development Engineer and found to be satisfactory, subject to the imposition of suitable conditions of consent as contained in the recommendation. Refer Conditions 1.1, 2.2 & 2.4.
Other Matters for Consideration
Development Contribution Plan
The proposed development is subject to the provisions of the Central Coast Regional Section 7.12 Development Contributions Plan 2019. It is noted that development contributions are only levied where the proposed works exceeds $100,000. In this instance, the proposed development is under $100,000 therefore, no contribution levies are applicable.
Water and Sewer Requirements / Contributions
The proposal is supported by the Water Authority (Council). The development site is within the water and sewer service area.
The
proposal will require:
· Separate water meter and sewer connection point is required under the stratum Torrens subdivision for each lot.
· Separate water services and sewer junctions will be required for Torrens Title Subdivision. Easement to drain sewer benefiting proposed lot 331 will be required to ensure future structure will not impact the sewer service for proposed lot 331.
Water and sewer contribution, assessment and inspection fees shall apply to the proposal to obtain a 307 Certificate of Compliance under the Water Management Act 2000. Refer Condition 2.5 & 5.7.
Planning Agreements
The proposed development is not subject to a planning agreement / draft planning agreement.
Referrals
|
Internal Referral Body |
Comments |
|
Engineering |
Supported, subject to conditions, refer Conditions 1.1, 2.2 – 2.4, 3.6, 3.7, 5.2 -5.11. |
|
Tree Preservation Officer |
Supported, without conditions |
|
Water and Sewer |
Supported, subject to conditions, refer Condition 1.1, 2.2 & 2.4. |
Public Submissions
The development application was notified between 5 February and 26 February 2021 in accordance with the provisions of Gosford Development Control Plan (GDCP) 2013. A total of two (2) submissions were received by Council – both Objections.
Those matters associated with key issues have been addressed in the report here within.
The remaining issues pertaining to various concerns were addressed in the assessment of the application pursuant to the heads of consideration contained within section 4.15 of the Environmental Planning and Assessment Act 1979.
A summary of the issues in the submissions in relation to the proposal are detailed below.
· ...I have concerns to my privacy as if a 2-storey dwelling was to go up it would be looking straight on to the back of my home and entertaining area. if they were told to put up a privacy screen then I fear I would lose my winter sun which would be devastating…
Comment: Noted. Given that the proposed lot 332 allotment size (610sqm) complies with the minimum subdivision lot size control of the GLEP 2014, the orientation of the site, the natural contours and existing vegetation, the proposed subdivision and likely future construction of a dwelling is not expected to result in inappropriate overlooking and overshadowing. Notwithstanding this, any future dwelling proposal has the spatial area and ability to achieve good site planning practice in order to not impact the adjoining properties to the east.
· …Drainage - neighbours on the lower side of this have had ongoing drainage issues because of the Seabreeze development. Whilst reports might show otherwise, we have live with it…
Comment: Noted. The proposal has been assessed by Councils Development Engineer and requires as conditions of consent civil works including but not limited to road and drainage works, storm water detention systems, pathway and kerb upgrades etc, to ensure an integrated water cycle management and water sensitive urban design in accordance with Council's Chapter 6.7 - Water Cycle Management of the Gosford Development Control Plan 2013. The proposal is supported subject to conditions.
· … Noise - neighbours have had to endure an excess of noise due to the Seabreeze apartments and multiple families moving into a small area which was once very quiet, do we really need to cram any more buildings into this already congested part of Wamberal?...
Comment: Noted. The proposal is not for high density in-fill development and as previously mentioned, it is considered that any future dwelling proposal has the spatial area and ability to achieve good site planning practice to not impact the adjoining properties in particular neighbouring properties to the east and south boundaries. As such, the resulting increase of one (1) additional allotment of land is considered to be a minor increase in density in planning terms. The proposal will be maintaining the low-density residential character of the prescribed R2 land zoning.
It is noted that amended plans were submitted responding to issues raised during Council Officers initial assessment. These amended plans (received by Council on 27 May and 2 June 2021 respectively) included amendments (engineering stormwater and covenants technical information) which did not alter the shape and size of the survey plan. Given the minor nature of alterations and/or technical information inclusion, the amended plans were not re-notified. In accordance with Section 7.3.3.10(c) of the Gosford Development Plan (GDCP) 2013, applications which have been amended do not require re-notification where ‘…the amendments will result in no additional impacts…’
Likely Impacts of the Development
Section 4.15 (1)(b) of the EP&A Act requires consideration of the likely impacts of the development including environmental impacts on both the natural and built environments, and social and economic impacts in the locality.
The proposed subdivision will reflect and maintain an existing residential development and create additional residential in-fill development capacity which has been assessed and considered to not impact on the physical characteristics of the land, create any physical hazards or amenity issues for neighbours and will not create additional demand for services, nor capacity problems for existing infrastructure.
The proposed development will contribute to the supply of housing needs in the locality and is satisfactory from an economic perspective. No social impacts will arise from the approval of the proposed subdivision.
Suitability of the Site for the Development
The site is zoned is zoned R2 Low-density Residential under GLEP 2014. The proposal is generally in keeping with the provisions of GLEP 2014 and GDCP 2013. The proposal is for the subdivision into 2 allotments with an existing residential dwelling which will be retained and will create one additional residential in-fill development capacity beyond that already approved for the site consistent with other residential lots that are typical of the area.
The newly created vacant allotment 332 complies with the minimum subdivision lot size and has the spatial area and capacity to ascertain direct access off Ghershi Avenue and for required services infrastructure. The newly created allotment 331 which contains the existing dwelling and undersized minimum subdivision lot size will continue to be consistent with the existing and desired future character of the area by maintaining its residential streetscape character in size, bulk and scale whilst also having the spatial capacity to ascertain direct access off Ghershi Avenue, on-grade carparking, private open spaces and additional landscaping.
As such the site is considered suitable for this type of development subject to conditions of consent.
The Public Interest
The approval of the application is considered to be in the public interest. The proposal will not have any adverse impact on the natural or built environment and will not unreasonably impact the amenity of neighbouring properties and provide for the orderly and economic development of the land.
It is considered that the site is suitable for the proposed development, subject to the imposition of appropriate conditions of consent, as contained in the Recommendation. It is considered that the proposal is generally consistent with the existing pattern of subdivision in the immediate locality and will be consistent with the existing and desired future character of the area.
The site area of the existing allotment in its present form is considered to be an under-utilised resource. The proposed in-fill development will provide for the housing needs of the community and additional housing on the site consistent with the zone objectives.
Political Donations
During assessment of the application there were no political donations were declared by the applicant, applicant’s consultant, owner, objectors and/or residents.
Conclusion
This application has been assessed under the heads of consideration of section 4.15 of the Environmental Planning and Assessment Act 1979 and all relevant instruments and policies. Subject to the imposition of appropriate conditions, the proposed development is not expected to have any adverse social or economic impact.
Accordingly, the application is recommended for approval pursuant to section 4.16 of the Environmental Planning and Assessment Act.
Reasons for the Decision
The reasons for the decision as recommended under the assessment of this application are as
follows:
1 The proposal is satisfactory having regard for the relevant environmental planning instruments, plans and policies.
2 There are no significant issues or impacts identified with the proposal under s.4.15 of the Environmental Planning and Assessment Act 1979.
|
1⇩ |
Draft Conditions of Consent 8 Ghersi Ave WWAMBERAL DA60725 Part 1 |
|
D14922160 |
|
2⇩ |
Updated Subdivision Plan 8 Ghersi Avenue, WAMBERAL DA60725 Part 1 |
|
D14656775 |
|
3⇩ |
Concept Engineering Design 8 Ghersi Ave WAMBERAL DA60725 Part 1 |
|
D14656777 |
|
4⇨ |
WCMP Report 8 Ghersi Avenue, WAMBERAL DA60725 Part 1 |
Provided Under Separate Cover |
D14656776 |
|
5⇨ |
PUBLIC Statement of Environmental Effects 8 Ghersi Avenue, WAMBERAL DA60725 Part 1 |
Provided Under Separate Cover |
D14444243 |
|
6⇩ |
Updated Clause 4.6 Submission to Minimum Allotment Size 8 Ghersi Ave WAMBERAL Part 1 |
|
D14667387 |
|
4.1 |
DA/60725/2021 - 8 Ghersi Avenue, Wamberal - 1 into 2 Lot Subdivision |
|
Attachment 1 |
Draft Conditions of Consent 8 Ghersi Ave WWAMBERAL DA60725 Part 1 |
|
DA/60725/2021 - 8 Ghersi Avenue, Wamberal - 1 into 2 Lot Subdivision |
|
|
Attachment 2 |
Updated Subdivision Plan 8 Ghersi Avenue, WAMBERAL DA60725 Part 1 |
|
4.1 |
DA/60725/2021 - 8 Ghersi Avenue, Wamberal - 1 into 2 Lot Subdivision |
|
Attachment 3 |
Concept Engineering Design 8 Ghersi Ave WAMBERAL DA60725 Part 1 |
|
DA/60725/2021 - 8 Ghersi Avenue, Wamberal - 1 into 2 Lot Subdivision |
|
|
Attachment 6 |
Updated Clause 4.6 Submission to Minimum Allotment Size 8 Ghersi Ave WAMBERAL Part 1 |